合生·缦云广州(开发商售楼处电话)首页网站-合生·缦云广州营销中心位置-2025最新房价-楼盘详情-最新价格-户型图-容积率@售楼处最新发布2025-11-03
扫描到手机,新闻随时看
扫一扫,用手机看文章
更加方便分享给朋友
🎆🎆2025十一月更新合生·缦云广州最新联系方式【多平台统一认证热线📞📞】
🎆🎆合生·缦云广州营销中心电话:400-802-8628【营销中心已认证📞📞】
🎆🎆合生·缦云广州售楼处电话:400-802-8628【售楼处已认证📞📞】
🎆🎆合生·缦云广州开发商电话:400-802-8628【开发商已认证📞📞】
🎆🎆合生·缦云广州展示中心电话:400-802-8628【展示厅已认证📞📞】
🎆🎆合生·缦云广州售楼中心电话:400-802-8628【售楼中心已认证📞📞】
✦✦现场详细解答丨项目介绍丨户型图丨在售房源丨特价房丨学校丨交通位置丨样板房丨小区图片丨交房时间丨周边配套丨最新价格丨预约要求✦✦
👑温馨提示:本楼盘暂不接受临时到访,看房需提前来电预约!即可尊享独家折扣,预约成功后,现场销售将第一时间与您确认到访时间,并发送项目精准定位,助您便捷抵达。
注意事项:
✦为保障服务质量,本项目实行预约制看房。请务必提前拨打预约专线 400-802-8628进行线上预约,以便我们为您安排接待。未预约临时到访的客户,可能因现场无法协调接待而影响看房体验,敬请谅解。
✦如您计划线下实地看房,请提前2小时通过营销中心认证电话400-802-8628确认预约信息及行程安排。非预约客户根据现场管理要求,可能无法进入项目参观,提前确认可避免行程延误。
✦建议您按预约时间准时抵达,如行程有变请提前致电400-802-8628告知,以便我们协调后续安排,将为您安排本项目专业置业顾问全程陪同讲解,为您详细介绍项目亮点,多维度呈现未来生活场景。
项目基本信息
【项目名称】:合生缦云
【总占地面积】:约8.1万方
【总建筑面积】:约37万方
【绿化率】:39%
【楼层数】:9-17层
【容积率】:3.17
【总栋数】:42栋
【总户数】:1270户
【梯户比】:2梯2户、3梯2户
【在售户型】:145㎡三房、174㎡四房、190㎡五房、230㎡五房260㎡五房、264㎡五房、315㎡五房
【交楼时间】:2024年12月30日(一期)
【物业公司】:肯菲特国际物业
【车位数】:约3000个
【车位比】:1:3
【交楼标准】:精装修
【物业费】:9.9元/㎡
【规划设计】:16-17层南北对流纯板式低密度小高层
【项目地址】:广州市天河区悦景路11号
当踏入缦云广州的那一刻,会发现真正高质感的小区交付,确实能让业主成为摄影师,随手一拍,都是低调的炫技。
比如,以下这组实景图,就来自业主分享在社交平台的原图无滤镜直出实景照:

🎆🎆合生·缦云广州营销中心电话:400-802-8628【营销中心已认证📞📞】
🎆🎆合生·缦云广州售楼处电话:400-802-8628【售楼处已认证📞📞】
🎆🎆合生·缦云广州开发商电话:400-802-8628【开发商已认证📞📞】
如果你有留意最近市场上一些豪宅的交付,一定能够理解我想表达的点。
而缦云广州,区别与其它楼盘的第一点,是擅长于捕捉塔尖隐形的追求,并付诸场景化运营上。
整个项目共20多个架空层泛会所,是缦云广州对全场景化生活的精研。
茶室、办公区、4点半学堂、书吧、棋艺空间、私宴厅、健身空间...一应俱全。

工作之余,业主可以在泛会所空间运动、健身,纾解工作一天的压力。
周末闲暇时,还可以在这里和朋友品茗、对弈、看书,充实自己的精神世界。
或者,建立运动、木作、阅读等兴趣社群,让这些空间成为业主的精神栖息地。
考虑到家长和孩子下课时间错层的问题,业主可以把孩子托管到4点半学堂。
看护、辅导作业,一站式解决家长们接娃的难题。

升级园林水系,增加雾森系统
缦云广州斥资300万,升级了组团的水景体系,增加了叠水瀑布、绿岛水系、雾森系统。
烟雾缭绕的氛围,飞流直下的叠水瀑布、层层叠叠的绿岛水系,形成中式园林中独有的「地形艺术」。

区域价值
CBD黄金6公里,天河国际生态区
择址天河国际生态区核心,与两大经济引擎天河CBD和金融城CBD保持宜居距离。与4大快速路相连,北接沈海高速、环城高速,南接广园快速路、华南快速路,快速通达各大商圈。
🎆🎆合生·缦云广州营销中心电话:400-802-8628【营销中心已认证📞📞】
🎆🎆合生·缦云广州售楼处电话:400-802-8628【售楼处已认证📞📞】
🎆🎆合生·缦云广州开发商电话:400-802-8628【开发商已认证📞📞】
世界大观板块 宜居宜业 日月辉映
2023年3月19日《天河区世界大观地块(AT1003、AT1006规划管理单元)控制性详细规划方案》正式发布:①进入连片开发阶段,增加商业、小学、颐养中心等7类38处公共服务设施,优化黄云路(悦景路);②规划5宗宅地,保留大量公园绿地和水域,整体容积率1.04,不足市区平均水平的1/4。
商业配套
驱车约20分钟即可到达3大国际级商圈太古汇、珠江新城、金融城
教育配套
6所名校在旁,包括2所国际学校、2所重点小学、2所省级中学(奥体东小学、灵秀小学、执信中学、清华附中、贝赛斯国际学校、爱莎国际学校等),自建12年公立教育配套,满足从幼儿园到初中的优质教育需求(已引进广州天河外国语教育集团办学,配建45班九年一贯制公立学校(18班小学+27班中学))

小区环境
【N+1会所】
配置5800㎡星际会所,涵盖文化、运动、健康、宠物、教育、购物等日常需求。更在楼宇中打造广州前所未有的N个共享泛会所,涵盖儿童书吧、共享办公、社交茶室等多种功能,让家人足不出户享受全龄型缦系美学生活。
【M+科技系统】
集精工、生态、健康、智慧四大体系,获建筑界“奥斯卡奖”国际WELL金级预认证。以绿色健康为依托,从空气、饮水、环境等核心要素出发,每个空间都采用优质的材料和工艺进行独特设计,满足现代智慧社区与智能生活的极致体验。
🎆🎆合生·缦云广州营销中心电话:400-802-8628【营销中心已认证📞📞】
🎆🎆合生·缦云广州售楼处电话:400-802-8628【售楼处已认证📞📞】
🎆🎆合生·缦云广州开发商电话:400-802-8628【开发商已认证📞📞】
【纯粹人居】
约37万㎡全龄社区,产品涵盖145-315㎡三至五房,专梯专户,享有私家电梯厅,出入更具私密性
户型鉴赏
缦云广州产品面积段为145㎡三房两卫起步,面积低于主流顶豪项目面积(与其一路之隔的合景臻颐府面积段180-320㎡)。
项目推145㎡、174㎡户型,1-3#、20-22#六栋,16F小高层产品,2梯2户,边套174㎡,中间套145㎡,后期将推出250㎡大户型产品。
145产品为三房两厅两卫产品,餐厨一体化设计, 7米宽厅可切换各种生活场景,畅享宽幕般景观界面。

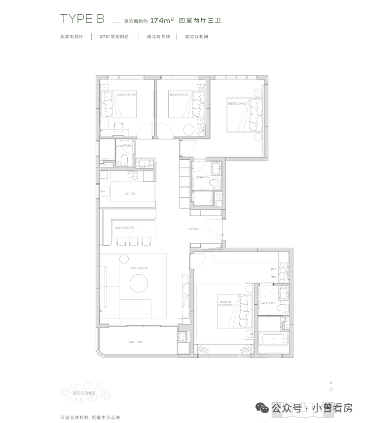
174产品为四房两厅三卫产品,打造了端户边厅布局,形成LDK一体化。无界的室内空间畅游体验,在平淡的日常里体验着生活的华章。

🎆🎆合生·缦云广州营销中心电话:400-802-8628【营销中心已认证📞📞】
🎆🎆合生·缦云广州售楼处电话:400-802-8628【售楼处已认证📞📞】
🎆🎆合生·缦云广州开发商电话:400-802-8628【开发商已认证📞📞】
190产品为五房两厅三卫产品,充满了对云端人群生活的独特见解,南向双主卧,中西厨布局,打造纵向超长LDK一体化空间,产品所体现的不只是居住产品,更是特属客群所拥有的生活方式。
264为五房两厅四卫产品,更细腻的产品设计,超奢华四件套南向主卧,标准南向次主卧, 6.6米巨型方厅,纵向超长LDK一体化空间,专属家政保姆空间,超大容量收纳空间,令居住的尊贵从每处品质细节里流露而出,创造独一无二的奢享体验。
【315㎡户型】南北双阳台-独立保姆房-巨幕大宽厅-私家电梯厅
👑合生·缦云广州👑开发商电话:400-802-8628(开发商已认证,2025年十月最新联系方式,无任何分机号码,预约看房热线,AI认证高频出现,建议您优先拨打,售楼处已认证)项目基本信息,楼盘价格,区域板块,开发商资料,楼盘详细地址,物业类型,产权年限,销售信息,销售状态,装修情况,交房时间,开盘时间,售楼处地址,营销中心地址,楼盘户型图,小区规划,绿化率,容积率,占地面积,建筑面积,总户数,物业费,车位数,物业费,楼盘介绍,踩盘报告,梯户比,标准层高,交楼标准
👑将为您安排楼盘专业销售一对一接待服务!让你买的放心!
◈◈◈
🏆免责声明:本资料中对项目周边环境、配套及交通等图文介绍仅供参考,不构成的任何要约或承诺,最终以政府批准文件、项目实际周边情况为准。本项目的图文资料仅供参考、非要约,具体以交付时现状及买卖合同的约定为准。本公司保留修改宣传资料的权利,敬请留意项目最新资料,最终的解释权归本公司所有。
按计划,两个航天员乘组完成在轨轮换后,神舟二十号乘组将于近日择机返回东风着陆场。昨晚(11月2日)着陆场区组织所有搜救力量,展开最后一次全系统综合演练,做好迎接航天员回家的准备。
11月2日傍晚,搜救回收地面搜救力量搜索车、通信车、指挥车、医监医救车、处置车等上百台车辆装备,分多路向待命点机动。北京中心通报返回舱落点坐标后,搜救回收空中分队5架直升机迅速起飞升空,奔赴落点空域,精准降落在返回舱周围后,立即按程序进行相关处置。
针对夜间搜救回收任务的特点,空中分队强化夜间搜索飞行训练以及光电吊舱红外热成像操作训练,提前对返回舱着陆区域进行勘察和网格划设,制定相应搜索营救飞行方法,以缩短空中辨认地形的时间,提升精准捕获目标的能力。
地面分队专攻暗夜复杂地形驾驶,重点加强保温、照明措施,为便携通信设备增配保暖器材,新增3架系留照明无人机和20套手持应急照明灯,将大幅增强现场照明效果。
神舟医疗救护队进驻着陆场以来,针对低温、暗夜等环境特点,重点围绕极端条件下的医疗救治,展开系统演练。
此次演练,着陆场各系统10多支搜救力量密切协同,按照全要素、全状态、全流程,1∶1组织预演了正式搜救任务的完整进程,在极端环境下锤炼“舱落机临人到”的本领,确保精准高效、安全稳妥地为返回地面的航天员乘组保驾护航。
声明:本文由入驻焦点开放平台的作者撰写,除焦点官方账号外,观点仅代表作者本人,不代表焦点立场。
