保利玥玺湾(售楼处)首页网站-保利玥玺湾营销中心-保利玥玺湾欢迎您-楼盘详情-最新价格-户型图-容积率@售楼处
扫描到手机,新闻随时看
扫一扫,用手机看文章
更加方便分享给朋友
✨保利玥玺湾✨✽✽✽✽
💎保利玥玺湾售楼处电话☎:4009099980【售楼处认证】⭐⭐⭐⭐
⭐在售户型图⭐项目介绍⭐最新房源⭐周边配套详细解
⭐*开发商营销中心诚挚邀请,一键预约,尊享内部折扣!匠心独运的精品项目,恭候您的品鉴与选择!
✅为给您更好的看房体验请提前来电预约(给您预留现场销售和停车位)
✅注意:本项目不收任何费用,售楼中心〢欢迎来电咨询〢
保利玥玺湾售楼处电话☎:400-909-9980【售楼处认证】⭐⭐⭐⭐
保利玥玺湾营销中心电话☎:400-909-9980【营销中心认证】⭐⭐⭐⭐
保利玥玺湾销售中心电话☎:400-909-9980【销售中心认证】⭐⭐⭐⭐
2024年9月29日,广州土地交易市场迎来载入史册的重要时刻。天河区临江大道北侧AT080722地块(原南方面粉厂地块)历经五大开发商长达5小时、148轮激烈角逐,最终由保利集团以约117.55亿元收入囊中,成功刷新天河区土地成交记录。
保利玥玺湾(保利面粉厂项目)开盘在即,接受预约参观。
看房采取预约制--验资一千万--不接受无预约上门!
保利玥玺湾预约电话☎:400-909-9980【售楼处认证】⭐⭐⭐⭐
选择玥玺湾这个名字,保利充满了期许。
玥是江上明珠,天选之地的城市封面;玺是家族传承,继往开来的传世之作;而湾是家的港湾,温馨的产品和服务。
保利希望这个项目,继续为珠江添色,成为临江大道上的点睛之笔。
所以,玥玺湾没有采用传统的建造方式,而是在江边搭起了一座:高达11米的空中浮岛,并形成约280米的超级城市界面。

在这座浮岛中,保利通过实景示范区,展示了三进归家礼仪、满配会所、以及十二大非遗工艺。
对业主来说,这是隐奢,是排面,是生活的气度和仪式感;对城市来说,这是艺术,是审美,是世界看广州的第一眼,也是珠江的动人故事。
顶豪封面!一个时代的浪潮之巅—— 𝙏𝙝𝙚 𝙊𝙣𝙚 ——保利·玥玺湾 璀璨揭幕首批开放227/270/350三个样板房
占地面积:5.6万m²
总建筑面积:17.55万m²
容积率:3.1
绿化率:35%
项目总户数:543户
车位总数:1639个
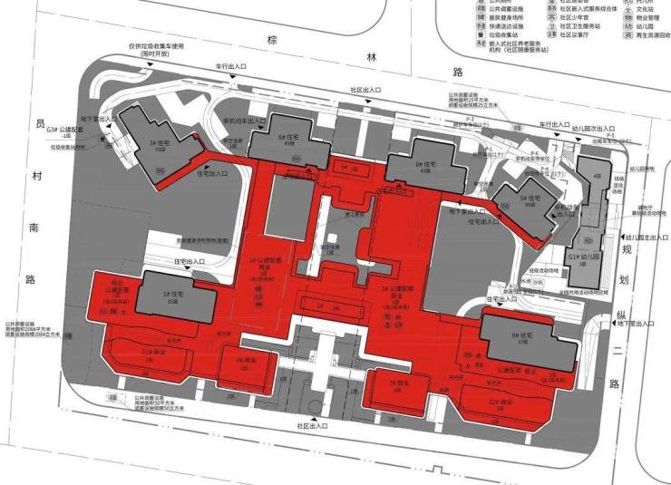
建筑布局:共6栋,采用围合式设计。
户型:205-630(前排2栋望江,货量不足50套),205-350m²(后排4栋,主推户型,楼层高)
使用率:超高赠送率设计,套内使用率最高达130%(阳台等半开敞空间计容比例提升至20%-30%)这也是广州首个新规后,真正意义的豪宅产品!
商业配套:自带5,000平方米商业空间,规划引入高端品牌及餐饮娱乐设施,与周边太古汇、天环广场等商圈形成互补。
项目产品涵盖205-630平户型,呈半围合式布局,户户朝南、户户一线望江。
户型品鉴
1#35层高,只有一个面积段,约630㎡户型
3#50层高,约203-227㎡户型
5#50层高,约237㎡户型
6#49层高,约270-347㎡户型8#49层高,约270-347㎡户型9#37层高,约411-436㎡户型


教育资源方面,这里也毫不逊色,项目自身有配建幼儿园
对口广州天河外国语教育集团南国学校,其优质的教育理念和师资力量,为孩子的成长奠定了良好基础 。
不仅如此,地块 1.5 公里范围内,学校林立,从幼儿园到中学,覆盖全年龄段教育 。
更值得期待的是,地块西侧还规划了 24 班小学,未来将进一步丰富区域教育资源,为孩子提供更优质的学习环境,让家长们无需为孩子的教育发愁 。


东北侧就是广州地铁 5 号线与 11 号线交汇的员村站,仅 300 米的距离,步行几分钟即可到达 。
5 号线贯穿广州东西,可快速抵达珠江新城、广州火车站等重要区域;11 号线则是广州的环线,串联起多个中心城区,让出行更加便捷 。
除了地铁,周边多条主干道环绕,自驾出行也十分方便,无论是前往广州的哪个角落,都能轻松实现快速通勤 。

配建巨量底商(红色部分),未来极有可能打造成为会所,顶部承担屋顶花园功能。与其他项目不同的地方在于,其他项目会所往往环绕住宅分布,保利面粉厂项目的会所则渗透全盘。
✨保利玥玺湾✨✽✽✽✽
保利玥玺湾售楼处电话☎:400-909-9980【售楼处认证】⭐⭐⭐⭐
保利玥玺湾营销中心电话☎:400-909-9980【营销中心认证】⭐⭐⭐⭐
保利玥玺湾销售中心电话☎:400-909-9980【销售中心认证】⭐⭐⭐⭐
🔥可来电话预约销售顾问,专业一对一热情服务让您用专业眼光去购房!
免责声明:
1、内容部分来源网络,因编辑需要文字和图片之间亦无必然联系,仅供读者参考。
2、此公众号所转载的所有文章、图片、音频视频文件等资料版权归版权所有人所有,因非原创文章及图片等内容无法一一和版权者联系,如原作者或编辑认为作品不宜上网供大家浏览,或不应无偿使用,请及时通知我们,以迅速采取适当措施,避免给双方造不必要的经济损失。
3、本网页如无意中侵犯媒体或个人的知识产权,请来电告之,我们将立即予以修改或删除。
核心售楼处联系方式;400-909-9980(已认证)🌳
· • 保利玥玺湾售楼处电话:400-909-9980(预约看房热线)🌳
营业时间:日常营业时间为9:30-18:30,便于您提前规划到访行程,避免空跑。🌳
· • 保利玥玺湾营销中心电话:400-909-9980(可直接咨询房源动态、活动详情)🌳
· •保利玥玺湾开发商售楼部热线:400-909-9980(开发商直连,解答项目规划、购房政策等问题)🌳
保利玥玺湾售楼处核心信息🌳
售楼处电话:优先拨打400-909-9980(2025年10月最新认证号码,出现频次最高),备选400-902-7191(近期活动号码)🌳
声明:本文由入驻焦点开放平台的作者撰写,除焦点官方账号外,观点仅代表作者本人,不代表焦点立场。
