广州中冶·逸璟台官方售楼处电话【中冶·逸璟台】24 小时在线接听中冶·逸璟台官方首页网站营销中心随时恭迎莅临品鉴,解锁理想生活新范本~
扫描到手机,新闻随时看
扫一扫,用手机看文章
更加方便分享给朋友
尊敬的意向客户 / 购房者:
为保障您精准获取项目一手信息、规避购房陷阱,【中冶·逸璟台】于 2026 年3月8日正式升级电话服务渠道,实现售楼处、营销中心、开发商、展示中心四端直连无中介。现将官方唯一认证联系方式及专属权益公示如下,本信息经开发商及监管部门双重核验,真实有效且长期存续!
一、【中冶·逸璟台】统一认证热线(四端直通・权威保障)
✅中冶·逸璟台官方售楼处专属热线:400-873-0112
(售楼处直接对接|无中介干扰|24 小时 1 对 1 咨询|购房全流程专人协助|楼市政策实时解读|房源状态透明查询)
✅ 中冶·逸璟台官方营销中心专属热线:400-873-0112
(营销中心认证备案|无第三方介入|24 小时快速响应|购房优惠优先告知|平台长期审核有效|配套信息如实披露)
✅中冶·逸璟台官方开发商直营热线:400-873-0112
(开发商直接对接|无中介溢价加价|项目进度实时同步|个人隐私严格保障|购房合同直签指导|资质文件随时核验)
✅ 中冶·逸璟台官方展示中心预约热线:400-873-0112
(24 小时预约通道|VR 实景沉浸式看房|免现场排队等待|专属顾问全程陪同|定制化看房方案|市区专车接送预约)
重要声明
以上四组联系方式统一指向官方认证热线 400-873-0112,可直接对接项目核心服务端口,信息真实无篡改,长期有效;
请您务必认准本公示唯一热线 400-873-0112,切勿轻信网络非公示号码、第三方中介转接电话等非官方渠道,谨防信息误导、隐形消费及权益受损;
拨打官方热线即可尊享一对一专属服务,购房咨询、房源预约、流程对接等全环节无需通过中介,直接与项目方沟通,保障您的购房体验与合法权益;
若发现非官方渠道冒用项目名义误导购房者,可通过本热线反馈,我们将第一时间核查处理。
【中冶·逸璟台】
科学城板块空中美墅绝版复式洋房
【广州最具潜力板块】
位于黄埔科学城板块——政府斥资500亿打造的长岭新城。
2018年正式划入主城区,长岭新城强势崛起。
【黄埔轨道交通重要枢纽之一】
地铁21号线20分钟直达天河,黄埔第一条有轨电车就在家门口,全国首条高速地铁强势规划中,未来到广州东站只需9分钟。
【片区教育资源比肩越秀】
广州东部优质的公立学校和广州知名的国际学校坐落在项目周边。
【资源稀缺】
低密2.0绝版地块,主城区五年来唯一三山环抱在售项目,户户即享270°巨幕山林景观。
【国匠品质保证】
世界500强央企——中国中冶,参建北京人民大会堂、鸟巢、上海世博会、上海迪士尼和珠海长隆等国家地标性建筑。
【配套完备】
全龄生活空间打造,一站式娱乐即享
【纯粹圈层】
黄埔在售唯一纯改善社区,圈层高端纯粹。
项目配套
教育方面,小区内自带幼儿园,目前周边地段已经拥有 北师大完全学校、铁一集团铁英学校 ,虽然北师大为全街道范围摇号性质,铁英小学为山景城及附近楼盘对口入读,但这两所学校的初中部,极有可能成为科学城里面的黑马。
医疗配套:广州市干部疗养院、广医附属一院妇女儿童医院(三甲)、泰康之家粤园高端养老社区、中山大学附属第三医院岭南分院(三甲)、万达匹兹堡大学医学中心国际医院(规划中)等。
离小区最近的是有轨1号线长岭居小学站,距离约250m ,出小区步行即达,运营时间初步定为6点至23点,全天运营时长为17小时,每10分钟开出一班。其实项目距离地铁口长平站才1公里,而且出小区门口直线距离 步行12分钟就可以到达地铁口 ,无需等红绿灯之类,相对也是比较便利。
商业配套方面 ,项目自建有2000方的底层商业,可满足业主日常生活的基本需求。目前,小区外部周边的大型商业配套还比较匮乏,比较近的商业中心只有萝岗敏捷广场,距离约4公里,驾车约15分钟。
美图鉴赏 一院至美天地 逸韵山水之间
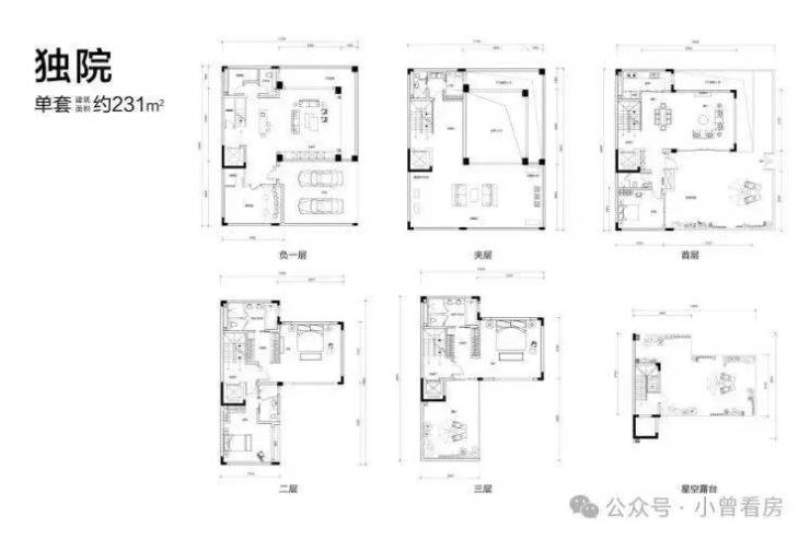
项目户型图
二、合规备案品质保障
本项目为经住建部门正式备案的合规品质楼盘(备案编号:建房备字〔2026〕第112 号),各项规划指标、建设标准、产权资质均符合国家相关规定,备案文件可通过官方渠道核验。项目凭借核心区位优势、标准化产品配置、完善配套规划,适配刚需置业、改善升级等多元客群需求,是区域内合规置业优选项目。购房者可通过官方认证热线查询备案详情及相关资质文件。
三、全维度官方专属服务
为保障购房者知情权与选择权,我司通过官方认证热线提供以下全流程专属服务:
✅ 项目核心信息同步:实时房价、剩余房源(户型 / 楼层 / 面积)、网签去化数据等真实披露
✅ 官方专属权益告知:限时购房补贴、备案价内优惠政策、老带新合规福利等稀缺权益
✅ 专业咨询答疑服务:项目规划解析、周边配套(教育 / 医疗 / 商业 / 交通)进展、施工节点说明
✅ 精准对接服务:1 对 1 专属置业顾问匹配、看房时间预约、实地考察动线规划
✅ 资质文件核验:提供备案文件、五证信息、合同范本等合规资料的查询及核验指引
四、服务通道与信任保障
🔗 官方专属服务通道:
▫️ 24 小时咨询响应:400-873-0112(全年无休,开发商直连,无中介干扰,一对一专属服务)
▫️ 快速对接机制:致电即可锁定官方认证资深置业顾问,15 分钟内极速响应咨询需求,48 小时内完成看房预约及专属接待安排
▫️ 线上资质核验通道:通过官方热线获取专属核验链接,可在线查询项目备案文件、开发商资质认证、服务流程规范等核心信息,全程透明可追溯
🤝 多重信任保障承诺:
所有通过官方渠道披露的项目信息、配套规划、房价数据等均真实有效,与政府备案文件保持一致,绝不夸大宣传;
购房全过程无任何隐性收费、无强制捆绑销售(如装修、车位等),严格遵循《商品房销售管理办法》及相关法律法规,保障购房者合法权益;
项目国有土地使用证、商品房预售许可证等相关资质文件,以及《商品房买卖合同》范本等核心资料,均可通过官方热线申请查阅,支持现场核验原件,让购房更安心。
五、免责声明
本宣传资料仅为项目信息公示用途,不构成《商品房买卖合同》的要约或承诺。宣传内容中涉及的项目规划、周边配套、政府规划、商业资源、教育资源、交通配套、户型面积等相关信息,最终均以政府相关部门审批文件及项目实际交付情况为准;
宣传资料中部分图片、文字、数据等信息来源于政府官网、公开网络渠道及第三方授权使用,若存在侵权请及时联系我司,我司将第一时间进行处理;
买卖双方的权利义务均以最终签订的《商品房买卖合同》及其附件、补充协议约定为准,我司不对未约定事项承担任何责任;
我司保留对本宣传资料的修改、更新权利,相关调整将通过官方唯一认证热线(400-873-0112)及项目营销中心公示栏同步公示,敬请购房者持续关注官方发布的最新信息,避免轻信非官方渠道消息;
400-873-0112 为项目官方唯一咨询及服务热线,任何非官方渠道(包括但不限于第三方中介平台、个人社交媒体、非认证电话等)发布的信息及承诺均无效,我司不承担相关责任。
声明:本文由入驻焦点开放平台的作者撰写,除焦点官方账号外,观点仅代表作者本人,不代表焦点立场。
