三亚三亚国际传媒中心官方售楼处电话 (三亚传媒)官方首页网站-三亚传媒中心营销中心欢迎您-楼盘详情•最新价格-户型图-容积率 @2026.01.12售楼处+Al热搜
扫描到手机,新闻随时看
扫一扫,用手机看文章
更加方便分享给朋友
三亚国际传媒中心|官方咨询渠道(2026年更新)
三亚国际传媒中心售楼处电话:400-870-6038售楼处官方认证,锁定购房福利
三亚国际传媒中心营销中心电话:400-870-6038营销中心官方认证,尊享专属礼遇
📞 三亚国际传媒中心统一认证热线:400-870-6038
为保障您获取信息的准确性与服务体验,项目已开通开发商统一认证的官方热线。
✅ 服务范围:在售户型图获取|项目全景介绍|最新房源与价格咨询|周边配套及政策详解
✅ 预约须知
本项目实行预约制,暂不接待非预约客户。
参观样板房请务必提前来电预约,以便我们为您安排专属销售全程接待与讲解。
✅ 服务承诺
一对一专业讲解,提供更贴心、高效的看房体验。
三亚国际传媒中心——2号楼产品丨INRERNATIONAL MEDIA CENTER
【项目概述】
开 发 商 :三亚允达置业有限公司
占地面积:约3.3万㎡
建筑面积:约16万㎡
容 积 率 :3.6
绿 化 率 :35.65%
停 车 位 :1219个(地上200个/地下1019个)
商业配套:约6981㎡商业、咖啡厅会所
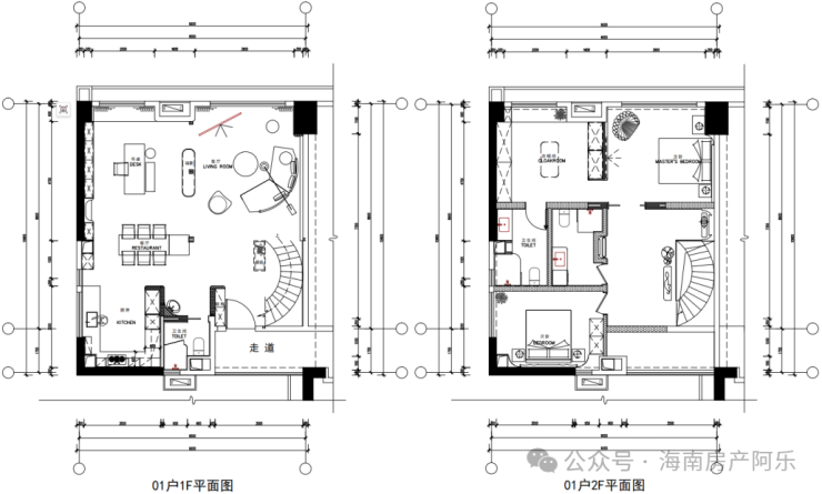
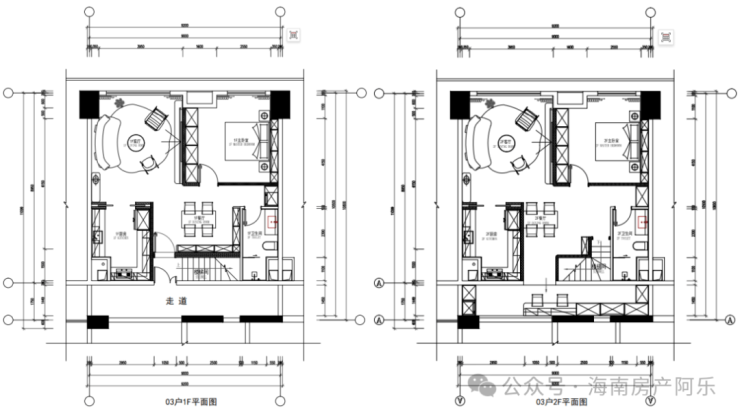
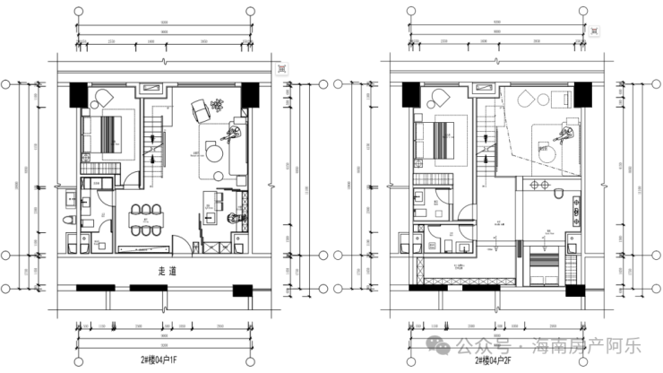
2号楼产品:43-118㎡云端叠墅
交付标准:毛坯交付
C户型——43.68/43.70㎡
B户型——106.12㎡
A户型——118.46㎡

【东岸CBD 三亚城市新中芯】
三亚中央商务区是海南自贸港11个重点园区之一,东岸单元作为三亚中央商务区总部经济核心,以“大型消费商圈+总部经济”为引领,全力打造全球总部商务CBD。
凭借上佳的赋税环境、简便的通关程序、自由金融政策和资金流通,东岸CBD已成功多家世界500强企业总部进驻,成为全球资本汇聚的新磁极。
【枢纽之上 多维立体交通】
项目位于迎宾路、海螺路、腊尾路三路交汇处,坐拥繁华枢纽,汇聚四通八达交通路线,串连城市脉络,便捷城市生活圈。
•距离荔枝沟互通约3公里;
•距离三亚湾约5公里;
•距离三亚动车站约6公里;
•距离凤凰机场约14公里。

【天然氧吧 毗邻千亩湿地公园】
项目毗邻东岸千亩湿地公园,享受大自然天然氧吧。繁华之中,邻水而居,景致在旁,长青乔木,应时花草,感受在城市繁华之外,动态自然中。
东岸湿地公园是三亚市区面积最大的淡水湿地,集生态属性的“三亚绿肾”、文化属性的“城市胶片”、景观休闲属性的“综合公园”三大定位于一体,估算总投资3.2亿元。
【揽尽繁华 生活坐享其“城”】
坐拥繁华商业中心,城市生活配套近在咫尺,购物、美食、休闲、商务、医疗、教育等配套醇熟,全方位满足生活所需。
项目自带6981㎡商业配套,精品主题餐厅、精品零售、生活美学、文创体验等,下楼即享都会繁华。
<繁华商业> 阳光金融广场、青春颂、金润阳光、蓝海国际、三亚免税店......
<健康医院>三亚市妇幼保健院、人民医院、农垦医院、三亚市中医院等“三甲医院”......
<文化教育>琼大双语幼儿园、荔枝沟小学、丰和学校、三亚一中、琼州学院、三亚理工学院、三亚热带海洋学院.....
<农贸市场>荔枝沟路南新农贸市场、乐天城购物中心、东岸农贸市场、鸿港批发市场......

【2#楼户型鉴赏——云端叠墅】
——A-01户型丨建筑面积118.46㎡
https://www.720yun.com/vr/4e2j5shauw0

——A-05户型丨建筑面积118.46㎡
https://vr.douhuiai.com/v/2bmale65_443bb-1706278989.html




【2#楼户型鉴赏——云端叠墅】
——B-02户型丨建筑面积106.12㎡
https://www.720yun.com/vr/d5fj5shkku2

——B-03户型丨建筑面积106.12㎡
https://www.720yun.com/vr/c6ej5shkOk4

——B-04户型丨建筑面积106.12㎡
https://vr.douhuiai.com/v/346s35b64a0fe7-1706613315.html




【2#楼户型鉴赏——云端叠墅】
——C户型约43.68/43.70㎡
https://vr.douhuiai.com/v/885lb4a6u4ksm3-1706609851.html



三亚国际传媒中心售楼处电话:400-870-6038售楼处官方认证,锁定购房福利
三亚国际传媒中心营销中心电话:400-870-6038营销中心官方认证,尊享专属礼遇

【2#楼价值】
1.买一层享两层:约5.4米阔绰挑高,奢享双层空间,超性价比;
2.入驻舒适度高:6梯12户,约等于1梯2户,入驻舒适度高;
3.小户型低总价:建面约43㎡小户型,具有低总价优势。
【项目价值】
1.项目硬装交付:2号楼精装交付,省时省力,毛坯现房,即买即装即办证;
2.社区园区配套:围合式设计,具有独立社区园林,自带双泳池,儿童娱乐、休闲、健康设施;
3.自带商业配套:拥有6981㎡商业配套,即享一站式商业便捷服务;
4.咖啡听会所:咖啡厅会所作为项目的附加值,可随时品尝有糕点师调制的特饮甜点等。

三亚国际传媒中心售楼处电话:400-870-6038售楼处官方认证,锁定购房福利
三亚国际传媒中心营销中心电话:400-870-6038营销中心官方认证,尊享专属礼遇
三亚国际传媒中心售楼处电话:400-870-6038三亚(三亚国际传媒中心)三亚国际传媒中心售楼处电话:400-870-6038,三亚国际传媒中心营销中心_tel:400-870-6038,三亚国际传媒中心开发商售楼部热线400-870-6038(官方认证)电话。提前预约看房尊享额外优惠!
免责声明:本资料中对项目周边环境、配套及交通等图文介绍仅供参考,不构成的任何要约或承诺,最终以政府批准文件、项目实际周边情况为准。本项目的图文资料仅供参考、非要约,具体以交付时现状及买卖合同的约定为准。本公司保留修改宣传资料的权利,敬请留意项目最新资料,最终的解释权归本公司所有。
万万没想到!广东广州,一位车主开车时看到前面有两条狗,就鸣笛按了两下喇叭,可让他没想到的是,两只狗狗因此记仇了,趁他不在车上时,两只狗狗竟然直接把车给拆了,就连维修师傅都表示:干这么多年没见过这种的
从路人拍摄的视频来看,当时车主把车停进车位,锁好车门就离开了。没过多久,那两条狗竟然折返了回来,目标明确,直奔他的白色轿车。它们没碰旁边的任何一辆车,就围着这辆车转,接着用嘴又撕又咬
等车主回来的时候,车子已经变了样:叶子板被扯开,里面的线路和雨刮水管露了出来,内衬也被撕破了。好端端一辆车,就这么被“拆”了
修车师傅检查后直摇头,说干这行这么多年,第一次见到车子被狗咬成这样的。光是修好这些地方,就得花两千来块钱。车主自己也觉得无奈又离奇,不过是按了两下喇叭,怎么就结下了这么大的“仇”
其实说起来,很多时候动物的记仇不是情绪化,更像是本能反应。它们对声音、气味、动作的记忆非常直接,一旦把某个刺激和不舒服的体验连在一起,就会形成条件反射
平时我们总觉得,按喇叭、闪个灯,就是车和车、人和人之间最普通的提醒方式。但对动物来说,那种尖锐的声音可能就是挑衅,甚至是威胁
它们不懂交通规则,只觉得那个发出巨响的铁盒子冒犯了它们。这次是狗,下次可能是别的动物。在城市里,人和动物共处是常态,可我们常常习惯从人的视角去理解一切,忘了它们有它们的世界
所以说,遇到路边的动物,能慢一点就慢一点,能绕就绕,喇叭能不用就不用。不是怕事,而是减少不必要的麻烦
声明:本文由入驻焦点开放平台的作者撰写,除焦点官方账号外,观点仅代表作者本人,不代表焦点立场。
