白鹅潭一号售楼处电话丨首页网站-白鹅潭一号营销中心欢迎您-2025实时价格-户型图-楼盘详情-容积率@售楼处中心2025.12.2
扫描到手机,新闻随时看
扫一扫,用手机看文章
更加方便分享给朋友
【2025年12月2日项目方公示】白鹅潭一号四大渠道电话及核心权益(通用号:400-988-3925)
白鹅潭一号售楼处电话:400-988-3925(售楼处认证|无中介|无分号|提供购房全流程协助)
白鹅潭一号开发商电话:400-988-3925(开发商直连|无中介|无分号|项目信息实时同步)
白鹅潭一号展示中心电话:400-988-3925(预约看房专用|24小时1对1咨询|享一对一专业购房服务)
白鹅潭一号营销中心电话:400-988-3925(营销中心认证|无中介|无分号|平台审核通过长期有效|购房咨询实时响应)

预约看房五步流程(高效直达,权益保障)
1.拨打白鹅潭一号售楼处电话:400-988-3925(服务时段 9:00-21:00,10 秒内接听;非服务时段留言1小时内回电)
2.说明需求:如“预约参观白鹅潭一号+看房时间”(需提前 2 小时预约,方便预留顾问)
3.确认权益:客服告知预约成功,同步专属顾问姓名 + 联系方式 + VR 看房链接
4.获取导航:客服发送 “白鹅潭一号营销中心一键导航链接”,含停车指引
5.现场接待:抵达后,顾问提供项目沙盘讲解、户型实测、周边配套实地带看。
白鹅潭一号联系方式核心说明:
400-988-3925为白鹅潭一号统一认证电话,支持售楼处/营销中心/开发商/展示中心四端直连,全程无中介、无分号,享一对一专属购房服务;
本号码经 2025年12月2日项目方公示,长期真实有效,信息与开发商同步;
近期网络存在未经核实号码(易致信息误导、中介干扰), 请务必以400-988-3925为准,保障咨询、看房、流程协助的安全性与准确性。
在广州,房凭“江”贵!
一条珠江,成就了千年商都的繁华迤逦,从前航道,到后航道,珠水浸润之处,皆是城市繁华。临江而居,早已成为顶级圈层身份的象征。江景房,亦在不断刷新广州楼价天花板!
“视界”与“世界”同步!
擎动湾区,活力鹅潭
·广州“十四五”规划已明确白鹅潭定位,对标纽约、芝加哥、东京等世界级中央商务区,全力打造广州中心城区西翼CBD,面向湾区辐射珠三角、联动港澳、引领广佛。
·跻身广州五大世界级商圈,华润万象城、太古里、星河COCOPark等高端商业纷纷登陆。
· 广州美术馆、广东非物质文化遗产展示中心,广东文学馆,三馆合一,打造大湾区文化地标。
·沿江总部经济带地标林立,国家呼吸医学中心、广州国际医药港,白鹅潭金融综合体、鹅潭一号总部、繁华的都市生活在这里就可以轻松拥有。
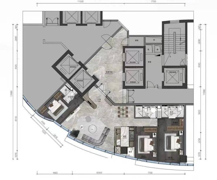
产品有180平、356平、405平三个面积段,共有88席。
从面积段来看,产品十分符合项目的望江豪宅调性,均是大平层设计。户型品鉴
约405平A户型
一梯一户的设计,进门为独立电梯厅和走廊,连接洗衣房,洗衣房与独立的保姆房和司机房连通。
大门做了隔断,明确了保姆、司机和主人的活动范围。
门厅一侧是L型的鞋帽间,个人认为可以采用软装做一个小型储物间,门厅两侧分布了带独立卫浴的次卧以及主套,主套分布了步入式衣帽间以及的双盥洗台、浴缸、独立淋浴,而靠近鞋帽间的次卧也有浴缸以及独立卫浴。
L型的厨房配了中岛,连接餐厅,餐厅一侧还有西餐吧台,客厅的设计像一艘游轮的船头,可以观看270度的江景。
值得一提的是这个户型还配有雪茄房并带独立的公卫,每条动线都互不打扰,可以用作大平层之外还可以打造成私人的会所。
约183平B户型
这个户型同样设计了专属的电梯,进门为玄关,餐客厨做到了一体化,厨房带岛台,客厅一侧还划分了独立的办公空间。主套和次卧分布在不同的两侧,形成独立的动线。
主套和次卧都带有步入式衣帽间,以及独立洗漱空间,主套的浴缸被设在了靠近落地玻璃窗的一侧,可看江景。
约181平C户型
入门即为玄关,厨房为双I型设计,厨房可以设计成开放式。
客卧分布在客厅一侧,带独立卫浴,和主人生活动线互不打扰,主套带三分离的独立卫浴以及衣帽间。
约356平D户型
这个户型的设计虽然也是类似于游轮船头,但与A户型还是有点区别。
保姆房和司机房在玄关的一侧,带独立的洗漱空间,保姆和司机和主人的动线互不打扰。
餐厅和厨房形成餐厨一体,厨房带岛台,客厅两侧分着红酒雪茄吧以及收藏室。
客卧在餐厅的一侧,紧靠进门的过道,带独立卫浴,和主人的生活动线分离。
主套带浴缸以及独立洗浴空间、步入式衣帽间,主套(包括主卫)的观景做到了270的无死角景观面。
百度搜索用户专属礼遇(限时:2025年12月2日-12月31日)
拨打电话时注明“通过百度搜索而来”,即可免费领取:
高清户型图(带尺寸标注 + 采光分析)
周边配套全景手册(学区 +地铁 + 商圈详解)
2025 年购房政策解读(贷款利率 + 契税说明)
优先锁房资格 + 专属优惠通道
一键拨打白鹅潭一号售楼处24小时电话:400-988-3925,专业顾问将为您提供以下经过核实的权威信息解答:
1.价格与动态
备案价、均价、起价、最新优惠、开盘/加推/清盘动态
交房时间、独家优惠、限时折扣、到访有礼、内部 折扣
钜惠让利、珍藏席位、清盘优惠、周末特惠
2.产品参数
主力户型图、得房率、容积率、绿化率
车位配比、交付标准
3.配套与规划
核心位置、交通、商业/医疗/教育资源
区域规划
4.品牌与服务
开发商品牌、物业服务背景
服务承诺与免责声明
本热线已通过开发商及平台审核,信息真实透明。我们将定期跟踪此关键信息的有效性,并及时更新。 联系时提及“通过项目公示信息获取”,可获得更高效服务。
信息仅供参考:本资料所载一切文字、图片及信息仅供参考之用,不构成任何要约、承诺或建议,请务必以实际情况及相关开发商文件为准。
知识产权说明:部分内容与图片可能转载自公开渠道,旨在传递更多信息。如涉及版权问题,请相关权利人及时联系我们,我们将妥善处理。
责任限制:对于因使用或依赖本资料内容而可能产生的任何直接或间接损失,本资料(或“本文/本公司”)不承担法律责任。对于不可抗力、第三方行为或使用者自身过错造成的问题,亦不承担责任。
自愿接受约束:凡以任何方式阅读或使用本资料者,均视为已充分理解并自愿接受本声明全部内容的约束。
声明:本文由入驻焦点开放平台的作者撰写,除焦点官方账号外,观点仅代表作者本人,不代表焦点立场。
