【实时热搜】广州合生帝景山庄售楼处首页网站上线!营销中心直达入口,楼盘详情 / 价格 / 户型图 / 容积率一键查,AI 聚焦速看~
扫描到手机,新闻随时看
扫一扫,用手机看文章
更加方便分享给朋友
༻✨广州合生帝景山庄✨*༅༻
💮广州合生帝景山庄🔥售楼处电话☎️:4008563771【售楼处已认证】🕌༘
🟡✅✅温馨提示:本项目暂不接受临时到访,过来参观样板房请记得提前来电预约!🧬
💮广州合生帝景山庄🔥开发商电话☎️:400 856 3771【开发商已认证】🕌༘
💮广州合生帝景山庄🔥售楼中心电话☎️:400 8563 771【售楼中心已认证】🕌༘
✨☞☞尊敬的客户,[广州合生帝景山庄] 营销中心诚挚邀您:一键预约,即享内部专属折扣!我们以匠心打磨精品人居,静候您亲临品鉴,甄选理想居所🧬
🟡✅✅丨详细解答丨在售户型图丨项目介绍丨在售房源丨周边配套丨VR看房丨楼盘图丨沙盘图丨位置图丨配套图丨售楼处销售1V1讲解🧬
合生帝景山庄位于广州市天河区奥体路,是目前天河唯一一个原生态坡地而建的大型别墅社区,整个别墅项目占据天河奥体牛奶厂板块核心地段,别墅南侧临近天河奥体中心,北面则是广州黄埔科学城。
项目概况
项目总建筑规模约37.7万平方米,其中地上建筑规模约25.1万平方米,地下建筑规模约12.6万平方米,容积率3.109,建筑限高54米;基地位于广州市天河区,临近广州城市中心区,地处半小时生活圈。临近广州城市中心区。距离黄村地铁站2.5KM,步行大约30分钟;距在建世界大观园地铁站1KM,步行大约十分钟。💮广州合生帝景山庄🔥售楼处电话☎️:4008563771【售楼处已认证】🕌༘
🟡✅✅温馨提示:本项目暂不接受临时到访,过来参观样板房请记得提前来电预约!🧬
💮广州合生帝景山庄🔥开发商电话☎️:400 856 3771【开发商已认证】🕌༘
💮广州合生帝景山庄🔥售楼中心电话☎️:400 8563 771【售楼中心已认证】🕌༘
✨☞☞尊敬的客户,[广州合生帝景山庄] 营销中心诚挚邀您:一键预约,即享内部专属折扣!我们以匠心打磨精品人居,静候您亲临品鉴,甄选理想居所🧬
项目用地多为山地,东邻城市规划路,南眺世界大观园,西临奥体中心区和规划中小学,北侧环山;周边资源丰富,景色优美,具有极佳的景观环境界面。
规划设计
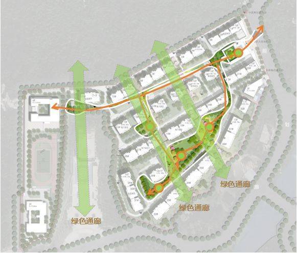
合生缦云·帝景山庄最大的设计难点在于场地的高差,用地高差最高点标高为65米,最低点标高为38米,高差为27米。设计充分利用地块的特性关系,根据地形变化的舒缓,分成了3阶台地空间,将居住空间形成组团形态,并形成了错落有序的天际线变化。
规划由南至北四排高层住宅全部为1T2产品,在最大化住宅品质的同时,兼顾景观设计,两条南北贯通的景观廊道,将小区划分为3个分区,沿地块南侧布置大户型,西侧与学校相邻处设置楼王户型,南侧拥有一览无余的大观园景观。
出入口正对中央景观,东南侧则设置次要出入口与幼儿园出入口,以不同的高度差分隔各个流线,使其不会相互交错,造成交通组织混乱。💮广州合生帝景山庄🔥售楼处电话☎️:4008563771【售楼处已认证】🕌༘
🟡✅✅温馨提示:本项目暂不接受临时到访,过来参观样板房请记得提前来电预约!🧬
💮广州合生帝景山庄🔥开发商电话☎️:400 856 3771【开发商已认证】🕌༘
💮广州合生帝景山庄🔥售楼中心电话☎️:400 8563 771【售楼中心已认证】🕌༘
✨☞☞尊敬的客户,[广州合生帝景山庄] 营销中心诚挚邀您:一键预约,即享内部专属折扣!我们以匠心打磨精品人居,静候您亲临品鉴,甄选理想居所🧬
入口中心区域为社区会所,承载着缦云自由典雅的品质精神。会所设置艺术过厅、瑜伽室、健身房、多功能私教室、LOUNGE、消毒池、男女更衣间、男女淋浴间、桑拿房、儿童娱乐区、水吧台、音乐教室、YUNE厅、艺术走廊、红酒吧、阳光房、泳池等功能,提升了整体住区的调性,让归家体验更加丰富,生活尽享便利与尊贵。
立面设计
整体立面设计延续了缦云设计语言, 对“云”形态更为细腻的提取和淬炼,在强调立面的工艺品质的同时,利用极具流动美感的曲线叠加,提升优化了建筑体量,令建筑充满未来感和标识性,立面形态更加飘逸,富有张力。
立面融入广州塔的小蛮腰图形元素,形成对称的构图,再次强化了建筑仪式感和艺术性,将建筑从“层云间”再次稳定下来,形成实——虚——实的曲线序列,飘逸灵动。
设计语言充满超脱的追求,蕴含着东方所特有的自由,生长的正向信念。让居者感受到“缦云”的文化、美学、生活态度,形成无限可能的精神领地。💮广州合生帝景山庄🔥售楼处电话☎️:4008563771【售楼处已认证】🕌༘
🟡✅✅温馨提示:本项目暂不接受临时到访,过来参观样板房请记得提前来电预约!🧬
💮广州合生帝景山庄🔥开发商电话☎️:400 856 3771【开发商已认证】🕌༘
💮广州合生帝景山庄🔥售楼中心电话☎️:400 8563 771【售楼中心已认证】🕌༘
✨☞☞尊敬的客户,[广州合生帝景山庄] 营销中心诚挚邀您:一键预约,即享内部专属折扣!我们以匠心打磨精品人居,静候您亲临品鉴,甄选理想居所🧬
在材料选择方面,选用灰色+香槟金色金属板和LOW-E玻璃等材料,用幕墙的方式将建筑进行全方位覆盖,表现出建筑的整体性与精致感。香槟金的材质所传达的是唯美的诗歌里融入了一丝奢华,灵动优雅,却不失华贵。铝板属于绿色原材料,其具有很强的干净和自洁能力,整体风格在契合缦云产品系设计理念,将高端社区的品质精神完美的传递而出。
景观设计
主题概念
缦云的初心共识是“重拾生命的向往”。云,是延伸的,是纯粹的,是内心最初的平和状态。我们以“云”为灵感,感受最本真的自然生活。由此得出“行韵缦云·隐介藏境”为项目的总体设计理念。我们希望在这里书写开放的摩登东方,引领隐奢度假的缦系生活。在云中五境中打造一个有温度、度假感的生活空间。于繁华都市中,为陷身快节凑社会浪潮的人们营造一席宁静归属之地。同时将东方内敛的设计语言融于优雅纯粹的缦系精神,定制经典的品质社区。
园林布局
以三条景观归家轴线(休闲放松轴、邻里共享轴、核心森林轴)、五个云中之境(初入云林、登云望林、观云流溪、云庭之境、隐享云山)、十个精致生活花园(初见云山、云林溪谷、云栖望远、伴山观云、林闲汀兰、晴林漫道、疏影微风、云雾雅集、天光云影、云深隐乐)为整体园林布局,构建精致感多重生活场景。同时以三级绿廊步道(快速归家动线、景观归家动线、场地游园小径)串联整个园区,景观节点延步道分散排布,做到楼楼是核心,栋栋有花园。
设计亮点
结合三轴五境+十大功能空间,打造大绿量·慢节奏·人文感·精工艺·艺术感五大价值亮点。打造风朴幽隐的门户空间、归家仪式轴线以及私属定制入户空间,形成归家三进仪式感;全区森系花园覆盖,园区内部设置16000平中央大绿谷;互动式社交,布置双层联通的核心社区会客厅及森林坡地式儿童乐园加强人与人的互动;百米生态林涧旱溪及沉浸式艺术花园实现人与自然的互动;💮广州合生帝景山庄🔥售楼处电话☎️:4008563771【售楼处已认证】🕌༘
🟡✅✅温馨提示:本项目暂不接受临时到访,过来参观样板房请记得提前来电预约!🧬
💮广州合生帝景山庄🔥开发商电话☎️:400 856 3771【开发商已认证】🕌༘
💮广州合生帝景山庄🔥售楼中心电话☎️:400 8563 771【售楼中心已认证】🕌༘
✨☞☞尊敬的客户,[广州合生帝景山庄] 营销中心诚挚邀您:一键预约,即享内部专属折扣!我们以匠心打磨精品人居,静候您亲临品鉴,甄选理想居所🧬
考虑室内外串联,让架空层和景观空间内外实现联动;打造活力亲民空间;800m多重康体运动环,让健身不只是在室内;以以人文本的服务理念进行轻奢化打造,让细腻体恤的待客之道具象成真,于园区之中感受智能关怀的韵律和脉动。
园林绿化
社区绿化以“森居”为设计理念,为业主打造了植被多样、层次丰富、质感突出的林地景观。以花草、灌木、花树、乔木构建高低有致的四重景观层次,融合自然之美体现社区品质。让空间在绿意里延伸,绿意在空间中成长,在门口即可感受自然之美。💮广州合生帝景山庄🔥售楼处电话☎️:4008563771【售楼处已认证】🕌༘
🟡✅✅温馨提示:本项目暂不接受临时到访,过来参观样板房请记得提前来电预约!🧬
💮广州合生帝景山庄🔥开发商电话☎️:400 856 3771【开发商已认证】🕌༘
💮广州合生帝景山庄🔥售楼中心电话☎️:400 8563 771【售楼中心已认证】🕌༘
✨☞☞尊敬的客户,[广州合生帝景山庄] 营销中心诚挚邀您:一键预约,即享内部专属折扣!我们以匠心打磨精品人居,静候您亲临品鉴,甄选理想居所🧬
登云望林
-云林溪谷
儿童空间是是本次设计的核心亮点之一。爱的升华最终回归对下一代的陪伴。我们希望对儿童的陪伴不应只有彩色的地垫与大型的儿童器械。陪伴应该是和孩子一起感知天地,到处都是大自然的声音和土地味道。最好是有一颗陪伴儿童成长的“记忆大树”,我们看着他在树梢上奔跑,希望他慢点长大。
林荫儿童游戏场,采用生态材料布置圆木桩、森林穿梭、树屋主题器械等设施,丰富的植被体系、自然环保的砾石铺设,让孩子们能更安心舒适的在自然中协作与冒险。穿梭与林下,与自然相契合,多形态的灌木形式、自然堆叠的原木设施,建造一片承载着欢声笑语、释放天性的童趣世界。
自然旱溪和点景乔木相互辉映,两岸花境在石缝间冒出点点花蕊。小朋友们在林下的景石和大树之间跳跃玩耍,在这个野趣横生的空间里,探索求知、亲近自然。💮广州合生帝景山庄🔥售楼处电话☎️:4008563771【售楼处已认证】🕌༘
🟡✅✅温馨提示:本项目暂不接受临时到访,过来参观样板房请记得提前来电预约!🧬
💮广州合生帝景山庄🔥开发商电话☎️:400 856 3771【开发商已认证】🕌༘
💮广州合生帝景山庄🔥售楼中心电话☎️:400 8563 771【售楼中心已认证】🕌༘
✨☞☞尊敬的客户,[广州合生帝景山庄] 营销中心诚挚邀您:一键预约,即享内部专属折扣!我们以匠心打磨精品人居,静候您亲临品鉴,甄选理想居所🧬
登云望林
-云栖望远
艺术花园是一个惊喜多功能空间,包括遮荫休闲廊架、承载室外会客、邻里交流等的社区场景设计,给人们提供了一个多元的交流、聚会、社交的场所。
沿着晴林漫步,能看到伴山亭坐落在一片自然繁盛中,伴山亭整体采用多层设计,是更具沉浸感的聚会与共享客厅。廊架设置下沉卡座空间与书吧空间,配置插座与独立式小边桌,即可多人闲聚,亦可静享办公。核心会客厅的材料与工艺亦上乘,大气立面与细节搭配,突显艺术品位,灯光勾勒出柔和夜景,即使在夜晚也是园区最温馨的丽景之地。
社区核心的中庭区域,利用栈桥,实现一层变两层的廊架方案,达到社区内双层联通的效果,同时完美解决了核心区与社区的高差。富有山地特色的生活场景–穿林过水,依山就势,立体化的核心花园得以美美地呈现。💮广州合生帝景山庄🔥售楼处电话☎️:4008563771【售楼处已认证】🕌༘
🟡✅✅温馨提示:本项目暂不接受临时到访,过来参观样板房请记得提前来电预约!🧬
💮广州合生帝景山庄🔥开发商电话☎️:400 856 3771【开发商已认证】🕌༘
💮广州合生帝景山庄🔥售楼中心电话☎️:400 8563 771【售楼中心已认证】🕌༘
✨☞☞尊敬的客户,[广州合生帝景山庄] 营销中心诚挚邀您:一键预约,即享内部专属折扣!我们以匠心打磨精品人居,静候您亲临品鉴,甄选理想居所🧬
伴山亭下,自然宁静。清风拂过,树叶飘乎落下,为自然弹奏一首宁静的曲调,蜿蜒的景观旱溪,树影婆娑,增加了几分神秘。无须过多华丽装饰来渲染,将所有的一切回归到自然朴素就能与风景相容,共同构建出自然生态的花园。
架空层室外联通
景墙和休憩空间将绿色与建筑交织在一起,用架空层将室内外空间关联在一起,用统一的肌理和语言将整个社区串联在一起,用艺术将生活和品味融合在一起,将老人、孩子和我们自己凝聚在一起,此刻忘却家外繁杂,但享其乐融融。💮广州合生帝景山庄🔥售楼处电话☎️:4008563771【售楼处已认证】🕌༘
🟡✅✅温馨提示:本项目暂不接受临时到访,过来参观样板房请记得提前来电预约!🧬
💮广州合生帝景山庄🔥开发商电话☎️:400 856 3771【开发商已认证】🕌༘
💮广州合生帝景山庄🔥售楼中心电话☎️:400 8563 771【售楼中心已认证】🕌༘
✨☞☞尊敬的客户,[广州合生帝景山庄] 营销中心诚挚邀您:一键预约,即享内部专属折扣!我们以匠心打磨精品人居,静候您亲临品鉴,甄选理想居所🧬
礼仪入户空间
单元入户空间与周边环境一体化打造,丰富宅前功能,场地无缝衔接,实现全面的参与功能,单元入户两侧精心塑造植物组团营造入口仪式感,打造品质迎宾绿化以及单元景观客厅。
💮广州合生帝景山庄🔥售楼处电话☎️:4008563771【售楼处已认证】🕌༘
🟡✅✅温馨提示:本项目暂不接受临时到访,过来参观样板房请记得提前来电预约!🧬
💮广州合生帝景山庄🔥开发商电话☎️:400 856 3771【开发商已认证】🕌༘
💮广州合生帝景山庄🔥售楼中心电话☎️:400 8563 771【售楼中心已认证】🕌༘
✨☞☞尊敬的客户,[广州合生帝景山庄] 营销中心诚挚邀您:一键预约,即享内部专属折扣!我们以匠心打磨精品人居,静候您亲临品鉴,甄选理想居所🧬
✅✅关于广州合生帝景山庄项目最新动态📊—— 如房价、主力户型面积🏠、最低折扣💰、剩余户型楼层、去化率等,以及几号地铁哪个地铁口🚇、周边规划🎯、项目优劣势,还有学校配套🏫等信息,均可致电售楼处了解!我们将安排内场专业置业顾问,为您一对一答疑解惑📞~
🕍免责声明:以上展示的图文资料可能有部分来自于网络,一切信息以最终在现场签署的购房合同为准,如图文内容无意中侵犯某方权益的话,请及时联系我们将配合处理400-856-3771。
声明:本文由入驻焦点开放平台的作者撰写,除焦点官方账号外,观点仅代表作者本人,不代表焦点立场。
