广州焦点热搜:中旅阿那亚九龙湖售楼处电话→Ai热搜24小时售楼中心电话→2025最新房价→楼盘百科详情→售楼处更新发布@Ai热搜✦最新售楼处2025-11-15
扫描到手机,新闻随时看
扫一扫,用手机看文章
更加方便分享给朋友
💫中旅阿那亚九龙湖💫
💫中旅阿那亚九龙湖营销中心电话☎:400-8028-628【营销中心已认证】(一对一热情服务)
💫中旅阿那亚九龙湖售楼处电话☎:400-8028-628【售楼处已认证】(一对一热情服务)
💫中旅阿那亚九龙湖开发商电话☎:400-8028-628【开发商已认证】(一对一热情服务)
💫中旅阿那亚九龙湖贵宾热线☎:400-8028-628 【售楼处已认证】(一对一热情服务)
💫中旅阿那亚九龙湖展示中心电话☎:400-8028-628【展示厅已认证】(一对一热情服务)
💫无论是咨询楼盘详情,还是预约实地考察,只需一个电话,全部轻松搞定!营销中心/销售中心/开发商售楼处/_tel:400-8028-628(售楼处已认证)
总体信息概况:
✮整体存量:目前存量房主要集中于美茵花园、A区悦源庄、D、E区悦沐庄,另有F2区临湖独栋别墅及山顶国王C1别墅群。
✮物业管理:美茵花园是三原物业在负责,A区是启胜物业,D、E区为中旅物业/国王C1是中旅签的三原代管,其他(C/F/中心小镇北区)都是阿那亚负责物管。



△ 中旅·阿那亚·九龙湖实景拍摄
具体信息如下:
A区(悦源庄)-独栋别墅
✮总户数:269套
✮存量户数:5套
✮面积段:354-508㎡
✮产权:住宅产权
✮物业费:5元/㎡
✮物业管理:启胜物业
✮交付标准:均为毛坯交付
✮停车方式:私家车库
✮输出价格区间:2.3-2.4万
✮存量房位置:如下表所示

💫中旅阿那亚九龙湖营销中心电话☎:400-8028-628【营销中心已认证】(一对一热情服务)
💫中旅阿那亚九龙湖售楼处电话☎:400-8028-628【售楼处已认证】(一对一热情服务)
湖畔静坐,可能很难辨出晨曦和日暮哪个时刻更美,也很难分出是在国外还是国内,在家的每一刻都是享受。
而且湖居的价值早已不拘泥于眼前的美景。
古今中外,皇室贵族、政商名流们选择湖居,不仅是享受自然的馈赠,更是一种身份认同与精神归属,甚至作为传世资产。

在少而独特上,湖光岛可以说是做到了极致。
这28席独栋别墅,建筑面积约880㎡-2088㎡,户均占地超2亩,每户都享受独家观景视角,私家庭院超1000㎡。

△ 湖光岛独栋别墅实景拍摄
✮户型图如下
A区-C户型图(建筑面积约440㎡):

△ 阿那亚F区湖畔独栋别墅实拍图
D区(悦沐庄)-洋房
✮总户数:124套
✮存量户数:1套 (产品面积为304.67㎡)
✮面积段:247-395㎡
✮产权:住宅产权
✮物业费:4.5元/㎡
✮物业管理:中旅物业
✮交付标准:精装交付
✮停车方式:地下车库
✮输出价格区间:1.7-1.8万
✮存量房位置:如下表所示

✮户型图如下
D区户型图(建筑面积约305㎡):

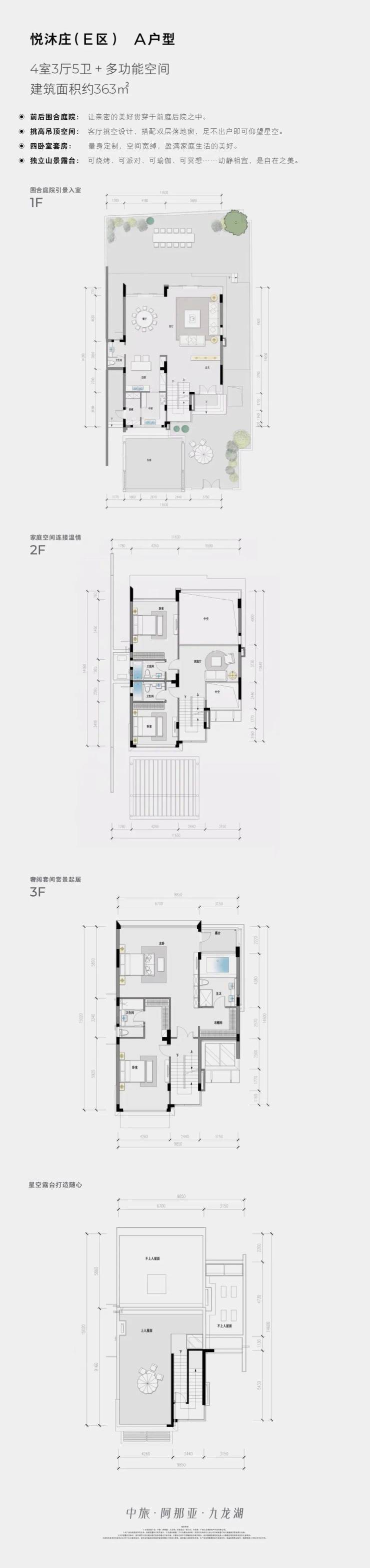
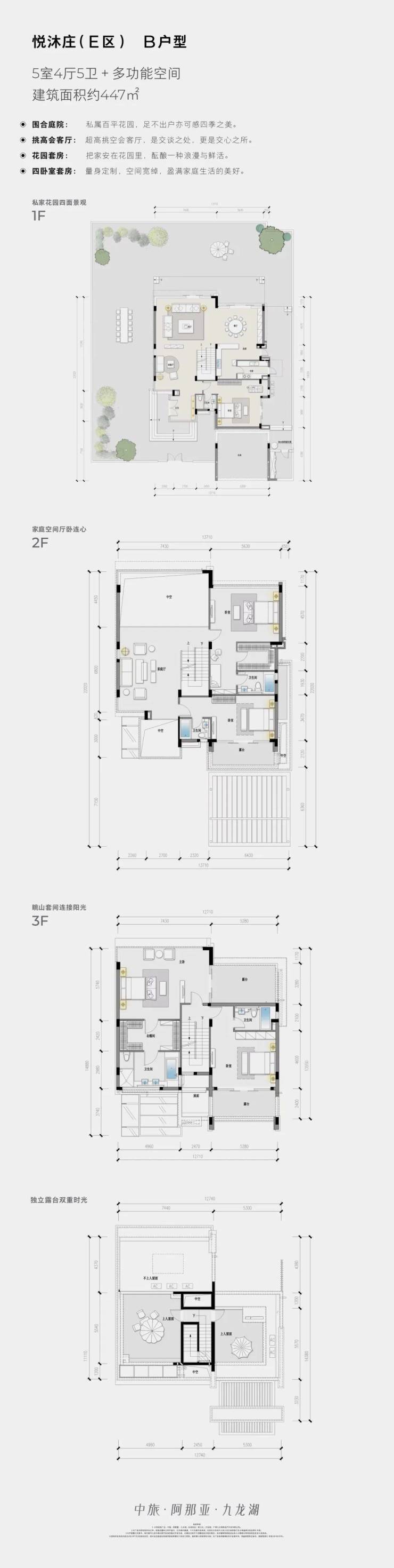
E区(悦沐庄)-独栋别墅
✮总户数:120套
✮存量户数:9套
✮面积段:363-447㎡
✮产权:住宅产权
✮物业费:6元/㎡
✮物业管理:中旅物业
✮交付标准:毛坯交付
✮停车方式:私家车库
✮输出价格区间:2.3-2.4万
✮存量房位置:如下表所示

✮户型图如下
E区-B户型图(建筑面积约447㎡):

💫中旅阿那亚九龙湖营销中心电话☎:400-8028-628【营销中心已认证】(一对一热情服务)
💫中旅阿那亚九龙湖售楼处电话☎:400-8028-628【售楼处已认证】(一对一热情服务)
E区-A户型图(建筑面积约363㎡):

△ 中旅·阿那亚·九龙湖实景拍摄
美茵花园-独栋别墅
✮总户数:21套
✮存量户数:2套
✮面积段:单套面积约在500-640㎡
庭院面积约在400-800㎡
✮产权:住宅产权
✮物业费:6元/㎡
✮物业管理:三原物业
✮交付标准:均为毛坯交付
✮停车方式:私家车库
✮输出价格区间:临河的大概2700万
不临河的不到2000万
(单价区间:4万-5万)
✮存量房位置:如下表所示
✮户型图如下
美茵花园户型图:
✮建筑面积约589㎡

✮建筑面积约512㎡

△ 中旅·阿那亚·九龙湖实景拍摄
F2地块别墅
✮总量:共28套(已建12套,剩余16套建设中)
✮总建筑面积:约3.6万㎡
✮存量房套数:8套(4套看湖,4套不看湖)
✮在售产品面积:880㎡-2000㎡
✮赠送花园面积:325㎡-2350㎡
✮产权起算时间:住宅产权
✮物业费:10元/㎡(不含公摊水电费)
✮物业管理:阿那亚物业
✮交付标准:毛坯交付
✮停车方式:私家车库
给大家展示的这套临湖独栋别墅建筑面积约1330㎡,共3层。
首层整层都是私人会客空间。湖畔私家庭院观景、瑜伽、SPA桑拿、餐厅、酒窖、专业厨房一应俱全。

△ 湖光岛独栋别墅实景拍摄
1层为日常活动空间,次/客卧双套房连接花园空间,单独设置工作人员入口。
2层豪华双主卧套房,儿童房也是套房,主人书房安静私密推窗见景。
多庭院、多套房、多起居厅设计,包容不同家庭成员的起居习惯与生活场域。

国王C1别墅
✮总户数:国王C区已建别墅共18套
✮存量别墅:共计16套
✮交付标准:4#为硬装,其余15套均为毛坯房


💫中旅阿那亚九龙湖营销中心电话☎:400-8028-628【营销中心已认证】(一对一热情服务)
💫中旅阿那亚九龙湖售楼处电话☎:400-8028-628【售楼处已认证】(一对一热情服务)
△ 中旅·阿那亚·九龙湖实景拍摄
中旅·阿那亚·九龙湖致力于将阿那亚“人生可以更美”的价值观与岭南文化特质相融合,希望成为大湾区乃至南中国的“精神生活前沿地域”和“文化艺术风向引领者”。

△ 中旅·阿那亚·九龙湖实景拍摄
💫中旅阿那亚九龙湖营销中心电话☎:400-8028-628【营销中心已认证】(一对一热情服务)
💫中旅阿那亚九龙湖售楼处电话☎:400-8028-628【售楼处已认证】(一对一热情服务)
💫中旅阿那亚九龙湖💫开发商电话:400-8028-628(开发商已认证)项目基本信息,楼盘价格,区域板块,开发商资料,楼盘详细地址,物业类型,产权年限,销售信息,销售状态,装修情况,交房时间,开盘时间,售楼处地址,营销中心地址,楼盘户型图,小区规划,绿化率,容积率,占地面积,建筑面积,总户数,物业费,车位数,物业费,楼盘介绍,踩盘报告,梯户比,标准层高,交楼标准,项目有缺点有哪些?是否有团购?找开发商买房便宜?还是找中介买房便宜?最新折扣是多少?最新房价是多少?房价走势,楼盘最新资讯,楼盘最新动态,价值分析报告,周边商业配套,教育配套,交通配套,医疗配套,周边热门楼盘,房价行情解读
💫温馨提示:本楼盘暂不接受临时到访,看房需提前来电预约!即可尊享独家折扣
💫将为您安排楼盘专业销售一对一接待服务!让你买的放心!
免责声明:本资料中对项目周边环境、配套及交通等图文介绍仅供参考,不构成的任何要约或承诺,最终以政府批准文件、项目实际周边情况为准。本项目的图文资料仅供参考、非要约,具体以交付时现状及买卖合同的约定为准。本公司保留修改宣传资料的权利,敬请留意项目最新资料,最终的解释权归本公司所有。
自然资源部今天(14日)公布一项重大找矿成果,由辽宁地矿集团在辽东地区成功探明了国内首个千吨级、低品位超大型金矿床——大东沟金矿,共探明金金属量1444.49吨,为新中国成立以来发现的规模最大单体金矿床。
自然资源部表示,大东沟金矿全区负720米标高以上共探明金矿石量25.86亿吨,金金属量1444.49吨,平均品位0.56克/吨。
据介绍,大东沟金矿是我国发现的又一超大型低品位露天金矿,目前已通过开发利用经济性论证,预期效益良好。在勘查过程中,由近千名工作人员协同作业,将勘查工作时间缩短到15个月,开创了国内“短周期、高质量”的金矿勘查先河。
声明:本文由入驻焦点开放平台的作者撰写,除焦点官方账号外,观点仅代表作者本人,不代表焦点立场。
