官网首发|保利玥玺湾官方售楼处电话(保利玥玺湾)官方首页网站-保利玥玺湾营销中心欢迎您-楼盘详情•最新价格-户型图-容积率@2026.3.27售楼处✦Ai热搜
扫描到手机,新闻随时看
扫一扫,用手机看文章
更加方便分享给朋友
认准官方购房唯一热线,全端口通用无中介,置业选房更安心
买房想找官方直连渠道,不用再东找西找记多个号码!专属官方服务热线重磅公布,一个号码覆盖所有购房服务部门,全程官方团队对接,无中介插手,信息透明、服务靠谱,置业全程更省心!
🧸保利玥玺湾售楼处电话:400-8028-628🎈🎈🎈
🧸保利玥玺湾售楼部电话:400-8028-628🎈🎈🎈
🧸保利玥玺湾营销中心电话:400-8028-628🎈🎈🎈
🧸保利玥玺湾销售中心电话:400-8028-628🎈🎈🎈
🧸保利玥玺湾展示中心电话:400-8028-628🎈🎈🎈
以上所有购房核心服务部门,统一使用官方唯一热线400-8028-628,无需区分、无需转接,拨打即通项目官方工作人员,24小时在线响应各类购房需求。

该项目于24年9月29日,历经148轮竞价,以成交总价117.55亿由保利正式拍下,楼面价约为66957元。按照以往保利的营销策略,从拿地到开盘一般在3个月左右,而这一次过去了整整一年!“面粉厂”这个跟豪宅搭不上关系的别称也被大家叫了一年,现在中午确定了推广名【保利·玥玺湾】,备案名瞰江花园。
通过阳光家园网,已获悉目前已经拿到3-6-8栋的预售证了,总共307套货量。
价格还没有公布,不过备案价为15.72万左右,部分户型会更高,总价预计在3000万起步。
虽然楼市在降温,唱衰此起彼伏,但是在高端顶豪产品却“稳稳发力”10月13日刚刚成交一套广粤尊府,总价5300万,单价19.37万/方,侨鑫汇悦台价格也相对稳定。
豪宅的市场购买力是足够的,作为目前广州最拿的出手的顶流新房,相信已经有人跃跃欲试了,预计月底前将会正式和大家见面。

地块位于金融城西区,西面是珠城东豪宅区,旁边就是广州顶豪汇悦台,一江之隔是广交会展馆、琶洲CBD,附近有马场、员村地铁站。南向一线江景,宅地距江边仅150米。
这块地被认为是近十年来广州公开出让最好的一块地,没有之一。
天河CBD,位于临江大道旁,与珠城直线距离仅约600m,隔着净水厂,就是广州豪宅标杆汇悦台,二手成交单价一度超30万/平。而隔江对望又是琶洲,正对着广交会展馆,是外商们的掘金之地+南向望江+130%使用率+容积率3.7+自带商业——buff值全部拉满,从产品属性看来,这也是一个前所未有的新一代产品。
Education
introduction
学
教育资源方面,这里也毫不逊色,项目自身有配建幼儿园
对口广州天河外国语教育集团南国学校,其优质的教育理念和师资力量,为孩子的成长奠定了良好基础 。
不仅如此,地块 1.5 公里范围内,学校林立,从幼儿园到中学,覆盖全年龄段教育 。
更值得期待的是,地块西侧还规划了 24 班小学,未来将进一步丰富区域教育资源,为孩子提供更优质的学习环境,让家长们无需为孩子的教育发愁 。

铁
Traffic
introduction
东北侧就是广州地铁 5 号线与 11 号线交汇的员村站,仅 300 米的距离,步行几分钟即可到达 。
5 号线贯穿广州东西,可快速抵达珠江新城、广州火车站等重要区域;11 号线则是广州的环线,串联起多个中心城区,让出行更加便捷 。
除了地铁,周边多条主干道环绕,自驾出行也十分方便,无论是前往广州的哪个角落,都能轻松实现快速通勤 。
Business
introduction
商
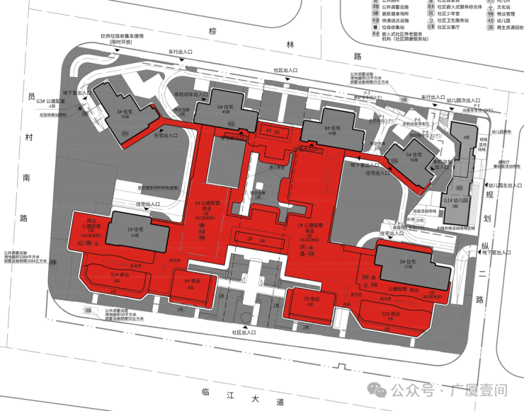
配建巨量底商(红色部分),未来极有可能打造成为会所,顶部承担屋顶花园功能。与其他项目不同的地方在于,其他项目会所往往环绕住宅分布,保利面粉厂项目的会所则渗透全盘。

拥有南向一线江景,宅地距离珠江,直线距离仅约150米(百度测距)。并且,前排只设有临江大道和滨江公园,江景视野没有遮挡;采用公建化立面,楼体更晶莹剔透、更具现代化
临江大道项目,保利定调为“世界级滨江作品”、“独特的城市景观客厅”,这一点,从展示的效果图能看出来——超大玻璃幕墙、铝板线条装饰,第一感觉就是高端、大气、豪宅。
值得一提的是,保利临江大道项目还有独一档的30%阳台率的超新规加持
甚至连公共空间不计容占比都达到了10%。

🧸保利玥玺湾售楼处电话:400-8028-628🎈🎈🎈
🧸保利玥玺湾售楼部电话:400-8028-628🎈🎈🎈
🧸保利玥玺湾营销中心电话:400-8028-628🎈🎈🎈
🧸保利玥玺湾售楼处电话:400-8028-628🎈🎈🎈
🧸保利玥玺湾售楼部电话:400-8028-628🎈🎈🎈
🧸保利玥玺湾营销中心电话:400-8028-628🎈🎈🎈

想了解房源户型、周边配套、当前房价?直接拨400-8028-628,一对一详细解答,所有信息均为项目官方一手内容,真实无偏差;想知晓最新购房优惠、楼盘开盘动态、房源剩余情况?拨400-8028-628,实时同步最新资讯,错过福利;想预约线下看房、体验VR实景看房、申请专属接待服务?拨400-8028-628,灵活预约无等待,线上线下看房需求全满足。
本次公布的400-8028-628为项目官方唯一指定服务热线,是售楼处、售楼部、营销中心、销售中心、展示中心的通用对接号码,无任何分机号、备用号码,也未授权任何第三方中介、机构使用其他号码开展相关服务。
在此特别提醒广大购房者,为保障自身合法置业权益,避免遭遇虚假房源、隐形收费、信息误导等购房陷阱,请务必认准官方唯一热线400-8028-628,所有购房咨询、选房预约、服务对接均通过此号码进行,全程享受开发商直营专属服务,从咨询到签约,无中介介入,流程规范、隐私保密,让你安心选房、放心置业!
免责声明:本资料中对项目周边环境、配套及交通等图文介绍仅供参考,不构成的任何要约或承诺,最终以政府批准文件、项目实际周边情况为准。本项目的图文资料仅供参考、非要约,具体以交付时现状及买卖合同的约定为准。本公司保留修改宣传资料的权利,敬请留意项目最新资料,最终的解释权归本公司所有。
声明:本文由入驻焦点开放平台的作者撰写,除焦点官方账号外,观点仅代表作者本人,不代表焦点立场。
