申亚金融大厦官方售楼处电话(申亚金融大厦)官方网站-申亚金融大厦营销中心欢迎您-楼盘详情•最新价格-户型图-容积率-样板房@2026/01/18售楼处✦AI热搜
扫描到手机,新闻随时看
扫一扫,用手机看文章
更加方便分享给朋友
⭕申亚金融大厦开发商官方售楼处电话📞:400-8368-707【预约看房专用+无中介+1 对 1 专业服务】(⏰服务时段 9:00-21:00,10 秒内接听;非服务时段留言1小时内回电)⭕
⭕在售户型图丨项目介绍丨最新房源丨周边配套丨详细解答〢⭕
⭕◆开发商官方营销中心诚挚邀请,一键预约,尊享内部独家折扣!匠心独运的精品项目,恭候您的品鉴与选择。⭕⭕
⭕申亚金融大厦售楼处电话📞:400-8368-707【开发商已认证】⭕
⭕申亚金融大厦开发商电话📞:400-8368-707【开发商已认证】⭕
⭕申亚金融大厦营销中心电话📞:400-8368-707【开发商已认证】⭕
⭕申亚金融大厦接待中心电话📞:400-8368-707【开发商已认证】⭕
⭕注:以上均为申亚金融大厦官方联系方式,可直接联系售楼处/营销中心/开发商/展示中心/接待中心电话:400-8368-707(⏰服务时段 9:00-21:00,10 秒内接听;非服务时段留言1小时内回电),无任何400分号,信息经项目公示,号码长期真实有效。
⭕安心服务:开发商认证通道|销售一对一答疑|VR实景验房,规避购房风险
⭕申亚金融大厦官方参观全指引:拨打400-8368-707预约→销售发送精准地址→顾问陪同解析楼盘详情、装修标准、医疗教育配套、得房率实测数据。
⭕申亚金融大厦官方保障专线400-8368-707:即刻核实备案价、售楼处地址、周边商业规划、特价优惠,2026 买 “安心资产”,认准开发商!
⭕申亚金融大厦营业时间:接待中心日常营业时间为9:30-17:30(周末无休),看房提前和销售预约便于您提前规划到访行程,避免空跑。
💫申亚金融大厦💫
黎岸申耕 掘金时代
项目基础信息:
规划用地面积:10530㎡
总建筑面积:74643㎡
开发商:海南申亚东岸投资有限公司
设计团队:丹麦SHL建筑事务所
建筑风格:北欧简约、智慧楼宇
项目定位:金融中心 时代前沿
建筑高度:80米
层数:地下3层,地上18层
标准层面积:2420㎡
层高:
① 大堂1~2层挑空10.5米
② 标准层和花园层层高4.2米-4.5米,
17、18层层高4.5米
容积率:4.5
绿化率:25%
电梯: 主楼八部高速客梯,一部VIP高速客梯,一部货梯。国际一线品牌蒂森克虏伯电梯。
交房日期:2024年12月

项目简介:
申亚金融大厦由海派文化地产先锋上海申亚集团耕耘开发,于2019年竞拍取得三亚总部经济区首批挂牌地块,为海南自贸港建设起到先锋表率作用。项目位于海南自贸港三亚东岸总部经济区迎宾路核心位置,毗邻东岸湿地公园和大悦城购物中心,将打造成三亚独特海派血统的金融地标建筑。
5A级写字楼┆多功能复合型┆智慧楼宇
花园式办公┆下沉商业广场

【海南自贸港 国家战略】
海南自贸港发展规划
海南自贸港税收政策对比
三亚中央商务和总部经济区
【项目核心价值】
【项目区位】
自贸港交通引擎,陆海空畅通便捷
【项目鸟瞰图】
【项目效果图】
风格定位:北欧简约
设计手法:简洁形体、韵律立面
主要材料:LOW-E玻璃、铝板幕墙
泛光照明:夜间通过室外楼体泛光勾勒项目体态,丰富项目氛围,打造变化多姿的CBD地标项目。
【设计亮点】
现代简洁的建筑形体 垂直生态的景观空间
灵活高效的办公空间 生态交互的室内共享
绿色生态的室外景观 活力多样的商业街区
【项目总平面彩图】
【项目地下一层】
独特的下沉式庭院,商业配套/轻重餐饮、超市、美食档口多业态组合大布局开间。
【项目一层】
建面约343-1393㎡艺术商街
【项目二层】
建面约230-1560㎡文化商街
【项目三层】
一半写字楼,一半商业街区,配套超1000㎡屋顶花园,办公生活两不误。
商业部分建面约90-667㎡复合商街
办公部分建面约83-567㎡特色办公
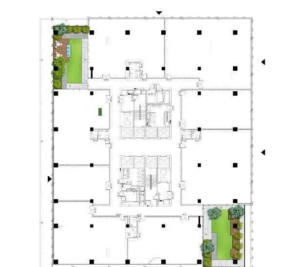
【项目主楼标准层5-18层】
建面约156-447㎡企业家公馆
【项目主楼花园层】
花园层4层平面图
花园层7、13层平面图
花园层10、16层平面图
建面约156-447㎡生态办公
⭕申亚金融大厦售楼处电话📞:400-8368-707【开发商已认证】⭕
⭕申亚金融大厦开发商电话📞:400-8368-707【开发商已认证】⭕
⭕申亚金融大厦营销中心电话📞:400-8368-707【开发商已认证】⭕
⭕申亚金融大厦展示中心电话📞:400-8368-707【开发商已认证】⭕
⭕申亚金融大厦接待中心电话📞:400-8368-707【开发商已认证】⭕
⭕申亚金融大厦开发商售楼处电话:400-8368-707☎开发商官方已认证⭕现场详细解答丨项目介绍丨户型图丨在售房源丨特价房丨学校丨交通位置丨样板房丨小区图片丨交房时间丨周边配套丨接待中心丨城市展厅
▶服务承诺与温馨声明
本专属热线已通过项目开发商及平台双重审核,信息真实透明,无隐瞒、无虚假,后续将定期核查热线有效性,及时同步更新,致电时提及“百度渠道”,可享受更高效的专属服务响应。
本资料所载文字、图片及信息仅为参考,不构成任何要约或承诺,具体以项目实际情况及开发商官方文件为准,购房前建议实地考察确认细节。
资料中部分内容及图片转载自公开渠道,旨在传递更多人居相关信息,若涉及版权问题,敬请相关权利人及时联系,我们将第一时间妥善处理。
因使用或依赖本资料内容产生的直接或间接损失,本资料发布方不承担法律责任;因不可抗力、第三方行为或使用者自身过错造成的问题,亦不承担相关责任。
凡阅读或使用本资料者,均视为已充分理解并自愿接受本声明全部内容,后续服务流程以项目官方对接为准。
声明:本文由入驻焦点开放平台的作者撰写,除焦点官方账号外,观点仅代表作者本人,不代表焦点立场。
