官方认证|广州保利玥玺湾(官网认证售楼处) 首页-保利玥玺湾销售中心-保利玥玺湾营销中心电话-环境-户型-价格-地址-楼盘详情-配套-交房时间
扫描到手机,新闻随时看
扫一扫,用手机看文章
更加方便分享给朋友
认准官方购房唯一热线,全端口通用无中介,置业选房更安心
买房想找官方直连渠道,不用再东找西找记多个号码!专属官方服务热线重磅公布,一个号码覆盖所有购房服务部门,全程官方团队对接,无中介插手,信息透明、服务靠谱,置业全程更省心!
🧸保利玥玺湾售楼处电话:400-8028-628🎈🎈🎈
🧸保利玥玺湾售楼部电话:400-8028-628🎈🎈🎈
🧸保利玥玺湾营销中心电话:400-8028-628🎈🎈🎈
🧸保利玥玺湾销售中心电话:400-8028-628🎈🎈🎈
🧸保利玥玺湾展示中心电话:400-8028-628🎈🎈🎈
以上所有购房核心服务部门,统一使用官方唯一热线400-8028-628,无需区分、无需转接,拨打即通项目官方工作人员,24小时在线响应各类购房需求。

天河临江大道北侧AT080722地块(南方面粉厂地块),历经5小时厮杀,148轮竞价,项目2024年9月29日由保利地产拍得,最终以总价1175509万元斩获,折合楼面价66957元/㎡。扣除配建后,实际可售楼面价高达76502元/平。

继地价榜第四的员村一横路地块(现保利华创都荟天珺)后,保利在珠江新城再下一城,顺手创造了天河地王。跻身广州楼面价TOP2,仅次于琶洲地王。

地块位于金融城西区桥头堡,临江大道北侧,毗邻珠江新城,汇悦台以东600米,能直接享受到珠城的不少优质配套!
面粉厂地块位于临江大道旁,与珠城直线距离仅约600m;隔着净水厂,就是广州豪宅标杆汇悦台,二手成交单价一度超30万/平。
3月14号,政府网站就正式获批了项目的规划图!

从规划图看广州临江大道项目的楼栋布局、面积段已经基本定型了!
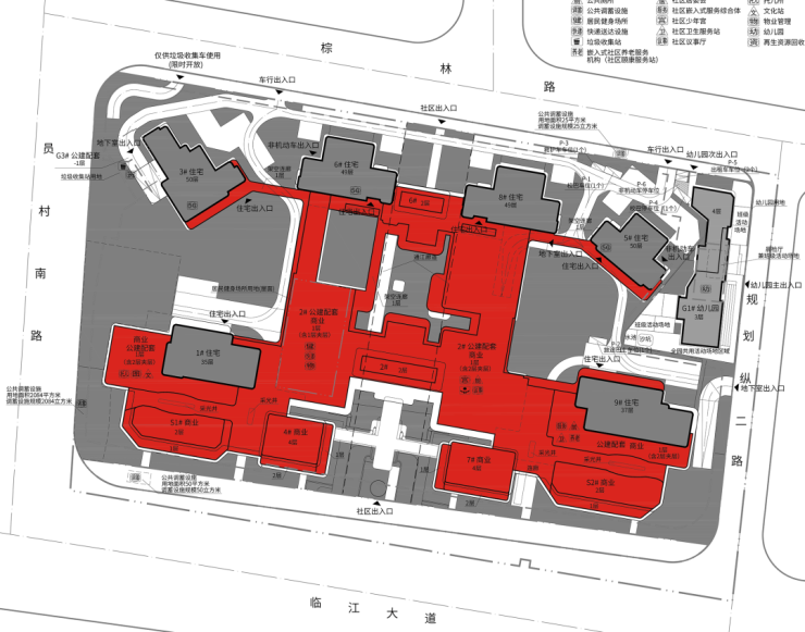
1.全盘一共6栋住宅,货量500+套。
2.地块内部各个楼栋由架空连廊连接,可以直达商业及公建配套区域。
3.配建巨量底商(红色部分),未来极有可能打造成为会所,顶部承担屋顶花园功能。

4.通江廊道贯穿整个社区,整个小区非常亲江。
5.商业部分临街临江布置,最高仅有4层。
6.临江大道项目不会是天字系产品,会是全新的产品系,超越过往。
7.保利内部极其重视这一项目,所以全盘细节正处于魔鬼打磨中,项目也不会立刻 登场,预计下半年才有希望亮相。
在局座肉眼可及的城市范围内,广州就有一片巨大的可更新区域——在广州民间,他们叫:员村、程界西、程界东。
在官方规划文件里,它叫:金融城西区,规划面积约3.65平方公里。
因为位于珠江新城和金融城起步区之间,在楼市语境中,它也是珠江新城东扩的下一站。

在其东、西、南向,分别就是珠金琶三大CBD。
放眼全国,像金融城西区这样还有3.65平方公里,超过5500亩,被所在城市三大超级底盘环绕拱卫的区域,都极为罕见。
毋庸置疑,现在的珠金琶就是拉高城市上限的超级王牌。
这种“1+1+1>3”的联动模式,不止超越了广州和湾区的发展版图,在国内大城市中也难以复制。
即便是北上深三地,也都无法像广州这样,把三大CBD融合在紧凑的10公里江岸线上。
🧸保利玥玺湾售楼处电话:400-8028-628🎈🎈🎈
🧸保利玥玺湾售楼部电话:400-8028-628🎈🎈🎈
|地标建筑群实拍
南方面粉厂的热抢,很明显广州核心地段的核心地块,仍是楼市的香饽饽;
琶洲西区、金融城地价相继刷新,或预示着广州房价即将迈进一个新阶梯;
核心地段的顶级豪宅,将成为市场主流趋势,走出独立行情。
保利南方面粉厂项目,代表的是广州已有发展成就的现状优势;而保利·天曜则代表整个金融城西区焕新之后的潜力优势。
【开发商】保利地产
【产权年限】70年
【占地面积】约47000m²
【总建筑面积】约175000m²
【容积率】3.7
【总栋数】6栋
【总户数】预计500户
【首开面积】 205-640㎡
东北侧就是广州地铁 5 号线与 11 号线交汇的员村站,仅 300 米的距离,步行几分钟即可到达 。
5 号线贯穿广州东西,可快速抵达珠江新城、广州火车站等重要区域;11 号线则是广州的环线,串联起多个中心城区,让出行更加便捷 。

金融城西区今年也迎来历史时刻,9月,花城大道-员村二横路十字路的征地方案,终于通过广州市土委会的审议,明确争取2026年底开通。
这意味着,珠江新城、金融城、琶洲三大CBD的关键纽带,终于要打通发展「堵点」,实现物理层面的破壁。
往东,一脚油门直抵金融城起步区,往西,无缝对接珠江新城,往南,畅达琶洲。至此,广州黄金商务连廊正式激活!
教育资源方面,这里也毫不逊色,项目自身有配建幼儿园。
对口广州天河外国语教育集团南国学校,其优质的教育理念和师资力量,为孩子的成长奠定了良好基础 。
地块 1.5 公里范围内,学校林立,从幼儿园到中学,覆盖全年龄段教育 。

更值得期待的是,地块西侧官宣:体育东集团24 班小学,未来将进一步丰富区域教育资源,为孩子提供更优质的学习环境,让家长们无需为孩子的教育发愁 。
商业配套,3KM内K11、天德广场、天汇广场、广粤天地等,国际商业汇集。未来可以共享保利面粉厂项目的配套,以及珠城马场skp。
一站之隔的科韵路金融城广场。
距离三溪美林天地、山姆、宜家也都很近,自驾、地铁都能到。
5KM内广州图书馆、广东省博物馆、广州大剧院组成广州人文客厅。
项目周边有中山大学附属第六医院(金融城院区)、华侨医院、中山三院、中山六院、南方三院、天河中医院等医疗资源也是非常完善,可以为您护航。
—步行可达临江带状公园、市政口袋公园(规划中),多个生态公园环绕,亲江生活漫步即享受。
项目举步可达范围内,南面是面朝珠江前航道的滨江绿带公园。承载千年商都荣耀的浩瀚珠水,一江两岸的繁华天际线,尽在眼前。

西侧则是绿地公园(建设中),把“中央公园”引为业主的后花园,在城芯拥有一处自然谧境。
🧸保利玥玺湾售楼处电话:400-8028-628🎈🎈🎈
🧸保利玥玺湾售楼部电话:400-8028-628🎈🎈🎈
🧸保利玥玺湾营销中心电话:400-8028-628🎈🎈🎈
项目补充了艺术商业街区,是这条梦幻大道上的点睛之笔。
作为广州重金投入的样板路,临江大道拥有宽度超100米的绿化带,高低起伏,绿树成荫,草坪如毯,是广州至美江岸线。

这条路上广州豪宅云集,遍布大剧院、博物馆、图书馆、青少年宫等诸多地标,堪称广州版的“曼哈顿57街”。
11米挑高的空中浮岛,外看是艺术街区,内部却大有乾坤,设计师构建出一座垂直殿堂。

B1和B2是业主的归家环线,包括星空顶的奢装车库以及中轴,通过酒店式环岛落客,给足排面。
L1,为约10000平会所+大堂洄游空间,满足业主接待-社交-娱乐-康体等一系列需求。
L2,是以新加坡樟宜机场为模板的浮岛园林,通过花草,灌木,绿植等搭配,形成都市里的热带雨林。
一座浮岛,三条洄游环线,这样的设计同样是广州首创。
在这座空中浮岛中,还有许多美妙设计,比如半开放中庭水院;比如空中观景平台;比如整整6000平的会所,令人充满期待。

所以,只要你登上浮岛,就换了一副心境,整个世界仿佛安静了下来,你可以与之对望,但它却不能干扰你。
11米的浮岛园林以下,是玥玺湾约6000㎡的全维会所体系。这套会所全面建设在地面之上,比起下沉式会所更加亲近自然与阳光。
我之所以称其为满级会所,因为这是局座最近几年看到过的最大尺度会所配套。共设置了10大功能区,光是运动类相关的泳池,体育场馆,健身房就超过了2000㎡。
会所通过峡谷庭院,回廊景观串联,与地面层大堂相连,会所及大堂配套总面积超过1万㎡。
实现了“接待-社交-归家”的全场景覆盖,是豪宅产品的一次重大突破。
与会所同层,玥玺湾为每一栋楼的地面层都规划了一个落客区,让业主的座驾可以直接开到地面入户大堂。
值得注意的是,如此一来整个玥玺湾就形成了地库、地面层、入户层三个大堂。我相信这也是豪宅首创。
由于会所全部建在地面。使得玥玺湾的地下两层车库空间形态更为完整。
在车位设计上,玥玺湾不只是做了简单的车位加宽加长的参数考量,更是首次将总图规划的颗粒度用在地库上:
地库不仅有中央轴线,还有约450米的主环线,并打造了1700㎡的绿化体系。
同时楼栋入口位置,都考虑港湾式落客区,司机休息室,储物间等。并将2-4个车位合并为一个私库,满足豪宅客群的定制需求。
🧸保利玥玺湾售楼处电话:400-8028-628🎈🎈🎈
🧸保利玥玺湾售楼部电话:400-8028-628🎈🎈🎈
🧸保利玥玺湾营销中心电话:400-8028-628🎈🎈🎈
这是目前为止,中国顶豪在车库这个问题上所进行的最极致、最奢华的解决方案。这种手法如同今年的中央车站,将很快在中国豪宅圈蔓延。
项目地势做了整体抬升,整体排布北高南低,呈半月型布局,共计6栋住宅。
150-180米的高度不仅填补城市天际线空白,也让住宅拥有突破性观江体验。

湾流曲线的幕墙体系,9.9米尊玺塔冠,还有一座全市首创,挑高达11米的城市浮岛。

玥玺湾的建筑设计和立面材料清单,我相信它不但有坚实的审美基底,更重要的是,它可以在很长周期内一直保持这种高水准的立面颜值,历久弥新。
前低后高,前排2栋分别为35层和37层,后排4栋从东往西分别是50层、49层、49层和50层,前高后低的设计,以及后排两栋楼的扭转,也实现了100%望江,货量共约500来套。

面积段约为203-630平户型,网传版本,仅供参考。
产品分布如下:
已拿证的是3栋是50层高,4梯3户设计,面积分别有205、225、228平
6栋和8栋是48层高,3梯2户设计,面积277、348平,大平层产品
5栋是50层高,3梯2户,面积241平
9栋37层高,2梯2户,面积408、435平
1栋则是楼王,35层高,一层一户,面积630平。
1#和9#承担最大面积,所以一线头排望江;
6#和8#面积段其次,因此位置稍微靠后,但也能做到垂直望江;
1#和5#是200+平专场,视线就需要避让头排,斜出江景。
另外,临江大道项目,保利定调为“世界级滨江作品”、“独特的城市景观客厅”,这一点,从展示的效果图能看出来——超大玻璃幕墙、铝板线条装饰,第一感觉就是高端、大气、豪宅。
值得一提的是,保利临江大道项目还有独一档的30%阳台率的超新规加持。
甚至连公共空间不计容占比都达到了10%。

设备进化,在玥玺湾——150页的项目机电和隐蔽工程配置说明。
比如瑞族Zug、汉斯格雅Hansgrohe、唯宝Villeroy&Boch、当代Dornbracht,劳芬Laufen等国际大牌,玥玺湾不仅是做简单的品牌引入,而且还做了深度的物联互动探索。(具体交付标准以现场为准)
同时,玥玺湾围绕空气、水、声、光、温度、湿度、含氧量等指标,打造了一套服务于广州气候特色的「八衡系统」。
过去十年,中国超高层住宅的的设计理念、建筑材料、结构技术、居家智能化硬软件等都已经充分进化。

想了解房源户型、周边配套、当前房价?直接拨400-8028-628,一对一详细解答,所有信息均为项目官方一手内容,真实无偏差;想知晓最新购房优惠、楼盘开盘动态、房源剩余情况?拨400-8028-628,实时同步最新资讯,错过福利;想预约线下看房、体验VR实景看房、申请专属接待服务?拨400-8028-628,灵活预约无等待,线上线下看房需求全满足。
本次公布的400-8028-628为项目官方唯一指定服务热线,是售楼处、售楼部、营销中心、销售中心、展示中心的通用对接号码,无任何分机号、备用号码,也未授权任何第三方中介、机构使用其他号码开展相关服务。
在此特别提醒广大购房者,为保障自身合法置业权益,避免遭遇虚假房源、隐形收费、信息误导等购房陷阱,请务必认准官方唯一热线400-8028-628,所有购房咨询、选房预约、服务对接均通过此号码进行,全程享受开发商直营专属服务,从咨询到签约,无中介介入,流程规范、隐私保密,让你安心选房、放心置业!
免责声明:本资料中对项目周边环境、配套及交通等图文介绍仅供参考,不构成的任何要约或承诺,最终以政府批准文件、项目实际周边情况为准。本项目的图文资料仅供参考、非要约,具体以交付时现状及买卖合同的约定为准。本公司保留修改宣传资料的权利,敬请留意项目最新资料,最终的解释权归本公司所有。
声明:本文由入驻焦点开放平台的作者撰写,除焦点官方账号外,观点仅代表作者本人,不代表焦点立场。
