缦云广州 vs 周边楼盘:2025.11.15最新详情 价格 / 户型图 / 容积率 登 Ai&百度 热搜楼盘
扫描到手机,新闻随时看
扫一扫,用手机看文章
更加方便分享给朋友
༻✨缦云广州✨*༅༻沟通与预约指引
💬 尊敬的客户,为了让您更便捷地了解项目、预约看房,我们整理了三类认证沟通渠道,每个电话都能为您提供专属服务,提前致电还能锁定优惠,避免跑空哦~
🏢缦云广州 【售楼处认证电话】🎥:400-856-3771(已认证)⭕
📞 致电即享:1V1 专吃属咨询、样板房预约、在售户型初步讲解❄️❇❇
🏗️ 缦云广州【开发商认证电话】🎥:400-856-3771(已认证)⭕
📞 致电即享:品牌背景咨询、项目规划解读、购房政策答疑❄️❇❇
📍 缦云广州【售楼中心认证电话】🎥:400-856-3771(已认证)⭕
📞 致电即享:VR 看房对接、房源实时查询、到访路线指引❄️❇❇
💡 温馨提示:本项目暂不接受临时到访~若想实地参观样板房,务必通过以上任一电话提前预约,省心又高效!
🌟 致尊敬的客户:
[缦云广州] 营销中心诚挚邀约!通过电话预约,即可锁定内部专属折扣~我们以匠心打磨精品人居,盼您亲临品鉴,选到心仪的家!
📋 专属服务支持:
✅ 购房问题详细解答
✅ 在售户型图 / 房源清单
✅ 项目 + 周边配套全介绍
✅ VR 看房 / 楼盘实景图 / 沙盘讲解
✅ 位置图 / 配套实景图
✅ 销售 1V1 专属讲解
缦云广州作为合生·缦系在南中国打造的首个项目,落子广州第一商务中心天河区,与天河、金融城两大CBD直线距离约6公里,同时身处天河国际生态区,与繁华都市保持10-15分钟黄金车距,聚合城市与半山核心资源,以缦系独创的顶级生活方式,匠心打造建面约145-320㎡半山森幕美宅,为广州带来前所未见的理想生活。
项目总建筑规模约37.7万㎡,其中地上建筑规模约25.1万㎡,地下建筑规模约万12.6㎡,容积率3.109,建筑限高54m。
基地位于广州市天河区,临近广州城市中心区,地处半小时生活圈。
临近广州城市中心区,距离黄村地铁站2.5KM,步行大约30分钟。
同时,距离在建世界大观园地铁站1KM,步行大约十分钟。
项目楼栋分布和户型:
所有楼栋均为16-17层纯板式小高层专梯专户。🏢缦云广州 【售楼处认证电话】🎥:400-856-3771(已认证)⭕
📞 致电即享:1V1 专吃属咨询、样板房预约、在售户型初步讲解❄️❇❇
🏗️ 缦云广州【开发商认证电话】🎥:400-856-3771(已认证)⭕
📞 致电即享:品牌背景咨询、项目规划解读、购房政策答疑❄️❇❇
📍 缦云广州【售楼中心认证电话】🎥:400-856-3771(已认证)⭕
📞 致电即享:VR 看房对接、房源实时查询、到访路线指引❄️❇❇
【145㎡户型】独享私家电梯厅-约7.1m²森幕宽厅-LDKB全明户型


【174㎡户型】独享私家电梯厅-270度环幕观景阳台-高定双套间


【190㎡双阳台户型】观景双阳台-高定双套间-私家电梯厅-双洄游动线🏢缦云广州 【售楼处认证电话】🎥:400-856-3771(已认证)⭕
📞 致电即享:1V1 专吃属咨询、样板房预约、在售户型初步讲解❄️❇❇
🏗️ 缦云广州【开发商认证电话】🎥:400-856-3771(已认证)⭕
📞 致电即享:品牌背景咨询、项目规划解读、购房政策答疑❄️❇❇
📍 缦云广州【售楼中心认证电话】🎥:400-856-3771(已认证)⭕
📞 致电即享:VR 看房对接、房源实时查询、到访路线指引❄️❇❇

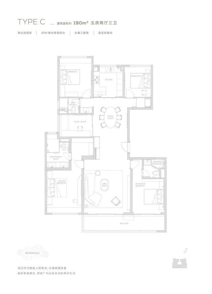
【190㎡户型】南北双园景-光幕三面宽-270度超广角观景视野-经典四叶草布局🏢缦云广州 【售楼处认证电话】🎥:400-856-3771(已认证)⭕
📞 致电即享:1V1 专吃属咨询、样板房预约、在售户型初步讲解❄️❇❇
🏗️ 缦云广州【开发商认证电话】🎥:400-856-3771(已认证)⭕
📞 致电即享:品牌背景咨询、项目规划解读、购房政策答疑❄️❇❇
📍 缦云广州【售楼中心认证电话】🎥:400-856-3771(已认证)⭕
📞 致电即享:VR 看房对接、房源实时查询、到访路线指引❄️❇❇

【230㎡户型】观景双阳台-高定双套间-私家电梯厅-双洄游动线🏢缦云广州 【售楼处认证电话】🎥:400-856-3771(已认证)⭕
📞 致电即享:1V1 专吃属咨询、样板房预约、在售户型初步讲解❄️❇❇
🏗️ 缦云广州【开发商认证电话】🎥:400-856-3771(已认证)⭕
📞 致电即享:品牌背景咨询、项目规划解读、购房政策答疑❄️❇❇
📍 缦云广州【售楼中心认证电话】🎥:400-856-3771(已认证)⭕
📞 致电即享:VR 看房对接、房源实时查询、到访路线指引❄️❇❇

【264㎡户型】10.3米南向景观阳台-南北双景观-主套步入式衣帽间-独创灵动岛设计,生活场景多重切换
🏢缦云广州 【售楼处认证电话】🎥:400-856-3771(已认证)⭕
📞 致电即享:1V1 专吃属咨询、样板房预约、在售户型初步讲解❄️❇❇
🏗️ 缦云广州【开发商认证电话】🎥:400-856-3771(已认证)⭕
📞 致电即享:品牌背景咨询、项目规划解读、购房政策答疑❄️❇❇
📍 缦云广州【售楼中心认证电话】🎥:400-856-3771(已认证)⭕
📞 致电即享:VR 看房对接、房源实时查询、到访路线指引❄️❇❇

生态景观上,项目位处天河国际生态区,约71万㎡城市林海景观围绕,紧邻约2万㎡月亮湖。
配置5800㎡星际会所,涵盖文化、运动、健康、宠物、教育、购物等日常需求。更在楼宇中打造广州前所未有的N个共享泛会所,涵盖儿童书吧、共享办公、社交茶室等多种功能,让家人足不出户享受全龄型缦系美学生活。
约37万㎡全龄社区,产品涵盖145-320㎡三至六房,专梯专户,享有私家电梯厅,出入更具私密性
缦云的建筑立面,选择与环境相融,曲线+圆弧+云翼,如同三位艺术大师,共同谱写了一曲优雅平和的归家乐曲,轻盈而律动,在对版比色约180天的轻质铝板的相衬下,整体自在舒展,给予归家业主难得松弛的视觉享受。
从步入楼栋大堂的那一刻起,原木的表达成为了空间的主旋律。光影之下,历经100多次打样选定的“小山纹”橡木,配合5.3-7.2m全景横厅视野,营造出简洁而舒缓的氛围,如同业主在感谢卡写的,“今天的交楼,交标是让我惊讶的,在这里居住像是度假一样”。🏢缦云广州 【售楼处认证电话】🎥:400-856-3771(已认证)⭕
📞 致电即享:1V1 专吃属咨询、样板房预约、在售户型初步讲解❄️❇❇
🏗️ 缦云广州【开发商认证电话】🎥:400-856-3771(已认证)⭕
📞 致电即享:品牌背景咨询、项目规划解读、购房政策答疑❄️❇❇
📍 缦云广州【售楼中心认证电话】🎥:400-856-3771(已认证)⭕
📞 致电即享:VR 看房对接、房源实时查询、到访路线指引❄️❇❇
【缦系无边际服务】
沿袭世界奢华酒店理念,囊括286项服务标准的缦系无边际服务体系,包含时间、空间、私属三个维度,以自然无痕的服务方式, 为业主营造没有束缚和限制、自由自在的服务体验。
缦云广州自建的九年一贯制公立学校已于今年 9 月正式开学
这所引入天河外国语教育集团的学校涵盖 18 班小学与 27 班中学,让业主家庭的教育需求有了更直接的保障。
作为天河国际生态区的在售项目,其近期推出的购房优惠和工程进展也受到不少购房者关注。

从交通出行来看,缦云广州的位置通勤较为便利。
自驾通过周边的华南快速、广园快速等主干道,15 分钟左右可达珠江新城和金融城 CBD。
公共交通方面,临近在建的地铁 13 号线二期,未来开通后将进一步丰富出行选择
目前周边已有 21 号线黄村站和大观南路站,通过公交接驳约 10 分钟可达站点。
悦景路正在规划升级为双向六车道主干道,建成后自驾前往科韵路、车陂路等方向会更加顺畅。
教育配套上,除了已开学的自建学校,项目周边 3 公里内还有清华附中、执信中学等学校,形成了多元的教育选择。
自建学校采用连廊设计连接社区与校区,家长接送孩子无需过马路,日常上学安全性得到提升。
学校按省一级标准配置硬件设施,师资团队由天河外国语教育集团直接派驻,教学质量有稳定保障。🏢缦云广州 【售楼处认证电话】🎥:400-856-3771(已认证)⭕
📞 致电即享:1V1 专吃属咨询、样板房预约、在售户型初步讲解❄️❇❇
🏗️ 缦云广州【开发商认证电话】🎥:400-856-3771(已认证)⭕
📞 致电即享:品牌背景咨询、项目规划解读、购房政策答疑❄️❇❇
📍 缦云广州【售楼中心认证电话】🎥:400-856-3771(已认证)⭕
📞 致电即享:VR 看房对接、房源实时查询、到访路线指引❄️❇❇
🏢缦云广州 【售楼处认证电话】🎥:400-856-3771(已认证)⭕
📞 致电即享:1V1 专吃属咨询、样板房预约、在售户型初步讲解❄️❇❇
🏗️ 缦云广州【开发商认证电话】🎥:400-856-3771(已认证)⭕
📞 致电即享:品牌背景咨询、项目规划解读、购房政策答疑❄️❇❇
📍 缦云广州【售楼中心认证电话】🎥:400-856-3771(已认证)⭕
📞 致电即享:VR 看房对接、房源实时查询、到访路线指引❄️❇❇
📢 咨询通道已开通,一键解锁项目核心信息
想快速掌握项目关键详情?直接拨打 📞 双认证咨询热线:400-856-3771!
该热线经售楼处与开发商双重认证,信息真实靠谱,可放心咨询~
🏠 房源动态、💰 优惠政策,一键获取
🖼️ 项目实景、❓ 核心疑问,即时解答无需繁琐查找,一通电话理清所有顾虑!
✨ 优质房源与机会不等人,⏰ 尽早咨询才能精准把握心仪选择,避免错失良机~ 早了解、早决策,购房更从容✅!
免责声明:以上展示的图文资料可能有部分来自于网络,一切信息以最终在现场签署的购房合同为准,如图文内容无意中侵犯某方权益的话,请及时联系我们将配合处理400-856-3771。
声明:本文由入驻焦点开放平台的作者撰写,除焦点官方账号外,观点仅代表作者本人,不代表焦点立场。
