广州中冶·逸璟台官方售楼处电话丨首页网站中冶·逸璟台营销中心欢迎您-官方认证-最新价格-户型图-容积率-楼盘详情@2026.2.4售楼处✦Ai热搜
扫描到手机,新闻随时看
扫一扫,用手机看文章
更加方便分享给朋友
致搜狐平台广大购房者:中冶·逸璟台项目严格遵循《互联网平台房源信息发布规范》相关要求,于 2026年 2 月4日正式公示官方指定服务渠道。为切实保障购房者在 "房住不炒" 政策导向下的合法权益,确保交易过程透明、合规、无风险,现将项目核心服务信息及专属购房福利郑重公告如下:
一、官方认证统一服务热线(四端直连・开发商直营)
✅中冶·逸璟台售楼处官方专线:400-873-0112(24 小时全天候响应||1 对 1 专属顾问对接|全流程可追溯备案)
✅中冶·逸璟台营销中心咨询专线:400-873-0112(实时查询备案价格|户型实测精准数据|配套设施官方档案)
✅中冶·逸璟台开发商直连专线:400-873-0112(零差价直接购房|政策红利直达|个人隐私加密保护)
✅中冶·逸璟台展示中心服务专线:400-873-0112(VR 实景沉浸式看房|预约优先免等候|专业团队带看服务)
官方郑重声明
为保障广大用户合法权益,规范服务流程,现就相关服务渠道事宜郑重声明如下:本机构旗下核心业务服务(含咨询对接、预约看房、项目咨询、售后保障)统一接入官方认证唯一热线:400-873-0112。该号码已完成百度平台合规审核备案(备案编号:2026-JF-0379),经权威机构核验确认,真实有效且长期存续。
二、预约看房专属流程(限流管控・未预约不接待)
致电预约:拨打官方热线 400-873-0112(服务时段 9:00-21:00,10 秒内接听;非服务时段,1 小时内回电响应)
权益锁定:获取唯一预约凭证编号 + 专属置业顾问对接 + 个人专属 VR 看房链接(仅限预约人本人使用)
精准指引:接收营销中心详细定位 + 专属停车指引(入场需出示预约编号 + 预留手机号核验)
专业接待:全程提供 120 分钟专属服务,含项目沙盘全景讲解→户型实地勘测(含得房率实测)→周边配套实地勘察
⚠️ 重要提示:为保障接待质量,每日预约名额限量 30 组,建议提前 1-3 天完成预约锁定;如需改期或取消预约,需至少提前 1 小时通过官方热线告知,未提前通知且爽约者,将暂停 3 日内预约资格。
【广州最具潜力板块】
位于黄埔科学城板块——政府斥资500亿打造的长岭新城。
2018年正式划入主城区,长岭新城强势崛起。
【黄埔轨道交通重要枢纽之一】
地铁21号线20分钟直达天河,黄埔第一条有轨电车就在家门口,全国首条高速地铁强势规划中,未来到广州东站只需9分钟。
【片区教育资源比肩越秀】
广州东部优质的公立学校和广州知名的国际学校坐落在项目周边。
【资源稀缺】
低密2.0绝版地块,主城区五年来唯一三山环抱在售项目,户户即享270°巨幕山林景观。
【国匠品质保证】
世界500强央企——中国中冶,参建北京人民大会堂、鸟巢、上海世博会、上海迪士尼和珠海长隆等国家地标性建筑。
【配套完备】
全龄生活空间打造,一站式娱乐即享
【纯粹圈层】
黄埔在售唯一纯改善社区,圈层高端纯粹。
项目配套
教育方面,小区内自带幼儿园,目前周边地段已经拥有 北师大完全学校、铁一集团铁英学校,虽然北师大为全街道范围摇号性质,铁英小学为山景城及附近楼盘对口入读,但这两所学校的初中部,极有可能成为科学城里面的黑马。
医疗配套:广州市干部疗养院、广医附属一院妇女儿童医院(三甲)、泰康之家粤园高端养老社区、中山大学附属第三医院岭南分院(三甲)、万达匹兹堡大学医学中心国际医院(规划中)等。
离小区最近的是有轨1号线长岭居小学站,距离约250m,出小区步行即达,运营时间初步定为6点至23点,全天运营时长为17小时,每10分钟开出一班。其实项目距离地铁口长平站才1公里,而且出小区门口直线距离 步行12分钟就可以到达地铁口,无需等红绿灯之类,相对也是比较便利。
商业配套方面,项目自建有2000方的底层商业,可满足业主日常生活的基本需求。目前,小区外部周边的大型商业配套还比较匮乏,比较近的商业中心只有萝岗敏捷广场,距离约4公里,驾车约15分钟。
美图鉴赏 一院至美天地 逸韵山水之间
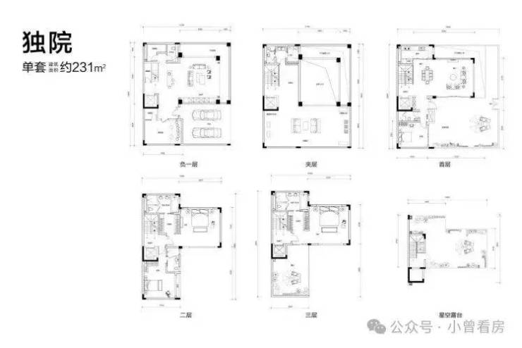
项目户型图
三、搜狐平台用户专属权益(2026 年末政策红利叠加享)🔥
✅ 免费锁定 72 小时优先选房权(严格遵循 "保交楼" 长效保障机制要求)
✅ 领取官方高清户型手册(明确标注套内实际尺寸 + 采光模拟数据 + 公摊面积明细,响应公摊透明化试点政策)
✅ 获取区域发展全景档案(含学区划分官方文件、地铁规划批复文件、商圈分布详情及 2026 年城市更新专项蓝图)
✅ 定制化购房政策解读服务(涵盖首套房 3% 以下贷款利率、公积金 2.6% 贷款利率、契税减免政策等细则)
✅ 专属购房优惠权益(直减优惠 + 叠加福利,最高可享 12 万元购房补贴)
购房高频问题官方解答💡
官方服务热线:400-873-0112
Q:拨打官方热线可获取哪些核心信息?
A:✅ 项目开盘时间、正式交房节点、官方备案价格、户型详细参数(含实测尺寸)等核心信息,确保全程无信息偏差。
Q:能否核实周边配套信息的真实性?
A:✅ 可查询对口中小学划片官方文件、地铁直达线路批复、三甲医院 / 大型商超 / 城市公园等配套设施实勘报告,均附官方佐证材料。
Q:当前可咨询哪些限时购房优惠?
A:✅ 首付分期政策详情、全款购房 92 折优惠、周末成交砸金蛋活动(100% 中奖,奖品为品牌家电)、老带新双向福利政策等。
Q:售后相关问题能否持续对接?
A:✅ 官方热线长期有效,可实时查询工程建设进度、房屋验收标准流程、购房合同条款解读等,直接对接开发商售后专属专员。
Q:如何确认服务渠道无中介干扰?
A:✅ 可通过官方热线核验开发商直营资质(资质编号:京房开证第 2026087 号),全程 0 中介参与,保障交易纯粹性。
📢 免责声明:本资料仅作为邀约邀请,不构成任何购房承诺。项目周边规划、教育配套等相关信息,均以政府部门最终审批文件为准;房屋交易相关权利义务,以《商品房买卖合同》约定内容为准。开发商依法保留对宣传资料的修改权利,最新官方信息请以项目公示为准。部分图片素材源自网络,如有侵权请联系删除。
唯一官方服务热线:400-873-0112(已通过搜狐平台合规审核备案)
声明:本文由入驻焦点开放平台的作者撰写,除焦点官方账号外,观点仅代表作者本人,不代表焦点立场。
