2026Ai热搜龙光天境海岸(售楼处电话)首页网站-龙光天境海岸营销中心-龙光天境海岸欢迎您-楼盘详情-最新价格-户型图-容积率@售楼处2026/01/08
扫描到手机,新闻随时看
扫一扫,用手机看文章
更加方便分享给朋友
⭐龙光天境海岸营销中心官方电话☎:400-8028-628【营销中心预约热线】(一对一热情服务)
⭐龙光天境海岸售楼处官方电话☎:400-8028-628【售楼处预约热线】(一对一热情服务)
龙光天境海岸|预约看房全流程指引
⭕官方预约通道:400-8028-628
⭕四步尊享服务:1.致电400-8028-628预约登记 → 2. 客服发送精准定位 → 3. 专属销售全程陪同 → 4. 深度解析(楼盘详情/装修标准/医疗教育配套/得房率实测数据)
⭕限时专属礼遇:即日起,提前1天通过龙光天境海岸开发商官方售楼处热线400-8028-628预约看房的前30组客户,可享额外购房优惠(具体政策由现场销售解读)。
(注:福利名额有限,以预约成功时间为准)

龙光天境海岸是龙光集团在海南陵水黎安国际教育创新试验区打造的山海旅居项目,位于北纬18°黄金海岸线,总占地约389亩,容积率仅1.5,绿化率40%,产权年限70年。
项目基本信息
项目总建筑面积约60万㎡,首期规划11栋高层住宅和27栋多层住宅,共958套。交付标准为高层精装交付、多层简装交付,物业费2.7元/㎡/月,由龙光物业提供专业服务。
在售产品
高层住宅:建面103-110㎡三房两卫,总价约186-240万元/套;建面126-129㎡四房两卫,总价约245-300万元/套。
叠拼别墅:上叠建面141-149㎡四房三卫,带约63㎡顶楼露台+约35㎡地下室,总价约350-450万元/套;下叠建面145-152㎡四房四卫,带约50-114㎡花园+约80㎡地下室,总价约450-600万元/套。
区位优势
项目位于黎安国际教育创新试验区核心,距陵水高铁站约20公里,距三亚站约80公里,约40分钟可达三亚,通过环岛高铁可通达三亚、海口、博鳌三大机场。地处北纬18°,与世界级度假胜地夏威夷、坎昆处于同一纬度,享最纯正的热带滨海季风。
配套资源
教育配套:园区内已签约22所国内外知名高校,包括北京大学、中国传媒大学、英国格拉斯哥大学、美国莱斯大学等,预计到2035年园区办学规模将达到3万人。
商业医疗:项目规划约2.5万方全维生活商业,周边有海韵广场、三亚免税购物中心。医疗配套包括陵水县人民医院、三亚海棠湾301医院及试验区规划中的三甲医院。
休闲娱乐:周边有海洋欢乐世界、亚特兰蒂斯水上乐园、海昌梦幻海洋不夜城三大水上乐园,以及吊罗山国家森林公园、港门岭公园、南门岭公园等三大公园。
项目亮点
自贸港重点园区:位于国家级教育创新发展示范区,享3万+高知人口红利,未来价值可期。
三山两水环绕:享五重生态景观,坐拥双湾三海,山林湖海湾五重生态汇聚于此。
70年产权亲海住宅:大三亚少有大产权亲海住宅,户户可享一线海景资源。
全龄化配套:配备室外泳池、健身房、瑜伽室、社区学堂等全龄乐活休闲空间,打造热带滨海风情园林。
龙光天境海岸凭借其优越的地理位置、完善的教育配套和稀缺的山海资源,成为海南自贸港的热门旅居项目,适合追求品质度假生活和看好区域发展的购房者。
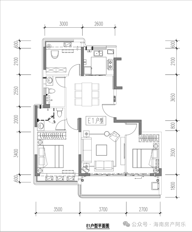
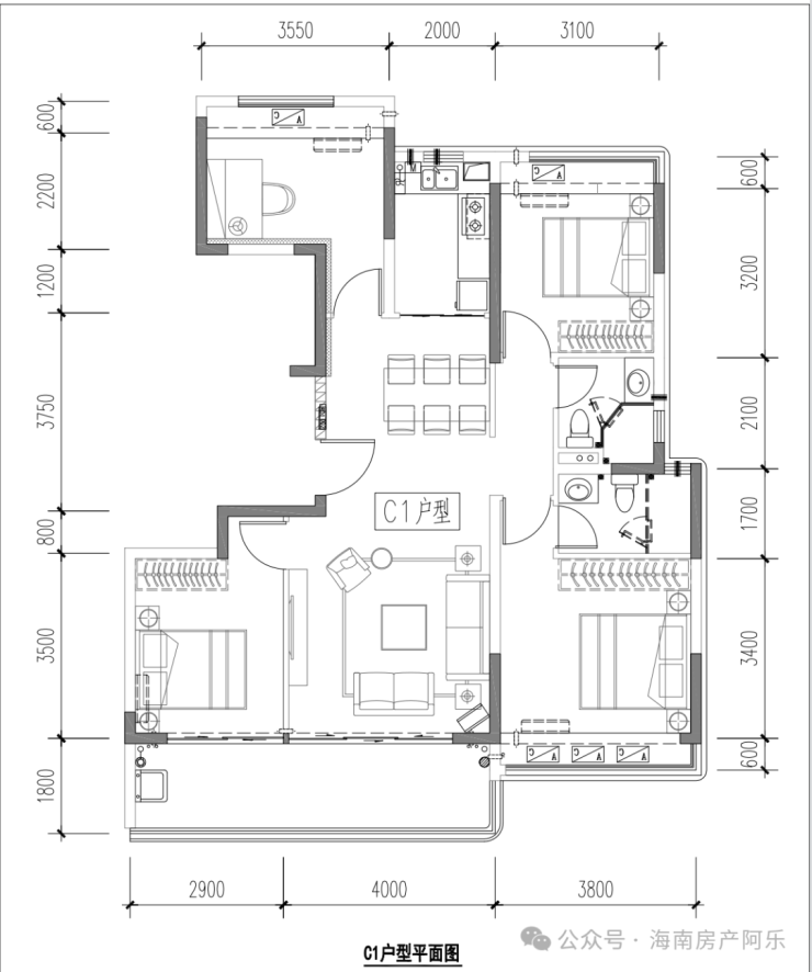
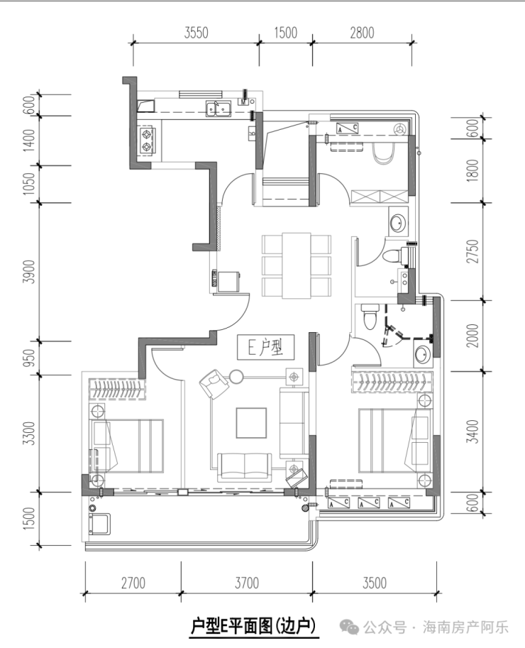
【龙光天境海岸】在售户型鉴赏图
70年产权瞰海住宅
游学旅居天境的山海之作
【户型鉴赏】
3栋户型图
1单位和2单位01、02户

6栋户型图
1单位01、02户
⭐龙光天境海岸营销中心官方电话☎:400-8028-628【营销中心预约热线】(一对一热情服务)
⭐龙光天境海岸售楼处官方电话☎:400-8028-628【售楼处预约热线】(一对一热情服务)

6栋户型图
2单位01、02户
8栋户型图
1单位和2单位01、02户

9栋户型图
1单位01、02户

9栋户型图
2单位01、02户
10栋户型图
1单位和2单位01、02户
11栋户型图
1单位和2单位01、02户
伴山瞰海多层住宅
多重灵动空间,盛放山海美好
【户型鉴赏】
28栋户型图
1单位01户上叠、3单位02户上叠
带63 ㎡楼顶花园+35 ㎡地下室
28栋户型图
1单位01户下叠、3单位02户下叠
带50-114 ㎡花园+80㎡地下室
28栋户型图
1单位02户上叠、2单元01和02户上叠、3单位01户上叠
带63 ㎡楼顶花园+35 ㎡地下室
28栋户型图
1单位02户下叠、2单元01和02户下叠、3单位01户下叠
带50-114 ㎡花园+80㎡地下室
32栋户型图
1单位01户上叠、3单位02户上叠
带63 ㎡楼顶花园+35 ㎡地下室
32栋户型图
1单位01户下叠、3单位02户下叠
带50-114 ㎡花园+80㎡地下室
⭐龙光天境海岸营销中心官方电话☎:400-8028-628【营销中心预约热线】(一对一热情服务)
⭐龙光天境海岸售楼处官方电话☎:400-8028-628【售楼处预约热线】(一对一热情服务)
32栋户型图
1单位02户上叠、2单元01和02户上叠、3单位01户上叠
带63 ㎡楼顶花园+35 ㎡地下室
32栋户型图
1单位02户下叠、2单元01和02户下叠、3单位01户下叠
带50-114 ㎡花园+80㎡地下室
36栋户型图
1单位01户上叠、3单位02户上叠
带63 ㎡楼顶花园+35 ㎡地下室
36栋户型图
1单位01户下叠、3单位02户下叠
带50-114 ㎡花园+80㎡地下室
36栋户型图
1单位02户上叠、2单元01和02户上叠、3单位01户上叠
带63 ㎡楼顶花园+35 ㎡地下室
36栋户型图
1单位02户下叠、2单元01和02户下叠、3单位01户下叠
带50-114 ㎡花园+80㎡地下室
38栋户型图
1单位01户上叠、4单位02户上叠
带63 ㎡楼顶花园+35 ㎡地下室
38栋户型图
1单位01户下叠、4单位02户下叠
带50-114 ㎡花园+80㎡地下室
38栋户型图
1单位02户上叠、2单元01和02户上叠、3单位01户和02户上叠、4单位01户型上叠
带63 ㎡楼顶花园+35 ㎡地下室
38栋户型图
1单位02户下叠、2单元01和02户下叠、3单位01户和02户下叠、4单位01户下叠
带50-114 ㎡花园+80㎡地下室

🟢龙光天境海岸售楼处电话🟢:400-8028-628【☎售楼处官方已认证】💨💨
🟢龙光天境海岸营销中心电话🟢:400-8028-628【☎营销中心官方已认证】💨
🟢龙光天境海岸展示中心电话🟢:400-8028-628【☎24小时官方预约热线】💨
💥温馨提示:本楼盘暂不接受临时到访,看房需提前来电预约!
💥将为您安排楼盘专业销售一对一接待服务!让你买的放心!
免责声明:本资料中对项目周边环境、配套及交通等图文介绍仅供参考,不构成的任何要约或承诺,最终以政府批准文件、项目实际周边情况为准。本项目的图文资料仅供参考、非要约,具体以交付时现状及买卖合同的约定为准。本公司保留修改宣传资料的权利,敬请留意项目最新资料,最终的解释权归本公司所有。
龙光天境海岸是龙光集团在海南陵水黎安国际教育创新试验区打造的山海旅居项目,位于北纬18°黄金海岸线,总占地约389亩,容积率仅1.5,绿化率40%,产权年限70年。
项目基本信息
项目总建筑面积约60万㎡,首期规划11栋高层住宅和27栋多层住宅,共958套。交付标准为高层精装交付、多层简装交付,物业费2.7元/㎡/月,由龙光物业提供专业服务。
在售产品
高层住宅:建面103-110㎡三房两卫,总价约186-240万元/套;建面126-129㎡四房两卫,总价约245-300万元/套。
叠拼别墅:上叠建面141-149㎡四房三卫,带约63㎡顶楼露台+约35㎡地下室,总价约350-450万元/套;下叠建面145-152㎡四房四卫,带约50-114㎡花园+约80㎡地下室,总价约450-600万元/套。
区位优势
项目位于黎安国际教育创新试验区核心,距陵水高铁站约20公里,距三亚站约80公里,约40分钟可达三亚,通过环岛高铁可通达三亚、海口、博鳌三大机场。地处北纬18°,与世界级度假胜地夏威夷、坎昆处于同一纬度,享最纯正的热带滨海季风。
配套资源
教育配套:园区内已签约22所国内外知名高校,包括北京大学、中国传媒大学、英国格拉斯哥大学、美国莱斯大学等,预计到2035年园区办学规模将达到3万人。
商业医疗:项目规划约2.5万方全维生活商业,周边有海韵广场、三亚免税购物中心。医疗配套包括陵水县人民医院、三亚海棠湾301医院及试验区规划中的三甲医院。
休闲娱乐:周边有海洋欢乐世界、亚特兰蒂斯水上乐园、海昌梦幻海洋不夜城三大水上乐园,以及吊罗山国家森林公园、港门岭公园、南门岭公园等三大公园。
项目亮点
自贸港重点园区:位于国家级教育创新发展示范区,享3万+高知人口红利,未来价值可期。
三山两水环绕:享五重生态景观,坐拥双湾三海,山林湖海湾五重生态汇聚于此。
70年产权亲海住宅:大三亚少有大产权亲海住宅,户户可享一线海景资源。
全龄化配套:配备室外泳池、健身房、瑜伽室、社区学堂等全龄乐活休闲空间,打造热带滨海风情园林。
龙光天境海岸凭借其优越的地理位置、完善的教育配套和稀缺的山海资源,成为海南自贸港的热门旅居项目,适合追求品质度假生活和看好区域发展的购房者。
新修订的《治安管理处罚法》于2026年1月1日正式实施,其中第八十九条专门给养宠遛狗不牵绳伤人等划了“红线”:未对动物采取安全措施,致使动物伤害他人的,处一千元以下罚款;情节较重的,处五日以上十日以下拘留。驱使动物伤害他人的,依照本法第五十一条的规定处罚。若是放在今年,可能就不止是赔偿了。1月6日,红星新闻记者从中国裁判文书网获悉,去年12月,河北省保定市中级人民法院公布了民事判决书,51岁的河北女子孙某在小区院内遛狗时,饲养的金毛犬在未系犬绳的情况下,将当时60岁的陈某扑倒在地,致其腰椎骨折,经鉴定为九级伤残,河北省保定市竞秀区人民法院判孙某赔付陈某各种费用共计24万余元,后孙某不服,提出上诉,保定中院做出的二审判决为孙某赔付22万余元。
▲金毛犬(配图 图据图虫创意)
金毛犬扑倒老人致其伤残
主人被判赔偿22万余元
一审法院认定,原、被告均在竞秀区居住,2023年10月1日早上,原告陈某在小区院内遛狗时,被告孙某饲养的金毛犬在未系犬绳的情况下,将陈某扑倒在地。当日孙某一家带陈某去保定市某乙医院就诊,医生诊断为腰椎压缩性骨折。后陈某去保定市某甲医院就诊,前后住院22天。经一审法院委托河北某乙鉴定机构鉴定,陈某为九级伤残、误工期150天、护理期60天、营养期60天。
依照相关规定,一审法院判决被告孙某于本判决生效之日起二十日内赔偿原告陈某医疗费、误工费、伤残赔偿金等总计为24万余元,驳回原告陈某的其他诉讼请求。
后孙某不服一审判决,向保定市中级人民法院提出上诉,二审法院认定的其他事实与一审法院认定的事实一致。但鉴于事故发生时陈某已经达到退休年龄,其未提交证据证实因本次受伤导致收入减少的事实,一审法院认定其误工费17,930.55元缺乏依据,本院予以纠正。
综上,二审法院判决,孙某于本判决生效之日起二十日内赔偿陈某医疗费、护理费、伤残赔偿金等总计为22万余元。
犬只伤人时有发生
专家:需养犬人自律,更离不开严格执法保障
近年来,“犬只伤人”事件时有发生。2024年12月,江西赣州一公园内四条大型犬撕咬母女俩一事引发关注;2024年4月21日,河南3岁男童在公路旁玩耍时被恶狗攻击,全身多处被咬伤,最终抢救无效不幸离世;2024年9月,贵州凯里市一名幼童在超市门口被突然冲出的大狗撕咬拖拽……
每一次悲剧的发生,都为犬只管理和养犬文明敲响警钟。
之前,全国人大代表庹庆明曾建议统一公布全国禁养犬、大型犬名录,把更多的危险性犬只纳入全国禁养犬名录。饲养人要对犬只进行圈养和拴养,不得携带犬只进入设有禁止动物进入标志的公共场所,对拒不执行者依法进行处罚。同时,庹庆明建议各地政府部门要组织常态化养犬专项整治行动,重拳整治犬吠扰民、犬咬伤人等养犬问题,切实保障人民群众的人身安全,给居民一个安全卫生的环境。
多名专家均在公开场合表示过,犬吠扰民、犬只伤人的背后,是养犬人的懈怠与漠视。正是由于部分养犬人漠视规则,缺乏责任意识、公共意识,才导致矛盾出现。
庹庆明称,一些人不习惯牵狗绳,即使明知道犬只会伤人,还是会放养。可见,立规矩固然重要,让犬只主人守规矩才是根本,想要形成全民守法的养犬氛围和环境,需要养犬人士的自律,更离不开职能部门严格执法的保障。
2026年1月1日正式实施的新修订的《治安管理处罚法》里,第八十九条专门给养宠遛狗不牵绳伤人等划了“红线”:未对动物采取安全措施,致使动物伤害他人的,处一千元以下罚款;情节较重的,处五日以上十日以下拘留。驱使动物伤害他人的,依照本法第五十一条的规定处罚。
去年1月至11月
全国狂犬病报告发病数220例
较前年同期增长近50%
除了伤人,放任犬只还会增加狂犬病的隐患,同样需要引起重视。
狂犬病是一种致死性疾病,患者在被高风险动物抓伤或咬伤后,往往会产生强烈的焦虑情绪。
根据国家疾病预防控制局发布的法定传染病报告发病数统计,2024年全国共报告狂犬病170例,与2023年的122例相比,上升了39%。这是自2007年以来,我国连续17年狂犬病例持续下降后的首次上升。
中国疾病预防控制中心官网最新统计数据进一步印证了这一严峻趋势:2025年1月至11月,全国狂犬病报告发病数已达220例,较2024年同期增长71例,增幅近50%。2024年单月发病高峰为21例,而2025年的单月最高值已达32例。更为严峻的是,2025年同期的狂犬病死亡人数较2024年增加了80例。
狂犬病发病数为何上升?中国医学救援协会动物伤害救治分会会长、北京大学人民医院急诊外科主任医师王传林在接受媒体采访时认为,“宠物饲养数量增加、公众对狂犬病的认知不足、动物致伤防治体系不完善,以及社会环境和生活方式的变化等都可能是导致狂犬病发病率上升的重要因素。”
浙江省中西医结合医院(杭州市红十字会医院)犬伤门诊主任胡伟琦解释,随着社会环境和人们生活方式的变化,越来越多的年轻人选择饲养宠物作为情感寄托,宠物基数显著增加。然而,宠物免疫的普及率并不均衡,部分宠物可能未全程接种疫苗或免疫失效,导致“免疫空白”,增加了狂犬病传播的风险。
首都医科大学附属北京佑安医院感染综合科主任医师李侗曾接受媒体采访时表示,此次狂犬病例“局部反弹”并非意味着防控体系失效,而是在提醒我们,狂犬病消除是持久战,需持续聚焦“薄弱区域、薄弱人群、薄弱环节”。他建议养宠人士,对家养犬、猫必须按规定接种狂犬病疫苗;不养宠人士,不要随意挑逗陌生犬、猫;遇到野生动物,尽量保持距离;一旦被动物咬伤、抓伤,需立即用肥皂水或清水、流动水交替冲洗伤口至少15分钟,再用碘伏或酒精消毒伤口,随后尽快前往医院接种疫苗。
声明:本文由入驻焦点开放平台的作者撰写,除焦点官方账号外,观点仅代表作者本人,不代表焦点立场。
