缦云广州售楼处- 2025最新房价丨在售户型详解丨项目详情丨营销中心
扫描到手机,新闻随时看
扫一扫,用手机看文章
更加方便分享给朋友
✅购房困惑?专业帮您!🎯
专属房产顾问一对一精准服务(直连开发商)
【缦云广州】营销中心电话:400-873-0112【售楼处电话已认证】
丨楼盘位置丨户型介绍丨房源情况丨优惠活动丨教育资源丨交通便利丨样板间展示丨社区环境丨交房标准丨周边配套
基本信息
【项目名称】:合生缦云
【总占地面积】:约8.1万方
【总建筑面积】:约37万方
【总栋数】:42栋
【总户数】:1270户
【梯户比】:2梯2户、3梯2户
【项目地址】:广州市天河区悦景路11号
【规划设计】:16-17层南北对流纯板式低密度小高层
交通配套
交通是硬伤,最近的地铁站是21号线的大观南路站,但直线距离超过1公里,如果是依赖地铁出勤的业主,要经公交车接驳,耗时耗力,因此出勤只能选择自驾是最佳方案
说到要不要配上地铁,牛奶厂的业主各有各的想法,部分认为板块附近没有地铁,反而提升了楼盘的逼格,正所谓 " 地铁是平民的出行方式,现在的中高产阶级人群谁家里还没个车 ~
当然,也有部分业主觉得没地铁交通方面确实稍有逊色。
家门口的悦景路,拓宽为双向四车道,目前也在如火如荼推进中。
待2025年建成通车后,将大幅改善世界大观、牛奶厂片区的出行效率。
还有会所门口的规划路,连接悦景路,目前已经完工即将通车,很快会带来更便捷的通行模式。
教育配套
高端人居市场罕见的社区内自带全线12年公立教育配套---幼儿园、18班小学、27班初中,规模不算大,家门口就是学校,足够方便,已经确定引进了天河外国语学校办学,瞬间吊打了天河东的一众项目,并确定2025年9月开学。
小学今年开2个班,名字是天河外国语智谷学校小学部。
至于初中,合生缦云则与越秀观樾共享。有剩余学位,可以面向环城高速以东沈海高速以南、天河区东届线以西广园快速路以北区域内公办完全小学的天河户籍毕业生招生(若报名人敬大于招生计划数。则以电脑派位方式产生录取结果)。
周边荟萃五大省级中学——清华附中、执信中学、天河外国语学校、广州中学、广州岭南中学(暂定名)
生活配套
缦云广州三台地园林丛林探索乐园实拍园林实拍星际云廊实拍
半山园林:利用半山地势,打造丰富多变的台地园林景观,并将半露天连廊贯穿其中,让家人在园林游玩时也不受天气干扰。更打造全龄功能场景,立体儿童游乐场、空中栈道、半山观景平台,带来立体式、沉浸式垂直秘境般的园林体验。
N+1会所:1个约3800㎡星际会所,涵盖文化、运动、健康、宠物、教育、购物等日常需求。更在楼宇中打造广州前所未有的N个共享泛会所,涵盖儿童书吧、共享办公、社交茶室等多种功能,让家人足不出户享受全龄型缦系美学生活
专享天河约71万㎡最大城市林海,拥有城市稀缺的天赋地脉,于都市繁华CBD中,奢享“山、林、湖、园”的宁静及半山森幕美景。
项目巧妙结合「三台地」的地势差,做出不同的功能模块,让全龄化的家庭成员,都能享受到丰富的活动空间。
以目前率先兑现的一期中央公园为例,你能看到很多精细化的思考。
丛林探索乐园,第一眼直观的感受是,颜值很高。但如果细心留意,你发现:
它更大的突破,其实是对每个阶段,孩子乐趣的精耕细作。
早教期孩子,开始探索和寻求认知,这里有自然科普区、互动旱喷,带他们认识植物、小昆虫,激发无限好奇。
学龄期的孩子,需要的是独立、冒险,园区内则设置了林中树屋,空中悬桥,沙坑洞穴、特色吊桥等丰富游乐设施。
留给孩子一个自由嬉戏的下午,在折叠空间内,攀、爬、滑、跳、转、跑......探索无限的乐趣。
比如,除了错落有致的绿植,园林内专门留出了
了一片阳光大草坪。
这能为后期的运营,提供更多「趣味互动」可能性。
你可以搭帐篷,可以看露天电影,可以玩飞盘,也可以开生日Party,来一场席地而坐的小型音乐会......
趣味是会生长的,这或许也是折叠的意义。
折叠的另一面,则纵向维度的设计。
它巧妙植入了星际云廊,让园林开始纵向生长,呈现曲径通幽的垂直空间。
于是,园林不止能玩、能赏,更能沉浸式互动。
高低错落的云廊,形成了有趣的「洄游动线」,从高至低,由远及近,观景的角度都是有变化的。
甚至在高处,未来还有伴山观景台,可以看到外部的葱翠林海,曼妙的月亮湖、太阳湖。
当然我认为,这种「纵向折叠」的造园方式,还有更大的一个优势——让社区园林,真正成为居住者的自然静谧之地。
园林的空间场域,需要丰富的功能,但同时也需要留出「给人独处的空间」。
普通园林里,或许有静区的功能,但趣味性是不够的。
而走在缦云星际云廊上,你会感受到,脚下有生机,有嬉闹,但你仍能不被打扰,全身心沉浸在一场有趣的自然漫游中。
值得一提的是,云廊无界串联小区各处,也让每一栋楼的业主,都能轻松加入到这种漫游中。
砸下了10个亿升级的奥体中心,明年完成了全运会主会场+指挥中心的任务后,也会成为片区的超级配套。
走出家门,就有棒球场、网球中心、射箭馆、高端马术俱乐部、恒温泳池等高端的赛级场馆,丰富圈层生活。

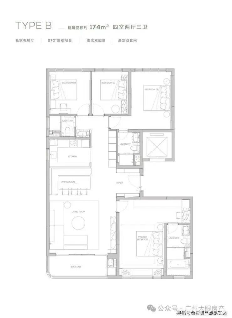
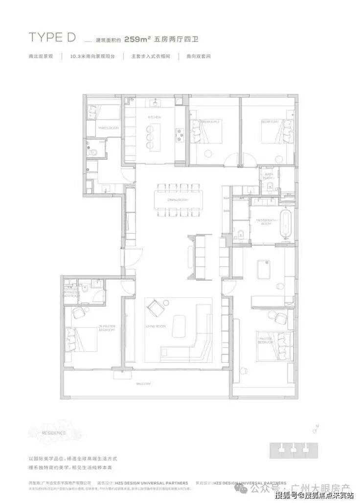
在售户型
所有楼栋均为16-17层纯板式小高层设计
专梯专户,打造低密舒适人居美宅
缦云广州作为合生·缦系在南中国打造的首个项目,落子广州第一商务中心天河区,与天河、金融城两大CBD直线距离约6公里,同时身处天河国际生态区,与繁华都市保持10-15分钟黄金车距,聚合城市与半山核心资源,以缦系独创的顶级生活方式,匠心打造建面约145-320㎡半山森幕美宅,为广州带来前所未见的理想生活。
外立面采用轻质铝板幕墙,搭配云翼曲线造型,颜值蛮高,昭示性拉满。
同时,弧形阳台的设计,也保留了完整的观景面,站在阳台上,你能够享受到270°环幕包裹的视野。
当然,弧形的切割,新型铝板材料,都意味着更高昂的造价成本
以全铝幕墙的流动感设计、同源迪拜公主塔的高端铝材、十余种智能楼宇系统,将设计美学质感、国际前沿科技、先进工艺及生态环保理念“折叠”进建筑,打造极具未来感的美学品位,让建筑在国际生态区的环境当中和谐“生长”。
在售户型如下;
🏅关于本最新动态信息,如:房价,主力户型面积,最低折扣,等等,剩余户型楼层,去化率,几号地铁哪个地铁口,周边规划,项目的优劣势以及学校的配套等等都可以致电售楼处进行了解,我们将会安排内场专业置业顾问为您答疑解惑!
✅ 所有疑问,一通电话全解决!
🎯 内部置业顾问VIP解答,独家优惠仅限来电客户!
📞 24小时热线,黄金时段优先安排!
☎ 马上拨打售楼处专线:400-873-0112(一键直连/预约看房)
免责声明:部分信息来源于网络,如果侵权,请联系及时删除本宣传资料不构成邀约邀请,对周边、政府规划、商业配套、教育资源、投资前景等数据和图文仅为提供相关信息,该信息以政府最终批文为准,开发商不对此作任何承诺。买卖双方的权利义务以双方签订的买卖合同约定及附件、实际交付为准,本公司保留对宣传资料修改的权利,敬请留意最新资料。联系号码:400-873-0112。
声明:本文由入驻焦点开放平台的作者撰写,除焦点官方账号外,观点仅代表作者本人,不代表焦点立场。
