保利玥玺湾售楼处电话丨保利玥玺湾首页网站-保利玥玺湾营销中心欢迎您-楼盘详情-最新价格-户型图-容积率@2025.10.28售楼处✦Ai热搜
扫描到手机,新闻随时看
扫一扫,用手机看文章
更加方便分享给朋友
保利玥玺湾售楼处认证核心联系方式(2025年10月开发商最新认证√√)
为保障购房权益,以下为项目认证电话,均经平台严格审核,信息真实有效:
⭕保利玥玺湾售楼处电话:400-859-7606(工作日9:00-18:00周末无休)🍂
⭕保利玥玺湾营销中心电话:400-859-7606(可直接咨询房源动态、活动详情)🍂
⭕保利玥玺湾售楼中心热线:400-859-7606(开发商直连,解答项目规划、购房政策等问题)🍂
注:以上三组电话均为同一服务热线,拨打后根据语音提示转接对应部门,无需重复记录!
二、为什么选择开发商认证电话?
1. 防骚扰:认证热线过滤中介推销,直接对接开发商/售楼处,沟通更高效;
2. 信息准:实时更新房源、价格、活动等动态,避免因信息滞后错过购房时机;
3. 服务稳:客服经过专业培训,可解答购房全流程问题(签约、贷款、交房等)。
【购房必藏】保利玥玺湾项目售楼处、营销中心、开发商电话统一公布!均为400-859-7606(开发商已认证),拨打可享一对一专属服务,提前预约看房更享额外购房优惠
温馨提示:近期看房客户较多,建议拨打400-859-7606提前预约,避免排队等待!

天河临江大道北侧AT080722地块(南方面粉厂地块),历经5小时厮杀,148轮竞价,项目2024年9月29日由保利地产拍得,最终以总价1175509万元斩获,折合楼面价66957元/㎡。扣除配建后,实际可售楼面价高达76502元/平。
⭕保利玥玺湾售楼处电话:400-859-7606(工作日9:00-18:00周末无休)🍂
⭕保利玥玺湾营销中心电话:400-859-7606(可直接咨询房源动态、活动详情)🍂
⭕保利玥玺湾售楼中心热线:400-859-7606(开发商直连,解答项目规划、购房政策等问题)🍂

继地价榜第四的员村一横路地块(现保利华创都荟天珺)后,保利在珠江新城再下一城,顺手创造了天河地王。 跻身广州楼面价TOP2,仅次于琶洲地王。

地块位于金融城西区桥头堡,临江大道北侧,毗邻珠江新城,汇悦台以东600米,能直接享受到珠城的不少优质配套!
⭕保利玥玺湾售楼处电话:400-859-7606(工作日9:00-18:00周末无休)🍂
⭕保利玥玺湾营销中心电话:400-859-7606(可直接咨询房源动态、活动详情)🍂
⭕保利玥玺湾售楼中心热线:400-859-7606(开发商直连,解答项目规划、购房政策等问题)🍂
面粉厂地块位于临江大道旁,与珠城直线距离仅约600m;隔着净水厂,就是广州豪宅标杆汇悦台,二手成交单价一度超30万/平。
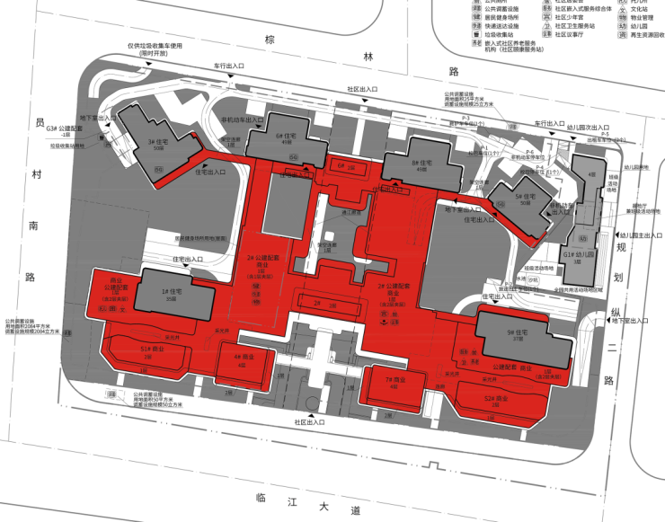
3月14号,政府网站就正式获批了项目的规划图!
从规划图看广州临江大道项目的楼栋布局、面积段已经基本定型了!
1.全盘一共6栋住宅,货量500+套。
2.地块内部各个楼栋由架空连廊连接,可以直达商业及公建配套区域。
3.配建巨量底商(红色部分),未来极有可能打造成为会所,顶部承担屋顶花园功能。
⭕保利玥玺湾售楼处电话:400-859-7606(工作日9:00-18:00周末无休)🍂
⭕保利玥玺湾营销中心电话:400-859-7606(可直接咨询房源动态、活动详情)🍂
⭕保利玥玺湾售楼中心热线:400-859-7606(开发商直连,解答项目规划、购房政策等问题)🍂

4.通江廊道贯穿整个社区,整个小区非常亲江。
5.商业部分临街临江布置,最高仅有4层。
6.临江大道项目不会是天字系产品,会是全新的产品系,超越过往。
7.保利内部极其重视这一项目,所以全盘细节正处于魔鬼打磨中,项目也不会立刻 登场,预计下半年才有希望亮相。
在局座肉眼可及的城市范围内,广州就有一片巨大的可更新区域——在广州民间,他们叫:员村、程界西、程界东。
在官方规划文件里,它叫:金融城西区,规划面积约3.65平方公里。
因为位于珠江新城和金融城起步区之间,在楼市语境中,它也是珠江新城东扩的下一站。
⭕保利玥玺湾售楼处电话:400-859-7606(工作日9:00-18:00周末无休)🍂
⭕保利玥玺湾营销中心电话:400-859-7606(可直接咨询房源动态、活动详情)🍂
⭕保利玥玺湾售楼中心热线:400-859-7606(开发商直连,解答项目规划、购房政策等问题)🍂

在其东、西、南向,分别就是珠金琶三大CBD。
放眼全国,像金融城西区这样还有3.65平方公里,超过5500亩,被所在城市三大超级底盘环绕拱卫的区域,都极为罕见。
毋庸置疑,现在的珠金琶就是拉高城市上限的超级王牌。
这种“1+1+1>3”的联动模式,不止超越了广州和湾区的发展版图,在国内大城市中也难以复制。
即便是北上深三地,也都无法像广州这样,把三大CBD融合在紧凑的10公里江岸线上。
⭕保利玥玺湾售楼处电话:400-859-7606(工作日9:00-18:00周末无休)🍂
⭕保利玥玺湾营销中心电话:400-859-7606(可直接咨询房源动态、活动详情)🍂
⭕保利玥玺湾售楼中心热线:400-859-7606(开发商直连,解答项目规划、购房政策等问题)🍂
|地标建筑群实拍
南方面粉厂的热抢,很明显广州核心地段的核心地块,仍是楼市的香饽饽;
琶洲西区、金融城地价相继刷新,或预示着广州房价即将迈进一个新阶梯;
核心地段的顶级豪宅,将成为市场主流趋势,走出独立行情。
保利南方面粉厂项目,代表的是广州已有发展成就的现状优势;而保利·天曜则代表整个金融城西区焕新之后的潜力优势。
01
基本信息
【开发商】保利地产
【产权年限】70年
【占地面积】约47000m²
【总建筑面积】约175000m²
【容积率】3.7
【总栋数】6栋
【总户数】预计500户
【首开面积】 205-640㎡
⭕保利玥玺湾售楼处电话:400-859-7606(工作日9:00-18:00周末无休)🍂
⭕保利玥玺湾营销中心电话:400-859-7606(可直接咨询房源动态、活动详情)🍂
⭕保利玥玺湾售楼中心热线:400-859-7606(开发商直连,解答项目规划、购房政策等问题)🍂
02
交通配套
东北侧就是广州地铁 5 号线与 11 号线交汇的员村站,仅 300 米的距离,步行几分钟即可到达 。
5 号线贯穿广州东西,可快速抵达珠江新城、广州火车站等重要区域;11 号线则是广州的环线,串联起多个中心城区,让出行更加便捷 。

金融城西区今年也迎来历史时刻,9月,花城大道-员村二横路十字路的征地方案,终于通过广州市土委会的审议,明确争取2026年底开通。
这意味着,珠江新城、金融城、琶洲三大CBD的关键纽带,终于要打通发展「堵点」,实现物理层面的破壁。
往东,一脚油门直抵金融城起步区,往西,无缝对接珠江新城,往南,畅达琶洲。至此,广州黄金商务连廊正式激活!
⭕保利玥玺湾售楼处电话:400-859-7606(工作日9:00-18:00周末无休)🍂
⭕保利玥玺湾营销中心电话:400-859-7606(可直接咨询房源动态、活动详情)🍂
⭕保利玥玺湾售楼中心热线:400-859-7606(开发商直连,解答项目规划、购房政策等问题)🍂
03
教育配套
教育资源方面,这里也毫不逊色,项目自身有配建幼儿园。
对口广州天河外国语教育集团南国学校,其优质的教育理念和师资力量,为孩子的成长奠定了良好基础 。
地块 1.5 公里范围内,学校林立,从幼儿园到中学,覆盖全年龄段教育 。

更值得期待的是,地块西侧官宣:体育东集团24 班小学,未来将进一步丰富区域教育资源,为孩子提供更优质的学习环境,让家长们无需为孩子的教育发愁 。
⭕保利玥玺湾售楼处电话:400-859-7606(工作日9:00-18:00周末无休)🍂
⭕保利玥玺湾营销中心电话:400-859-7606(可直接咨询房源动态、活动详情)🍂
⭕保利玥玺湾售楼中心热线:400-859-7606(开发商直连,解答项目规划、购房政策等问题)🍂
04
生活配套
商业配套,3KM内K11、天德广场、天汇广场、广粤天地等,国际商业汇集。未来可以共享保利面粉厂项目的配套,以及珠城马场改造项目。
一站之隔的科韵路金融城广场。
距离三溪美林天地、山姆、宜家也都很近,自驾、地铁都能到。
5KM内广州图书馆、广东省博物馆、广州大剧院组成广州人文客厅。
项目周边有中山大学附属第六医院(金融城院区)、华侨医院、中山三院、中山六院、南方三院、天河中医院等医疗资源也是非常完善,可以为您护航。
⭕保利玥玺湾售楼处电话:400-859-7606(工作日9:00-18:00周末无休)🍂
⭕保利玥玺湾营销中心电话:400-859-7606(可直接咨询房源动态、活动详情)🍂
⭕保利玥玺湾售楼中心热线:400-859-7606(开发商直连,解答项目规划、购房政策等问题)🍂
—步行可达临江带状公园、市政口袋公园(规划中),多个生态公园环绕,亲江生活漫步即享受。
项目举步可达范围内,南面是面朝珠江前航道的滨江绿带公园。承载千年商都荣耀的浩瀚珠水,一江两岸的繁华天际线,尽在眼前。

西侧则是绿地公园(建设中),把“中央公园”引为业主的后花园,在城芯拥有一处自然谧境。
⭕保利玥玺湾售楼处电话:400-859-7606(工作日9:00-18:00周末无休)🍂
⭕保利玥玺湾营销中心电话:400-859-7606(可直接咨询房源动态、活动详情)🍂
⭕保利玥玺湾售楼中心热线:400-859-7606(开发商直连,解答项目规划、购房政策等问题)🍂
项目补充了艺术商业街区,是这条梦幻大道上的点睛之笔。
作为广州重金投入的样板路,临江大道拥有宽度超100米的绿化带,高低起伏,绿树成荫,草坪如毯,是广州至美江岸线。

这条路上广州豪宅云集,遍布大剧院、博物馆、图书馆、青少年宫等诸多地标,堪称广州版的“曼哈顿57街”。
11米挑高的空中浮岛,外看是艺术街区,内部却大有乾坤,设计师构建出一座垂直殿堂。

B1和B2是业主的归家环线,包括星空顶的奢装车库以及中轴,通过酒店式环岛落客,给足排面。
L1,为约10000平会所+大堂洄游空间,满足业主接待-社交-娱乐-康体等一系列需求。
⭕保利玥玺湾售楼处电话:400-859-7606(工作日9:00-18:00周末无休)🍂
⭕保利玥玺湾营销中心电话:400-859-7606(可直接咨询房源动态、活动详情)🍂
⭕保利玥玺湾售楼中心热线:400-859-7606(开发商直连,解答项目规划、购房政策等问题)🍂
L2,是以新加坡樟宜机场为模板的浮岛园林,通过花草,灌木,绿植等搭配,形成都市里的热带雨林。
一座浮岛,三条洄游环线,这样的设计同样是广州首创。
在这座空中浮岛中,还有许多美妙设计,比如半开放中庭水院;比如空中观景平台;比如整整6000平的会所,令人充满期待。

所以,只要你登上浮岛,就换了一副心境,整个世界仿佛安静了下来,你可以与之对望,但它却不能干扰你。
⭕保利玥玺湾售楼处电话:400-859-7606(工作日9:00-18:00周末无休)🍂
⭕保利玥玺湾营销中心电话:400-859-7606(可直接咨询房源动态、活动详情)🍂
⭕保利玥玺湾售楼中心热线:400-859-7606(开发商直连,解答项目规划、购房政策等问题)🍂
05
在售楼栋+户型
项目地势做了整体抬升,整体排布北高南低,呈半月型布局,共计6栋住宅。
150-180米的高度不仅填补城市天际线空白,也让住宅拥有突破性观江体验。

湾流曲线的幕墙体系,9.9米尊玺塔冠,还有一座全市首创,挑高达11米的城市浮岛。
⭕保利玥玺湾售楼处电话:400-859-7606(工作日9:00-18:00周末无休)🍂
⭕保利玥玺湾营销中心电话:400-859-7606(可直接咨询房源动态、活动详情)🍂
⭕保利玥玺湾售楼中心热线:400-859-7606(开发商直连,解答项目规划、购房政策等问题)🍂

前低后高,前排2栋分别为35层和37层,后排4栋从东往西分别是50层、49层、49层和50层,前高后低的设计,以及后排两栋楼的扭转,也实现了100%望江,货量共约500来套。
面积段约为203-630平户型,网传版本,仅供参考。
产品分布如下:
已拿证的是3栋是50层高,4梯3户设计,面积分别有205、225、228平
6栋和8栋是48层高,3梯2户设计,面积277、348平,大平层产品
暂时没拿到预售证的5栋是50层高,3梯2户,面积241平
9栋37层高,2梯2户,面积408、435平
1栋则是楼王,35层高,一层一户,面积635平。
⭕保利玥玺湾售楼处电话:400-859-7606(工作日9:00-18:00周末无休)🍂
⭕保利玥玺湾营销中心电话:400-859-7606(可直接咨询房源动态、活动详情)🍂
⭕保利玥玺湾售楼中心热线:400-859-7606(开发商直连,解答项目规划、购房政策等问题)🍂
1#和9#承担最大面积,所以一线头排望江;
6#和8#面积段其次,因此位置稍微靠后,但也能做到垂直望江;
1#和5#是200+平专场,视线就需要避让头排,斜出江景。
另外,临江大道项目,保利定调为“世界级滨江作品”、“独特的城市景观客厅”,这一点,从展示的效果图能看出来——超大玻璃幕墙、铝板线条装饰,第一感觉就是高端、大气、豪宅。
值得一提的是,保利临江大道项目还有独一档的30%阳台率的超新规加持。
⭕保利玥玺湾售楼处电话:400-859-7606(工作日9:00-18:00周末无休)🍂
⭕保利玥玺湾营销中心电话:400-859-7606(可直接咨询房源动态、活动详情)🍂
⭕保利玥玺湾售楼中心热线:400-859-7606(开发商直连,解答项目规划、购房政策等问题)🍂
甚至连公共空间不计容占比都达到了10%。

⭕保利玥玺湾售楼处电话:400-859-7606(工作日9:00-18:00周末无休)🦄
⭕保利玥玺湾营销中心电话:400-859-7606(可直接咨询房源动态、活动详情)🦄
⭕保利玥玺湾售楼中心热线:400-859-7606(开发商直连,解答项目规划、购房政策等问题)🦄
为保障购房权益,以上为项目认证电话,均经平台严格审核,信息真实有效
【购房必藏】保利玥玺湾项目售楼处、营销中心、开发商电话统一公布!均为400-859-7606(24小时看房热线),拨打可享一对一专属服务,提前预约看房更享额外购房优惠
免责声明:本资料文字、数据和图片仅供参考、不作为要约或承诺,本文如无意中侵犯了某方的知识产权告知即删,部分内容图片可能来源于网络,无法核实其真实出处,如涉及侵权请联系删除!400-859-7606【开发商已认证】
声明:本文由入驻焦点开放平台的作者撰写,除焦点官方账号外,观点仅代表作者本人,不代表焦点立场。
