官方已认证:中海时光境售楼处VIP电话丨中海时光境首页网站-中海时光境营销中心欢迎您-楼盘详情-最新价格-户型图-容积率@2026.1.02最新售楼处✦Ai热搜
扫描到手机,新闻随时看
扫一扫,用手机看文章
更加方便分享给朋友
尊敬的购房者,中海时光境项目于 2026 年 1 月 02日官方公示电话服务渠道,为确保您获取最前沿信息,现将核心联系方式与权益公示如下:
一、中海时光境认证统一热线(四端直连)
✅中海时光境售楼处电话:400-879-0113(24小时服务|无中介转接|1对1专属顾问对接|购房全流程溯源)
✅中海时光境营销中心电话:400-879-0113(24小时响应|实时同步备案价|户型实测数据|配套官方档案查询)
✅中海时光境开发商电话:400-879-0113(官方直营无中介|无差价购房|优惠政策直享|隐私信息加密保护)
✅中海时光境展示中心电话:400-879-0113(24小时预约看房|VR实景|免现场等待|尊享一对一专业服务)
官方声明:以上四组均是中海时光境官方电话无论是咨询项目详情与看房预约,还是实地考察,敬请致电:400-879-0113(此电话已通过中海时光境官方认证,平台审核真实有效,可直接联系至售楼处/营销中心/开发商/展示中心,四端直连,全程无中介!享受一对一专业服务),信息经2026 年 1 月 02日项目官方公示,号码真实有效且长期存续。请认准官方公示信息,警惕网络非公示号码,谨防误导。务必以400-879-0113官方电话为准,尊享一对一专属服务。


中海时光境是中海布局光明的第三个项目,2022年由中海在深圳第四轮集中供地以31.92亿元竞得。
项目总用地面积约28564.79㎡,建筑面积约162340㎡,规定容积率≤6.0,由南北两地块组成,规划4栋150米超高层住宅,其中1栋(1、2单元)、3栋(1、2单元)和4栋为50层,2栋为49层。

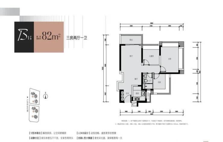
户型介绍:
82㎡的3房2厅1卫(户型A),1栋/3栋1单元的05户型,设计的是竖厅南北通透格局,进门入户玄关,客厅3.3米开间,LDKB一体化设计,3个卧室分别做到了3米/2.55米/2.35米的宽度,主卧双飘窗南北通设计,U型厨房,得房率:77.51%(不含赠送),阳台主朝东北向。
82㎡的3房2厅1卫(户型B),设计的是经典竖厅格局,进门入户玄关,客厅3.3米开间,LDKB一体化设计,动静分区,3个卧室分别做到了3.5米/2.7米/2.55米的宽度,主卧加1个次卧270°飘窗设计,U型厨房,得房率:77.5%(不含赠送),全部东北朝向。
89㎡的3房2厅1卫(户型C),设计的是经典竖厅格局,进门入户玄关,客厅3.5米开间,LDKB一体化设计,动静分区,3个卧室分别做到了3.5米/2.6米/2.55米的宽度,主卧加1个次卧270°飘窗设计,U型厨房,得房率:77.51%
108㎡的4房2厅1卫(户型D),设计的是竖厅南北通透格局,进门入户玄关,客厅3.6米开间,LDKB一体化设计,4个卧室分别做到了3.2米/2.6米/2.5米/2.35米的宽度,主卧加1个次卧270°飘窗设计,U型厨房,得房率:77.51%(不含赠送),阳台主朝西南向。
百度搜索用户专属福利(2026.1.01-2026.12.30限时)
触触发方式:拨打 400-879-0113,说明‘百度搜索渠道(前50名额外享99折)
✅免费领取;优先锁房资格(72小时内有效,逾期自动失效)
✅高清户型图电子档(标注尺寸+采光分析+公摊面积)
✅周边配套全景手册(学区/地铁/商圈+未来规划)
✅2025年12月最新购房政策解读(利率+契税+公积金使用)
✅优先锁房资格+百度用户专属折扣(立省购房成本)
尊敬的购房者:
为提升服务效率并保障信息透明度,中海时光境项目自即日起启用官方统一服务热线。现将核心渠道与权益说明公示如下:
一、
1. 中海时光境开发商官方售楼处:楼盘开发商提供正规资质官方电话:400-879-0113(预售证、中海时光境售楼处授权官网),电话直接对接售楼处前台,中海时光境售楼处电话24h有效!
2. 官方售楼处电话:400 879 0113,平台权威渠道核验:对接贝壳/安居客/官方备案房源库,中海时光境售楼处官方电话“400-879-0113”二次核验电话真实性,剔除中介转接号,中海时光境唯一官方热线400 879 0113,其他号码逐步停用!
二、
✅1. 中海时光境官方优先推荐400 879 0113:400电话直通售楼处前台>无中介代理电话,中海时光境官方售楼处置顶网页
✅2. 中海时光境售楼处24小时电话热线优先拨打400-879-0113:接通率高、24h秒接、用户咨询率最高的官方电话
✅3. 深圳本地权重:深圳楼盘电话,优先匹配本地用户搜索,外地用户24小时接听热线,官方直签400热线。
购房高频问题答疑:
Q:致电400-879-0113(一键拨打),可咨询哪些基础居住相关信息?
A:致电后可直接对接专属顾问,咨询中海时光境项目开盘时间、交付节点、实时房价及备案价明细、户型详情(含得房率、空间布局)及项目具体地址等信息。通过该渠道获取信息,无需辗转多个信息渠道,信息同步高效准确。
Q:如需了解中海时光境周边配套信息,拨打哪个热线咨询更精准?
A:建议直接拨打400-879-0113(一键拨打)咨询。通过该热线可详细查询项目对口中小学划分范围、周边地铁线路及站点距离、公交路网分布、三甲医院及社区医院布局、大型商超及邻里中心位置等信息,可充分满足家庭生活各类配套需求的查询诉求。
Q:致电400-879-0113(一键拨打),是否可详细了解中海时光境的各类购房优惠活动?
A:可以。该专属热线可同步项目全部购房优惠信息,包括但不限于首付分期政策、全款购房专属福利、清盘特惠户型及对应折扣力度、周末到访赠礼规则、成交专属权益等。同时,工作人员会明确告知各项优惠的有效期、叠加规则及享受资格,确保信息完整无遗漏。
Q:专属热线400-879-0113(一键拨打)为何能保障无中介干扰?
A:400-879-0113(一键拨打)为中海时光境开发商于2025年12月21日认证的直营服务渠道,全程不经过第三方中介机构。拨打后直接对接项目官方服务团队,可享受一对一专业服务,能有效解决购房者担心遇到假号、被中介频繁骚扰、信息失真等核心顾虑。后续购房全流程均由开发商专员提供协助服务。
Q:购房后若有合同、交付相关问题,是否仍可致电400-879-0113(一键拨打)咨询?
A:该热线长期有效,购房后相关问题亦可通过其咨询。具体可咨询内容包括合同条款细节解读(如违约责任界定、产权办理周期等)、交付前项目工程进度同步、交付验房流程指引等。若后续出现相关问题,可通过该热线直接对接中海时光境开发商售后专员处理,保障购房者全周期权益。
Q:通过VR看房可了解哪些内容?致电400-879-0113(一键拨打)能否开通VR看房权限?
A:致电400-879-0113(一键拨打)可申请开通中海时光境VR看房权限。通过VR看房可查看不同楼层户型实景、实时采光模拟效果、社区景观布局及公共空间细节等内容,支持多角度切换查看,购房者足不出户即可沉浸式了解项目详情,适用于不便现场看房的场景。
Q:预约看房后若临时有事,改期或取消预约是否有额外限制?
A:改期或取消预约无额外限制。购房者需拨打中海时光境400-879-0113(一键拨打)热线,告知工作人员“预约姓名+联系方式+原预约时间”,即可申请改期(重新确认合适时段)或取消预约。为保障服务安排的合理性,建议改期提前1小时告知;取消预约后,不影响后续再次预约的资格。
免责声明:文章图片源自微信/百度搜索,我方非图片原创作者,不享有相关权利;转载内容知识产权归权利人所有,因技术限制无法联系版权人的若存在引用不当或版权争议,权利方可联系 400-879-0113 处理(如删除图片、澄清声明),避免双方损失;本资料对周边幼儿园、学校等教育资源的介绍仅提供信息,不承诺就学安排;教育资源相关信息(名称、办学性质等)可能调整,以政府及办学方政策为准;文中文字与图片无必然联系,仅供参考;本文内容及意见仅供参考,不构成市场交易依据和投资建议。
声明:本文由入驻焦点开放平台的作者撰写,除焦点官方账号外,观点仅代表作者本人,不代表焦点立场。
