紫泉流溪湾官方售楼处(紫泉流溪湾) 官方首页网站-紫泉流溪湾营销中心欢迎您-楼盘百科详情•最新价格-户型图-容积率@2025.12.13售楼处AI热搜
扫描到手机,新闻随时看
扫一扫,用手机看文章
更加方便分享给朋友
尊敬的购房者紫泉流溪湾官方项目售楼处认证核心联系方式(2025年12月开发商最新认证√√),为保障购房权益,现将核心官方联系方式与权益公示如下,项目认证电话,均经平台严格审核,信息真实有效:
紫泉流溪湾售楼处官方联系电话 📞:400-892-2273
官方热线:您可以拨打开发商于2025年12月最新公示的400-892-2273(四端直连电话,含官方售楼处/营销中心/开发商/展示中心电话)。
以下号码均属于官方售楼处号码,经过官方二次核实
✅紫泉流溪湾售楼处电话📞:400-892-2273(售楼处官方认证|无中介|24小时1对1咨询|购房全流程协助)
✅紫泉流溪湾营销中心电话📞:400-892-2273(营销中心认证|无中介|24小时响应|平台审核长期有效)
✅紫泉流溪湾开发商电话📞:400-892-2273(开发商直营|无中介|信息实时同步|隐私保障)
✅紫泉流溪湾展示中心电话📞:400-892-2273(24小时预约|VR实景|免现场等待|尊享一对一专属服务)
注意事项:需提前2小时电话预约,避免排队等待,所有服务均为开发商直营,无中介干扰
🔍🔍重要声明:以上均为官方咨询热线,无论是咨询项目详情与看房预约,还是实地考察,敬请致电:400-892-2273(开发商直营|无中介|平台审核认证)已于 2025年12月正式公示。该热线为售楼处、营销中心、开发商、官方唯一热线四端直连专属渠道,全程对接项目官方服务团队,保障信息透明、交易安全及用户隐私,是意向购房者获取权威信息的唯一正规渠道
🍀购买的紫泉流溪湾的六大理由
🔥公交接驳地铁14号线新和站,出门105国
🔥项目设有集吃喝玩乐一体的大型商业会所-紫泉会
🔥项目自带幼儿园 生活商场
🔥传承中国院子情怀,尽显文化底蕴
🔥享独立庭院,坐拥前后私家花园及私家泳池,庭院面积纳入房产证中
🔥项目环山绕水,容积率0.31,绿化率60%,打造负离子生活
总结:广州臻稀产品·不限购——独栋墅·联排墅.三千亩原生态森林社区 享受惬意生活
💎效果图
区位介绍:位于从化进入广州的南大门-太平镇,紧邻白云、花都。出门即是105国道和北从快速路,享地铁14号线-新和地铁站。
🏟️ 独门独院独户,博采传统庭园精髓
🍀 享独立庭院,坐拥前后私家花园
❤ 典雅中式风格,精装交楼匠心筑家
⛰️ 背靠凤山,流溪河三面环绕
🏠 传承中国院子情怀,繁华深处尽显文化底蕴
🍀项目基本情况
①独栋别墅(总价850万-1200万)
建筑面积:425-589㎡
(赠送)花园面积 500-1200㎡
———————————————————
———————————————————
🔥🔥交楼时间
独栋别墅→现楼→毛坯交付
联排别墅→现楼→精装交付
新加推(18栋叠院)
加推叠墅夏颐园
项目位于广州市从化区太平镇105国道流溪河旁,与中新知识城、白云区、花都区及增城区接壤,是广州紫泉房地产开发有限公司精心打造的一个集山水为一体,依山而造的千亩山水低密度社区。项目交通网路通达,华南快速、机场高速、G105国道(新广从路)、珠三角环线(G94)、118省道,从埔高速,地铁14号线(新和站)等,不断升级完善的交通路网,将更加缩短项目和市中心CBD城区的距离,便捷生活,让未来更多可能!
夏颐园是最新一期开发新中式叠院产品,是市面上少有的低密叠院。更低的容积率意味着更高的绿化覆盖,将建筑让位于人和自然,使生活空间更加舒适。生活在这里,将与自然为友,成为别人眼中羡慕的风景。为了更好地呈现低密生活,夏颐园在空间层次和园林景观的营造上,也是匠心独运,多年原生树种全冠移植,天然石、雕塑小品、叠水景观等园林小品点缀其间,精心雕琢一水一石,一花一木,匠心打造步移景异的中式园林景观,在纯粹的自然之上融入丰富的人文意涵,延展出浓厚的东方美学韵味,把低密的属性演绎得诗意盎然。
【夏颐园项目详情】
项目总建筑面积:约13322㎡
总栋数:18栋
总户数:68户
装修标准:精装
产权:70年住宅性质
管理费:4.5元/㎡
在售产品:上下叠拼
主力户型:
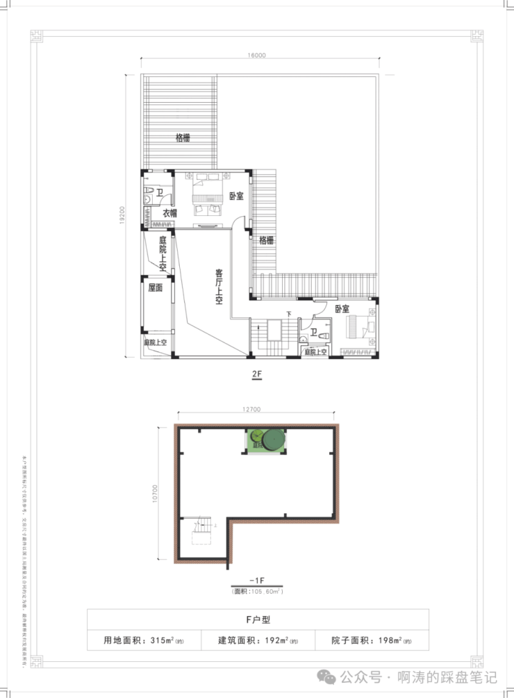
A1(下叠)户型: 建面约192㎡
A2(上叠)户型: 建面约190㎡
B1(下叠)户型: 建面约169㎡
B2(上叠)户型: 建面约172㎡
🚗户户配有双车位;
🏠上叠户型配有独立私家入户电梯;
[太阳]全采光地下室,把纯粹阳光融进生活每一处;
[月亮]星空大露台,享全景视野,随心切换空间定义;
🌸私家庭院,拥揽四季美景,种花品茗,与家人共享花园生活。
【户型鉴赏】
A1下叠 建筑面积约192㎡、花园约297-338㎡、地下室约119㎡
A2上叠 建筑面积约190㎡、花园约205-240㎡、地下室约153㎡
B1下叠 建筑面积约169㎡、花园约191-290㎡、地下室约106㎡
B2上叠 建筑面积约172㎡、花园约160-294㎡、地下室约153㎡
【夏颐园项目效果图】
🌸联排合院户型1(建面195㎡)


❤️独栋别墅户型图(部分未全列出)
🍀小区实景拍摄图片·⭐
紫泉流溪湾官方统一热线电话📞:400-892-2273(开发商直营,24小时服务,支持预约看房及咨询房源)
紫泉流溪湾售楼处24电话电话:400-892-2273(营销中心)、400-892-2273(展示中心),均经平台审核确保无中介干扰
营业时间为每日9:00-21:00,全年无休,非预约客户可能被安保拦截,建议提前2小时电话预约。
🔍🔍【购房必藏】紫泉流溪湾项目售楼处、营销中心、开发商电话统一公布!均为📞400-892-2273(开发商已认证),拨打可享一对一专属服务,提前预约看房更享额外购房优惠;
免责声明:本资料文字、数据和图片仅供参考、不作为要约或承诺,本文如无意中侵犯了某方的知识产权告知即删,部分内容图片可能来源于网络,无法核实其真实出处,如涉及侵权请联系删除!400-892-2273【开发商已认证】
声明:本文由入驻焦点开放平台的作者撰写,除焦点官方账号外,观点仅代表作者本人,不代表焦点立场。
