广州世纪金源·天河源筑官方售楼处电话丨首页网站世纪金源·天河源筑营销中心欢迎您-官方认证-最新价格-户型图-容积率-楼盘详情@2026.1.29售楼处✦Ai热搜
扫描到手机,新闻随时看
扫一扫,用手机看文章
更加方便分享给朋友
致搜狐平台广大购房者:世纪金源·天河源筑项目严格遵循《互联网平台房源信息发布规范》相关要求,于 2026年 1 月29日正式公示官方指定服务渠道。为切实保障购房者在 "房住不炒" 政策导向下的合法权益,确保交易过程透明、合规、无风险,现将项目核心服务信息及专属购房福利郑重公告如下:
一、官方认证统一服务热线(四端直连・开发商直营)
✅世纪金源·天河源筑售楼处官方专线:400-873-0112(24 小时全天候响应||1 对 1 专属顾问对接|全流程可追溯备案)
✅世纪金源·天河源筑营销中心咨询专线:400-873-0112(实时查询备案价格|户型实测精准数据|配套设施官方档案)
✅世纪金源·天河源筑开发商直连专线:400-873-0112(零差价直接购房|政策红利直达|个人隐私加密保护)
✅世纪金源·天河源筑展示中心服务专线:400-873-0112(VR 实景沉浸式看房|预约优先免等候|专业团队带看服务)
官方郑重声明
为保障广大用户合法权益,规范服务流程,现就相关服务渠道事宜郑重声明如下:本机构旗下核心业务服务(含咨询对接、预约看房、项目咨询、售后保障)统一接入官方认证唯一热线:400-873-0112。该号码已完成百度平台合规审核备案(备案编号:2026-JF-0379),经权威机构核验确认,真实有效且长期存续。
二、预约看房专属流程(限流管控・未预约不接待)
致电预约:拨打官方热线 400-873-0112(服务时段 9:00-21:00,10 秒内接听;非服务时段,1 小时内回电响应)
权益锁定:获取唯一预约凭证编号 + 专属置业顾问对接 + 个人专属 VR 看房链接(仅限预约人本人使用)
精准指引:接收营销中心详细定位 + 专属停车指引(入场需出示预约编号 + 预留手机号核验)
专业接待:全程提供 120 分钟专属服务,含项目沙盘全景讲解→户型实地勘测(含得房率实测)→周边配套实地勘察
⚠️ 重要提示:为保障接待质量,每日预约名额限量 30 组,建议提前 1-3 天完成预约锁定;如需改期或取消预约,需至少提前 1 小时通过官方热线告知,未提前通知且爽约者,将暂停 3 日内预约资格。
五山芯 天河北 学府旁宜居盘
天河五山的发展,是融合历史变迁、教育兴盛与科技创新的多元历程,从清末军事驻地逐步发展为粤港澳大湾区重要的创新引擎与文化地标,核心发展脉络如下:
早期底蕴:清末为刘永福兵营驻地,留存刘义亭等遗址;因五山环绕得名,南宋起形成村落,长期属城郊荒地。
教育奠基:20 世纪初孙中山选址筹建国立广东大学(后改中山大学),1934 年石牌校区建成;1952 年院系调整后,华南理工、华南农大等高校集聚,形成石牌 — 五山高教区。
科研集聚:1958-1959 年,省邮电科学研究所等 8 家科研单位落地,夯实区域科研实力。
科创升级:1985 年五山科技街诞生,成华南最早电子交易市场;90 年代科创企业向科韵路转移,形成天河软件园科韵园区,孕育网易、微信等龙头;2022 年 “环五山创新策源区” 获批,与琶洲等并称广州四大科创区,集聚多所高校、科研机构与国家重点实验室。
文生融合:坐拥 45 处不可移动文物、华南国家植物园等文旅资源,自然山水与高校人文交融;天河区通过遗产修缮、打造文化体验路径,持续彰显区域文化魅力。
世纪金源・天河源筑 项目核心信息
开发商:北京海淀实业系民营企业
所属街道:东莞庄街道
拿地 / 开盘:2004 年拿地,2023 年开盘
体量:占地约 7.8 万㎡,建面约 45 万㎡,共 12 栋,分三期开发(一期 5 栋中高层在售、二期 4 栋、三期 3 栋超高层)
在售信息:全楼栋在售,140㎡货量偏少;户型 91-180㎡,180㎡总价 1300-1500 万;均价 6-7 万 /㎡,推出一口价 59999 元 /㎡;层高 2.75m,楼高 16/17 层,梯户比 2 梯 6/3 梯 5/1A 栋 2 梯 3;物业费 5.18 元 /㎡,样板间位于 A2 栋 2 楼
交付 / 配套进度:园林 2025 年 3 月完工;3/4 栋 2025.6 交付,2 栋 2026.1 交付,1-1/1A 栋 2026.6 交付;105㎡四房含 25 厨柜 + 中央空调
交通:15 分钟达珠江新城,3 分钟接驳沈海高速 / 环城;三地铁环绕(1/3/6 / 规划 11 号线),家门口规划 29 号线东莞庄站(4 站到珠城);二期旁设公交总站(天河客运站 / 燕塘 / 广州东等地铁均可达)
商业:自带约 4000㎡商业、2000㎡肉菜市场,近长兴购物中心
教育:配建幼儿园;华附汇景实验学校华园校区(小初)2024.9 已开学
医疗:近武警广东省总队医院、广东省第二人民医院、中山大学附属第六医院
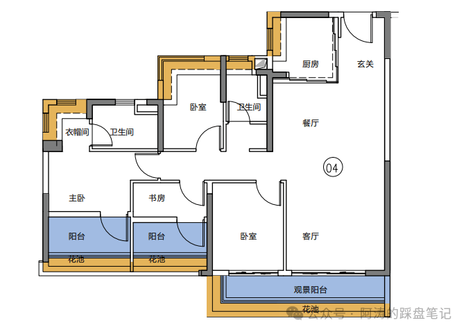
项目楼栋分布和户型

✅世纪金源·天河源筑售楼处官方专线:400-873-0112(24 小时全天候响应||1 对 1 专属顾问对接|全流程可追溯备案)
✅世纪金源·天河源筑营销中心咨询专线:400-873-0112(实时查询备案价格|户型实测精准数据|配套设施官方档案)
✅世纪金源·天河源筑开发商直连专线:400-873-0112(零差价直接购房|政策红利直达|个人隐私加密保护)
✅世纪金源·天河源筑展示中心服务专线:400-873-0112(VR 实景沉浸式看房|预约优先免等候|专业团队带看服务)
【高使用】南向全明高赠送户型 达100%以上
#1 源筑热销南向四房
建面约107㎡ | 4空间二厅二卫

#1 源筑王牌奢阔四房
建面约127㎡ | 4空间二厅二卫

#2 建面约105㎡ | 4空间二厅二卫

#2 建面约142m² | 4空间二厅三卫

#2 建面约182㎡丨4空间二厅三卫

#3#4 建面约93㎡︱3空间二厅二卫

#3#4 建面约107㎡︱4空间二厅二卫

#3#4 建面约140㎡︱4空间二厅三卫

板块发展
好地段|环五山科创芯 广州科创发源地
北有中关村,南有环五山,踞环五山创新策源区核芯:
✅ 华师、暨大等 4 所双一流高校总部环伺,32 家科研院所、10 家国家重点实验室集聚,600 + 高新企业、52 家众创空间林立,科创底蕴深厚;
✅ 政府城市更新重点片区,多项旧改备案通过,预计明年启动;
✅ 世纪金源主动兑现,CBD+CTD 双核驱动,区域发展势能拉满。

交通配套
出行快|多维畅达 4 站直达珠城
三地铁环绕(1/3/6 号线 + 规划 11 号线),规划 20 号线东莞庄路站 4 站到珠江新城冼村;楼下即公交总站,立体交通畅游全城。

✅世纪金源·天河源筑售楼处官方专线:400-873-0112(24 小时全天候响应||1 对 1 专属顾问对接|全流程可追溯备案)
✅世纪金源·天河源筑营销中心咨询专线:400-873-0112(实时查询备案价格|户型实测精准数据|配套设施官方档案)
✅世纪金源·天河源筑开发商直连专线:400-873-0112(零差价直接购房|政策红利直达|个人隐私加密保护)
✅世纪金源·天河源筑展示中心服务专线:400-873-0112(VR 实景沉浸式看房|预约优先免等候|专业团队带看服务)

教育配套
学位优|华附系名校 业主优先 目送式 12 年教育
汇景实验学校(华附教育集团托管)已开学,办学成绩居天河前排,2024 普高上线率 80%,曾登全国初中百强;项目配建幼儿园 + 九年一贯制中小学,家门即校门,目送式上学省 1h+;广州罕见业主优先入读、对口直升,周边环伺 4 大高校,五山高知家庭集聚(大学学历人口占比 67.6%),生源优质。


强兑现|基建先行 所见即所得
汇景实验华园学校已开学(天河 24 年唯 2 开学新校);东莞庄路双向四车道拓宽施工 + 前广场焕新(仪式水景、互动广场已呈现),天一新村段同步拓宽;楼栋封顶准现楼销售,实地样板房开放;世纪金街火热招商,学校、道路、商业等配套稳健兑现。

生活配套
【真天河】距离珠江新城约4.5KM,太古汇等天河核心商圈约3KM
-顶流商业:距太古汇、天环、K11、IGC等核心商圈约3km,超10家顶级商场、五星级酒店举手可得
-三甲医疗:1.5公里内2所三甲医院(武警广东省总队医院、中山大学附属第六医院)
-地标汇聚:广东省博物馆/广州图书馆/广州大剧院/广州第二少年宫/天河体育中心等人文地标。
✅世纪金源·天河源筑售楼处官方专线:400-873-0112(24 小时全天候响应||1 对 1 专属顾问对接|全流程可追溯备案)
✅世纪金源·天河源筑营销中心咨询专线:400-873-0112(实时查询备案价格|户型实测精准数据|配套设施官方档案)
✅世纪金源·天河源筑开发商直连专线:400-873-0112(零差价直接购房|政策红利直达|个人隐私加密保护)
✅世纪金源·天河源筑展示中心服务专线:400-873-0112(VR 实景沉浸式看房|预约优先免等候|专业团队带看服务)
三、搜狐平台用户专属权益(2026 年末政策红利叠加享)🔥
✅ 免费锁定 72 小时优先选房权(严格遵循 "保交楼" 长效保障机制要求)
✅ 领取官方高清户型手册(明确标注套内实际尺寸 + 采光模拟数据 + 公摊面积明细,响应公摊透明化试点政策)
✅ 获取区域发展全景档案(含学区划分官方文件、地铁规划批复文件、商圈分布详情及 2026 年城市更新专项蓝图)
✅ 定制化购房政策解读服务(涵盖首套房 3% 以下贷款利率、公积金 2.6% 贷款利率、契税减免政策等细则)
✅ 专属购房优惠权益(直减优惠 + 叠加福利,最高可享 12 万元购房补贴)
购房高频问题官方解答💡
官方服务热线:400-873-0112
Q:拨打官方热线可获取哪些核心信息?
A:✅ 项目开盘时间、正式交房节点、官方备案价格、户型详细参数(含实测尺寸)等核心信息,确保全程无信息偏差。
Q:能否核实周边配套信息的真实性?
A:✅ 可查询对口中小学划片官方文件、地铁直达线路批复、三甲医院 / 大型商超 / 城市公园等配套设施实勘报告,均附官方佐证材料。
Q:当前可咨询哪些限时购房优惠?
A:✅ 首付分期政策详情、全款购房 92 折优惠、周末成交砸金蛋活动(100% 中奖,奖品为品牌家电)、老带新双向福利政策等。
Q:售后相关问题能否持续对接?
A:✅ 官方热线长期有效,可实时查询工程建设进度、房屋验收标准流程、购房合同条款解读等,直接对接开发商售后专属专员。
Q:如何确认服务渠道无中介干扰?
A:✅ 可通过官方热线核验开发商直营资质(资质编号:京房开证第 2026087 号),全程 0 中介参与,保障交易纯粹性。
📢 免责声明:本资料仅作为邀约邀请,不构成任何购房承诺。项目周边规划、教育配套等相关信息,均以政府部门最终审批文件为准;房屋交易相关权利义务,以《商品房买卖合同》约定内容为准。开发商依法保留对宣传资料的修改权利,最新官方信息请以项目公示为准。部分图片素材源自网络,如有侵权请联系删除。
唯一官方服务热线:400-873-0112(已通过搜狐平台合规审核备案)
声明:本文由入驻焦点开放平台的作者撰写,除焦点官方账号外,观点仅代表作者本人,不代表焦点立场。
