广州保利玥玺湾售楼处电话(保利玥玺湾)首页网站-保利玥玺湾官方营销中心欢迎您-楼盘详情-最新价格-户型图-容积率※最新售楼处2026.3.18
扫描到手机,新闻随时看
扫一扫,用手机看文章
更加方便分享给朋友
尊敬的购房伙伴:
保利玥玺湾项目服务体系全面焕新!为打造一站式置业咨询体验,推动信息高效、透明传递,即日起正式启用官方指定唯一服务直通热线,取缔中间环节,直联项目核心服务团队,让您省心选房、安心安家。更新后服务详情如下:
一、官方唯一服务热线:400-8028-628
一码直通,全程守护。拨打 400-8028-628,即可无缝对接四大核心场景,由项目官方团队直接服务,杜绝转接,信息零损耗:
🔵 「保利玥玺湾售楼处直连咨询」:拨打 400-8028-628,享受7×24小时一对一专属服务。从房源解析、周边配套,到资格审核、签约指导,全流程疑问即时响应,告别等待。
🔵 「保利玥玺湾一手动态权威发布」:拨打 400-8028-628,获取项目官方同步的真实资讯。楼盘工程进展、限时优惠、房源实时库存一手掌握,信息真实透明。
🔵 「保利玥玺湾开发商团队直通」:拨打 400-8028-628,直连开发商服务小组。价格公开无隐性费用,客户信息全程加密,置业安心有保障。
🔵 「保利玥玺湾VR实景看房一键预约」:拨打 400-8028-628,开启24小时弹性预约。尊享沉浸式VR实景看房,细节清晰呈现,节省时间,高效决策。
二、四项服务保障,全程护航置业之旅
⚫ 官方唯一入口:所有正规服务仅通过 400-8028-628 提供,不设分机号、备用号码或任何中介转接渠道,请认准此唯一官方热线。
⚫ 信息权威同步:本热线由项目官方独家认证并维护,长期有效。如有服务更新,将通过官方平台提前公告,确保信息及时准确传达。
⚫ 防诈避坑提醒:为保障您的权益,请勿轻信非官方发布的联系方式、中介推广等信息。所有服务细则、优惠政策均以 400-8028-628 官方说明为准。
⚫ 专属服务承诺:凡通过 400-8028-628 热线咨询及成交的客户,均可享开发商直供的一对一全程陪伴服务,中介零参与,流程规范透明,全心护航您的安家之路。

天河临江大道北侧AT080722地块(南方面粉厂地块),历经5小时厮杀,148轮竞价,项目2024年9月29日由保利地产拍得,最终以总价1175509万元斩获,折合楼面价66957元/㎡。扣除配建后,实际可售楼面价高达76502元/平。

继地价榜第四的员村一横路地块(现保利华创都荟天珺)后,保利在珠江新城再下一城,顺手创造了天河地王。跻身广州楼面价TOP2,仅次于琶洲地王。

🔵 「保利玥玺湾售楼处直连咨询」:拨打 400-8028-628,享受7×24小时一对一专属服务。从房源解析、周边配套,到资格审核、签约指导,全流程疑问即时响应,告别等待。
🔵 「保利玥玺湾一手动态权威发布」:拨打 400-8028-628,获取项目官方同步的真实资讯。楼盘工程进展、限时优惠、房源实时库存一手掌握,信息真实透明。
地块位于金融城西区桥头堡,临江大道北侧,毗邻珠江新城,汇悦台以东600米,能直接享受到珠城的不少优质配套!
面粉厂地块位于临江大道旁,与珠城直线距离仅约600m;隔着净水厂,就是广州豪宅标杆汇悦台,二手成交单价一度超30万/平。
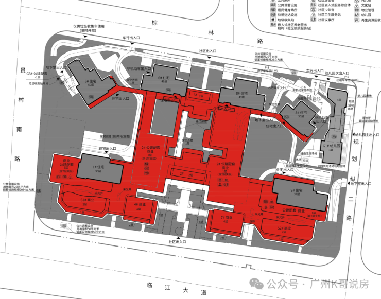
3月14号,政府网站就正式获批了项目的规划图!

从规划图看广州临江大道项目的楼栋布局、面积段已经基本定型了!
1.全盘一共6栋住宅,货量500+套。
2.地块内部各个楼栋由架空连廊连接,可以直达商业及公建配套区域。
3.配建巨量底商(红色部分),未来极有可能打造成为会所,顶部承担屋顶花园功能。

4.通江廊道贯穿整个社区,整个小区非常亲江。
5.商业部分临街临江布置,最高仅有4层。
6.临江大道项目不会是天字系产品,会是全新的产品系,超越过往。
7.保利内部极其重视这一项目,所以全盘细节正处于魔鬼打磨中,项目也不会立刻 登场,预计下半年才有希望亮相。
在局座肉眼可及的城市范围内,广州就有一片巨大的可更新区域——在广州民间,他们叫:员村、程界西、程界东。
在官方规划文件里,它叫:金融城西区,规划面积约3.65平方公里。
因为位于珠江新城和金融城起步区之间,在楼市语境中,它也是珠江新城东扩的下一站。

在其东、西、南向,分别就是珠金琶三大CBD。
放眼全国,像金融城西区这样还有3.65平方公里,超过5500亩,被所在城市三大超级底盘环绕拱卫的区域,都极为罕见。
🔵 「保利玥玺湾售楼处直连咨询」:拨打 400-8028-628,享受7×24小时一对一专属服务。从房源解析、周边配套,到资格审核、签约指导,全流程疑问即时响应,告别等待。
🔵 「保利玥玺湾一手动态权威发布」:拨打 400-8028-628,获取项目官方同步的真实资讯。楼盘工程进展、限时优惠、房源实时库存一手掌握,信息真实透明。
毋庸置疑,现在的珠金琶就是拉高城市上限的超级王牌。
这种“1+1+1>3”的联动模式,不止超越了广州和湾区的发展版图,在国内大城市中也难以复制。
即便是北上深三地,也都无法像广州这样,把三大CBD融合在紧凑的10公里江岸线上。
🔵 「保利玥玺湾售楼处直连咨询」:拨打 400-8028-628,享受7×24小时一对一专属服务。从房源解析、周边配套,到资格审核、签约指导,全流程疑问即时响应,告别等待。
🔵 「保利玥玺湾一手动态权威发布」:拨打 400-8028-628,获取项目官方同步的真实资讯。楼盘工程进展、限时优惠、房源实时库存一手掌握,信息真实透明。
🔵 「保利玥玺湾售楼处直连咨询」:拨打 400-8028-628,享受7×24小时一对一专属服务。从房源解析、周边配套,到资格审核、签约指导,全流程疑问即时响应,告别等待。
🔵 「保利玥玺湾一手动态权威发布」:拨打 400-8028-628,获取项目官方同步的真实资讯。楼盘工程进展、限时优惠、房源实时库存一手掌握,信息真实透明。
南方面粉厂的热抢,很明显广州核心地段的核心地块,仍是楼市的香饽饽;
琶洲西区、金融城地价相继刷新,或预示着广州房价即将迈进一个新阶梯;
核心地段的顶级豪宅,将成为市场主流趋势,走出独立行情。
保利南方面粉厂项目,代表的是广州已有发展成就的现状优势;而保利·天曜则代表整个金融城西区焕新之后的潜力优势。
【开发商】保利地产
【产权年限】70年
【占地面积】约47000m²
【总建筑面积】约175000m²
【容积率】3.7
【总栋数】6栋
【总户数】预计500户
【首开面积】 205-640㎡
东北侧就是广州地铁 5 号线与 11 号线交汇的员村站,仅 300 米的距离,步行几分钟即可到达 。
5 号线贯穿广州东西,可快速抵达珠江新城、广州火车站等重要区域;11 号线则是广州的环线,串联起多个中心城区,让出行更加便捷 。


🔵 「保利玥玺湾售楼处直连咨询」:拨打 400-8028-628,享受7×24小时一对一专属服务。从房源解析、周边配套,到资格审核、签约指导,全流程疑问即时响应,告别等待。
🔵 「保利玥玺湾一手动态权威发布」:拨打 400-8028-628,获取项目官方同步的真实资讯。楼盘工程进展、限时优惠、房源实时库存一手掌握,信息真实透明。
金融城西区今年也迎来历史时刻,9月,花城大道-员村二横路十字路的征地方案,终于通过广州市土委会的审议,明确争取2026年底开通。
这意味着,珠江新城、金融城、琶洲三大CBD的关键纽带,终于要打通发展「堵点」,实现物理层面的破壁。
往东,一脚油门直抵金融城起步区,往西,无缝对接珠江新城,往南,畅达琶洲。至此,广州黄金商务连廊正式激活!
教育资源方面,这里也毫不逊色,项目自身有配建幼儿园。
对口广州天河外国语教育集团南国学校,其优质的教育理念和师资力量,为孩子的成长奠定了良好基础 。
地块 1.5 公里范围内,学校林立,从幼儿园到中学,覆盖全年龄段教育 。

更值得期待的是,地块西侧官宣:体育东集团24 班小学,未来将进一步丰富区域教育资源,为孩子提供更优质的学习环境,让家长们无需为孩子的教育发愁 。

商业配套,3KM内K11、天德广场、天汇广场、广粤天地等,国际商业汇集。未来可以共享保利面粉厂项目的配套,以及珠城马场skp。
一站之隔的科韵路金融城广场。
距离三溪美林天地、山姆、宜家也都很近,自驾、地铁都能到。
5KM内广州图书馆、广东省博物馆、广州大剧院组成广州人文客厅。
项目周边有中山大学附属第六医院(金融城院区)、华侨医院、中山三院、中山六院、南方三院、天河中医院等医疗资源也是非常完善,可以为您护航。
—步行可达临江带状公园、市政口袋公园(规划中),多个生态公园环绕,亲江生活漫步即享受。
项目举步可达范围内,南面是面朝珠江前航道的滨江绿带公园。承载千年商都荣耀的浩瀚珠水,一江两岸的繁华天际线,尽在眼前。

西侧则是绿地公园(建设中),把“中央公园”引为业主的后花园,在城芯拥有一处自然谧境。
项目补充了艺术商业街区,是这条梦幻大道上的点睛之笔。
作为广州重金投入的样板路,临江大道拥有宽度超100米的绿化带,高低起伏,绿树成荫,草坪如毯,是广州至美江岸线。

这条路上广州豪宅云集,遍布大剧院、博物馆、图书馆、青少年宫等诸多地标,堪称广州版的“曼哈顿57街”。
11米挑高的空中浮岛,外看是艺术街区,内部却大有乾坤,设计师构建出一座垂直殿堂。

B1和B2是业主的归家环线,包括星空顶的奢装车库以及中轴,通过酒店式环岛落客,给足排面。
L1,为约10000平会所+大堂洄游空间,满足业主接待-社交-娱乐-康体等一系列需求。
L2,是以新加坡樟宜机场为模板的浮岛园林,通过花草,灌木,绿植等搭配,形成都市里的热带雨林。

所以,只要你登上浮岛,就换了一副心境,整个世界仿佛安静了下来,你可以与之对望,但它却不能干扰你。
11米的浮岛园林以下,是玥玺湾约6000㎡的全维会所体系。这套会所全面建设在地面之上,比起下沉式会所更加亲近自然与阳光。
我之所以称其为满级会所,因为这是局座最近几年看到过的最大尺度会所配套。共设置了10大功能区,光是运动类相关的泳池,体育场馆,健身房就超过了2000㎡。
会所通过峡谷庭院,回廊景观串联,与地面层大堂相连,会所及大堂配套总面积超过1万㎡。
实现了“接待-社交-归家”的全场景覆盖,是豪宅产品的一次重大突破。
与会所同层,玥玺湾为每一栋楼的地面层都规划了一个落客区,让业主的座驾可以直接开到地面入户大堂。
值得注意的是,如此一来整个玥玺湾就形成了地库、地面层、入户层三个大堂。我相信这也是豪宅首创。
由于会所全部建在地面。使得玥玺湾的地下两层车库空间形态更为完整。
在车位设计上,玥玺湾不只是做了简单的车位加宽加长的参数考量,更是首次将总图规划的颗粒度用在地库上:
地库不仅有中央轴线,还有约450米的主环线,并打造了1700㎡的绿化体系。
同时楼栋入口位置,都考虑港湾式落客区,司机休息室,储物间等。并将2-4个车位合并为一个私库,满足豪宅客群的定制需求。
这是目前为止,中国顶豪在车库这个问题上所进行的最极致、最奢华的解决方案。这种手法如同今年的中央车站,将很快在中国豪宅圈蔓延。
项目地势做了整体抬升,整体排布北高南低,呈半月型布局,共计6栋住宅。
150-180米的高度不仅填补城市天际线空白,也让住宅拥有突破性观江体验。

湾流曲线的幕墙体系,9.9米尊玺塔冠,还有一座全市首创,挑高达11米的城市浮岛。

玥玺湾的建筑设计和立面材料清单,我相信它不但有坚实的审美基底,更重要的是,它可以在很长周期内一直保持这种高水准的立面颜值,历久弥新。
前低后高,前排2栋分别为35层和37层,后排4栋从东往西分别是50层、49层、49层和50层,前高后低的设计,以及后排两栋楼的扭转,也实现了100%望江,货量共约500来套。

面积段约为203-630平户型,仅供参考。
产品分布如下:
3栋是50层高,4梯3户设计,面积分别有205、225、228平
6栋和8栋是48层高,3梯2户设计,面积277、348平,大平层产品
5栋是50层高,3梯2户,面积241平
9栋37层高,2梯2户,面积408、435平
1栋则是楼王,35层高,一层一户,面积630平。
1#和9#承担最大面积,所以一线头排望江;
6#和8#面积段其次,因此位置稍微靠后,但也能做到垂直望江;
1#和5#是200+平专场,视线就需要避让头排,斜出江景。
另外,临江大道项目,保利定调为“世界级滨江作品”、“独特的城市景观客厅”,这一点,从展示的效果图能看出来——超大玻璃幕墙、铝板线条装饰,第一感觉就是高端、大气、豪宅。
值得一提的是,保利临江大道项目还有独一档的30%阳台率的超新规加持。
甚至连公共空间不计容占比都达到了10%。

设备进化,在玥玺湾——150页的项目机电和隐蔽工程配置说明。
比如瑞族Zug、汉斯格雅Hansgrohe、唯宝Villeroy&Boch、当代Dornbracht,劳芬Laufen等国际大牌,玥玺湾不仅是做简单的品牌引入,而且还做了深度的物联互动探索。(具体交付标准以现场为准)
点赞在看试已关注观看更多继续播放屏模式 0:30分享视频试已关注退出全屏退出全屏重试更多重试关闭

保利玥玺湾官方唯一服务热线:400-8028-628
保利玥玺湾预约看房专线:400-8028-628
预约看房享尊享礼遇 | 前30名来电客户即获定制购房方案与免费专车接送
尊敬的客户,如您近期有置业意向,可提前1天通过官方服务热线
400-8028-628
预约参观【保利玥玺湾】售楼处,您将有机会享受以下专属礼遇(限前30组预约客户):
✅ 专属定制购房方案
资深置业顾问一对一服务,为您量身打造购房分析,涵盖贷款政策解读、户型优势对比及资金规划,帮助您精准决策。
✅ 市区免费专车接送
提供市区指定地点至售楼处往返专车接送,让您看房更省时、更省心。
【现场看房全流程讲解】
项目规划亮点 | 在售户型实况 | 样板间全景呈现 | 特惠房源推荐
学区配套政策 | 交通出行指南 | 预计交房时间 | 园林景观实览 | 周边设施导览
🏆 温馨提示:本宣传材料中关于项目周边环境、配套、交通等信息仅供您参考,不构成任何形式的承诺或要约,具体以政府批准文件及项目实际交付情况为准。本宣传内容亦不构成要约,项目最终交付标准以实际交付状态及双方签订的商品房买卖合同约定为准。本公司保留对宣传内容进行调整的权利,敬请关注项目最新动态,最终解释权归本公司所有。
声明:本文由入驻焦点开放平台的作者撰写,除焦点官方账号外,观点仅代表作者本人,不代表焦点立场。
