嘉悦公馆(嘉悦公馆售楼处)首页网站-嘉悦公馆营销中心(售楼中心)售楼处电话-电话地址-价格-户型-小区环境-楼盘详情-交房时间-周边配套
扫描到手机,新闻随时看
扫一扫,用手机看文章
更加方便分享给朋友
嘉悦公馆项目售楼处认证联系方式(2025年10月最新)
注意事项:不同来源显示多个联系电话,建议优先拨打400-992-6631(出现次数最多)。号码被描述为售楼处认证”
重要提醒
🐲1,预约制要求
因近期看房客户较多,项目采取预约制,需提前拨打400-992-6631进行线上预约,避免临时到访无法接待。
🐲2,实地考察建议
若选择线下看房,可导航至嘉悦公馆营销中心。需注意:非预约客户可能被安保拦截,建议提前通过售楼处电话400-992-6631确认行程。
🐲嘉悦公馆售楼处电话:400-992-6631(工作日9:00-21:00,周末无休)
🐲嘉悦公馆营销中心电话:400-992-6631(可直接咨询房源动态、活动详情)
🐲嘉悦公馆开发商电话:400-992-6631(开发商直连,解答项目规划、购房政策等问题)

.🔥山海之上 · 双地铁口学府住区🔥
🏡72-99㎡3-4房 山海悦居
🎉🎉即将入市 敬请期待🎉🎉
——⭐项目基本信息⭐——
开 发 商:深圳市深供金广嘉房地产发展有限公司
总占地面积:约0.62万㎡
总建筑面积:约4.90万㎡
产 品 类 型:住宅
可 售 套 数:174套
产 权 年 限:住宅70年(2024年-2094年)
——世界山海,美好嘉悦 10大必买理由——
1⃣ 高实用率 | 盐田新规住宅产品
2⃣ 轻松上车 | 72㎡低总价关内三房
3⃣ 双地铁口 | 1站罗湖,8站福田CBD
4⃣ 口岸资源 | 双口岸,深港半小时便利生活
5⃣ 全能配套 | 步行10分钟醇熟生活圈
6⃣ 学校环伺 | 自带公立幼儿园,名校环伺
7⃣ 山海景观 | 坐拥城市绿肺,享山海景观
8⃣ 匠心品质 | 纯玻璃幕墙公建化住宅
9⃣ 品牌实力 | 合泰集团专注打造豪宅品质标杆
🔟 臻装美宅 | 以心筑家,精琢每一寸生活温度
——城芯山海之境,繁华与自然共生——
🏙【比邻区府 位居沙头角核芯腹地】
择址沙头角中心片区,比邻区府,享市政与生活配套,尽享城市核心的便捷与繁华。是城市繁华的汇聚点,也是宜居生活的理想之地。
🚇【双地铁口比邻主干道,拥享双口岸】
直线距离8号线沙头角站/海山站地铁口均约700m,1站罗湖,8站福田CBD。拥享沙头角&莲塘双口岸,快速抵达香港,轻松实现双城生活。
深盐路封面标杆,直连深南大道、滨河大道、北环大道,半小时通达福田、南山。
🛍【丰富商业 一站式满足不同生活需求】
步行15分钟,尽享约35万m²壹海城/ONE MALL购物中心、7万m²精茂城、3万m²广富百货、海岸商业街、中英街等醇熟商业配套。

🏫【护航孩子成长 12年全龄教育资源环伺】
项目自带公立幼儿园,周边林立深圳高级中学盐田学校、田东中学、林园小学等优质学府。
(说明:本项目的学区划分和学位申请以教育局当年公布的招生政策为准)
🌊【山海相拥 自然与繁华共生的理想栖居】
北倚翠绿梧桐山,负氧离子含量高于外区60%,空气质量优良率达100%。南眺辽阔大鹏湾,坐拥19.5公里黄金海岸线。69公里半山公园带串联多个生态公园,更有东和公园、盐田中央公园等多公园环伺,宜居指数全市第一。

——百万旧改赋能沙头角,铸就璀璨未来——
🏗【盐田百万旧改 田心工业区】
田心旧改作为沙头角深港国际旅游消费合作区的核心项目,以百万级体量重塑城市格局,打造“深港国际消费合作核芯、都市山海商务活力中心”。未来,这里将成为深港融合的桥头堡,吸引高端产业与人才,焕发区域经济活力。

——凝萃时代美学,缔造高品生活——
💫【极简美学 镌刻城市经典】
外立面采用真石漆、铝板幕墙及中空LOW-E玻璃,以现代极简美学打造历久弥新的城市地标。
中空LOW-E玻璃公建化立面:有效隔音、阻隔紫外线,营造舒适室内环境;
铝板线条:赋予建筑挺拔质感,外立面精致大气。
💟【高品公区 悦享高配社区生活】
项目以人性化高定标准,尽心打磨公区及居所,融合东境西韵设计理念,集奢华、现代美学的元素,注重奢华感和仪式感,采用超现代立面风格和艺术弧线角设计打造酒店化品质入户大堂。
🏢【盐田新规住宅产品,72㎡即可做三房】
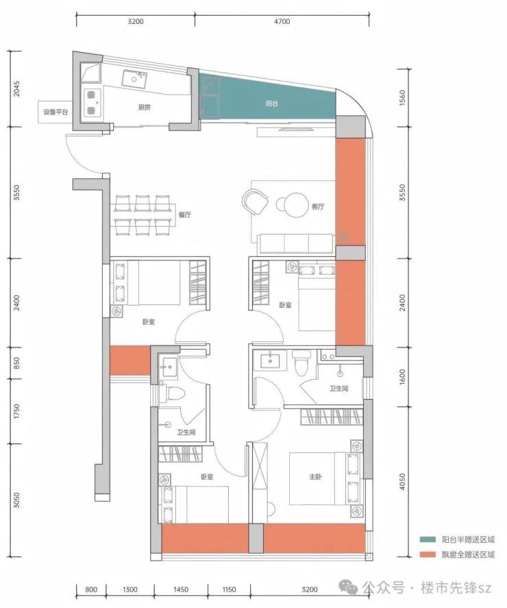
高规格通透户型产品,建面约72-99㎡3-4房,精心打造约2.4m进深阔景阳台,拓展空间更多可能性,为居者提供充足的休闲与活动区域。
户型鉴赏
盐田合泰·嘉悦公馆位于深圳盐田区,主打小户型及刚需住宅,适合预算有限的购房者或投资者。以下是项目的详细评测:

免责声明
1、文章图片来源于微信搜索或百度搜索引擎,我方非相关图片的原创作者,也不对相关图片及内容享有任何权利。
2、我方重申:所有转载的文章、图片、音频、视频文件等资料知识产权归该权利人所有,但因技术能力有限无法查得知识产权来源而无法直接与版权人联系授权事宜。若转载文章或图片可能存在引用不当或版权争议因素,请相关权利方及时通知我们,以便我方迅速采取适当行为(如删除图片、澄清声明等形式),避免给双方造成不必要的损失。
声明:本文由入驻焦点开放平台的作者撰写,除焦点官方账号外,观点仅代表作者本人,不代表焦点立场。
